关闭
2023建筑行业十大评选

超万名行业内专业人士实名投票

秉持客观原则的非商业化评选

发布时间:2010-03-25

面对商品住宅用供地量的不断缩水、地价飞涨,让许多地产商纷纷加码商业地产。金地明确表示,近期将在商业地产领域投入20亿元;华润启动了成都万象城商业

发布时间:2010-03-25

3月15日消息,富力地产(2777)2009年营业额增18%至182亿元(人民币,下同),毛利率亦由33.8%跌至31.6%。负债比率由97.6

发布时间:2010-03-25

中国的地产市场就是一个巨大的泡沫,普通的中国大陆居民至少要花掉他们20年总收入才能买一套房子。这泡沫可能还要继续,因为中国的银行系统流动性非常充

发布时间:2010-03-25

英国莱坊房地产经纪公司和花旗集团周三联合发布了全球最富有城市和最有影响力城市2010年年度排行榜。在这一榜单中,北京名列第九,纽约、伦敦和巴黎分

发布时间:2010-03-24

拟建综合教学楼将成为集教学,办公,餐饮,住宿,娱乐为一体的综合型、现代化教学建筑。

发布时间:2010-03-24

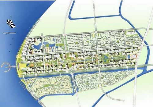
项目地点:江苏省吴江市

发布时间:2010-03-24

长期与ADIDAS合作的纽约鬼才设计师Jeremy Scott向来都是以戏谑和狂放的设计著称。这季他以哥德建筑的形制为基础,转化了彩绘花窗变成拼

发布时间:2010-03-24

旱厕藏椅下,地震后有电有水……日前媒体从有关部门获悉,江苏南京石头城公园应急避难场所工程开始全面启动,预计上半年完工。昨天,东南大学建筑设计院的