|

Urbanest学生公寓位于悉尼市中心,它是一座非常亮丽的、具有当地色彩的建筑,它既向人“宣告”了自己是一栋学生公寓,也与当地的建筑风格相互吻合。

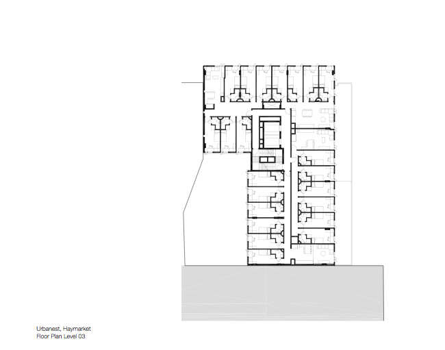
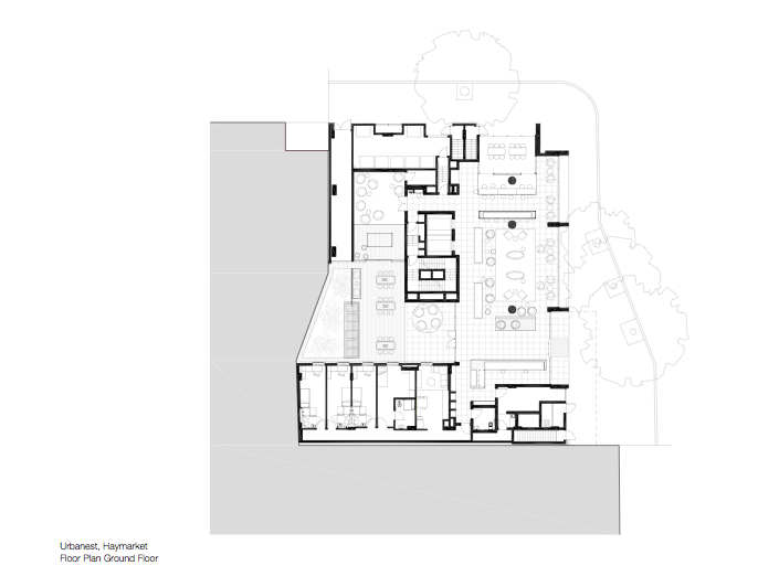
这座L形的大楼为334名学生提供了住宿,大楼内部被分成许多包含四间或者六间卧室的公寓,这样就能使公寓的数量更多一些。在一楼大厅里有学生活动中心,而地下一层则有一个设备室和一个自行车停车场。

大楼的外形完全符合建筑位于一个角落的特殊地理位置,与此同时,通过为大楼特别设计了逐渐缩进式外墙,大楼便与其附近的建筑联合在一起,这样不但扩大了这个小区的范围,它也使这个小区更具特色。

预先制作的墙板和窗户组合交替一致,这为大楼添加了一面极具动态美的幕墙。

整层高的玻璃窗使每间卧室更有空间感,而玻璃也分成了两部分,即固定的透明玻璃和可以调节的彩色玻璃。明亮多彩的玻璃是根据周围的特色而特别设计并安装的,它喻意着及学生时代喷薄的青春与多彩的生活。









|