|

葡萄牙布拉加的Sequeira Arquitectos Associados工作室完成了NC住宅项目。

这座占地7000平方英尺,3层高的住宅位于葡萄牙布拉加的历史文化名城Guimarães。

650平方米的建筑面积满足了居住者的所有需求。这座住宅必须建为三层以达到10米,从而缩小与最高建筑的差距。这里的风景非常漂亮。而这座住宅向西,可以欣赏到整个Guimarães城市风景,同时可以让开放区和私人区都能得到自然采光和欣赏到美丽的风景。

住宅的一楼为享乐区,设有起居室、餐厅、厨房和泳池甲板,通过挪动滑行门,可以模糊室内外空间的界限。.

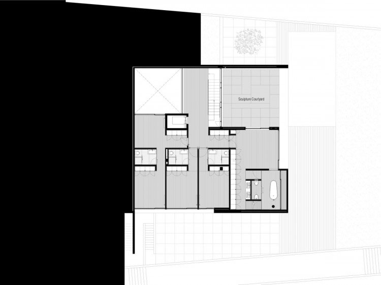
二楼为卧室区。三楼是进入住宅的主要通道。在这里设有书房和可以欣赏整座建筑美景的室外露台。

暗灰色的墙体将整座住宅与周围的景观相融合,内部庭院则为住宅提供了一个宁静之所。

















|