在线投稿 设为首页  
     
    首页 >  案例 > 国际视野 > 建筑  > 正文
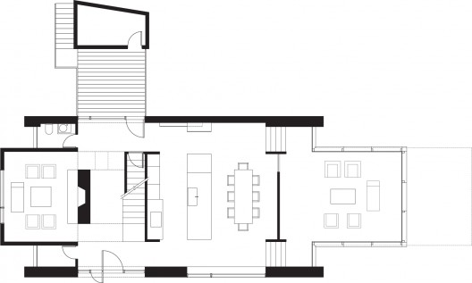
玛特利什卡住宅
发布时间: 2011-02-10   来源:匿名网友投稿 

玛特利什卡住宅位于马里兰州的Bethesda,它面积不大,室内的几个空间也十分紧凑,位于房子中心的是一间悬空的冥想室。

悬空冥想室也是房子的精神中心,它位于一个红色外墙包围的空间里,踏上几个几何形状的台阶,人们便可进入到这里。

冥想室和生活空间都以木板作为幕墙,幕墙里面是用灰泥喷涂的外墙,它既起到了保护层的作用,又使房子稳稳的坐落在地面上。设计师将室内几个房间之间留出了一些小空间,这样,阳光就可以照射进来,也使室内显得更加明亮耀眼,生机勃勃。

责任编辑: Jing
评论
昵称: 
RCC关系网

都市实践

CCDI

五合国际

筑博设计

易兰

维思平

 
关于我们 | 联系方式 | 免责声明 | 广告服务 | 给我留言 | 在线投稿
建筑畅言网版权所有
京ICP备11034636号 京ICP证090740号 京公网安备110102003037号
E-mail: editor@archcy.com 电话:86 10 56064666 传真:86 10 63107850
畅言网微信