|

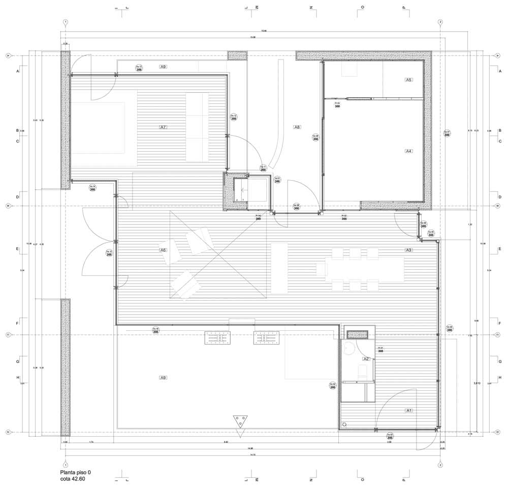
飞鸟住宅位于亚速尔群岛的圣•迈克尔岛(S. Michael Island )北侧,它由葡萄牙Bernardo Rodrigues建筑事务所建造。住宅由一些曲线和直线空间组合设计而成,在曲线空间和直线空间之间形成了几个有遮蔽的露台。

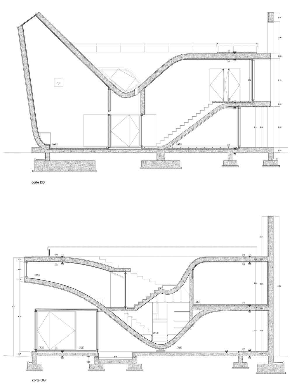
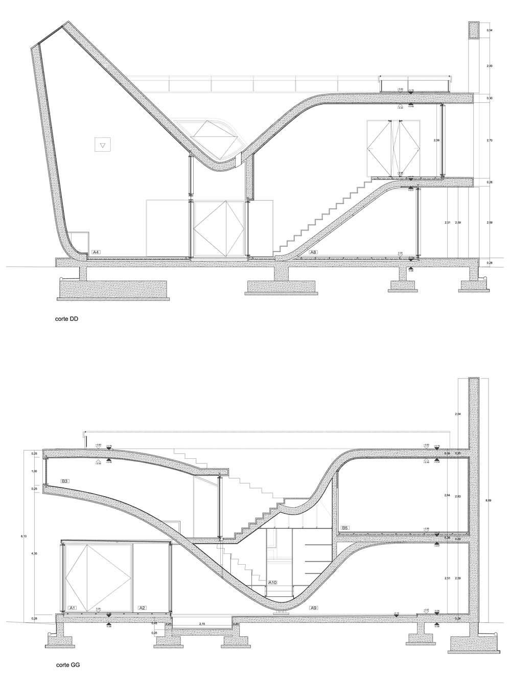
一面红色的方形墙挡住了来自于北大西洋的强风。

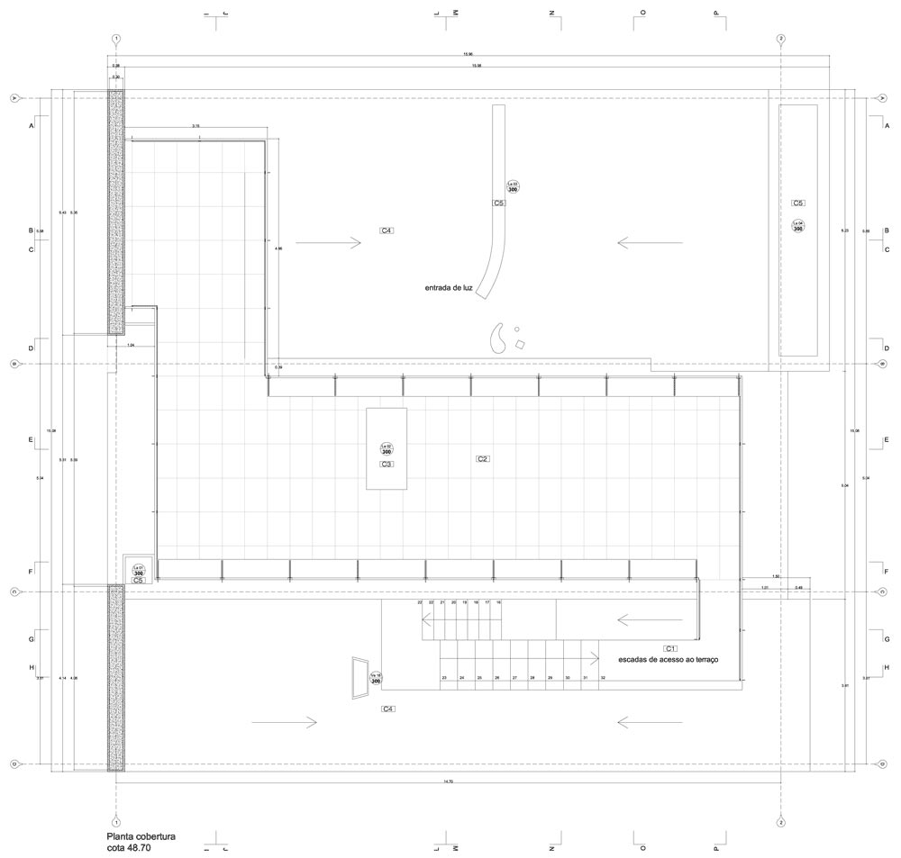
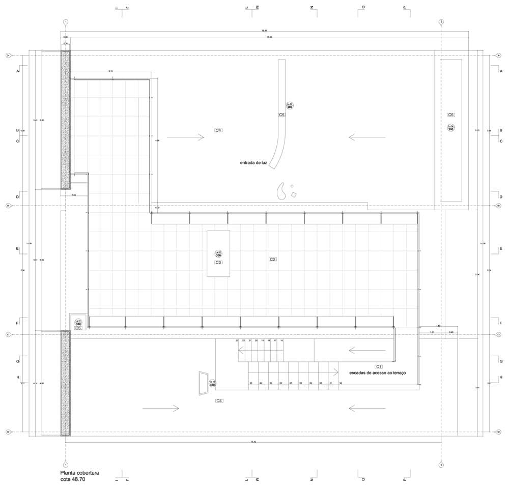
在墙壁的后面则是一个波浪形的屋顶露台。

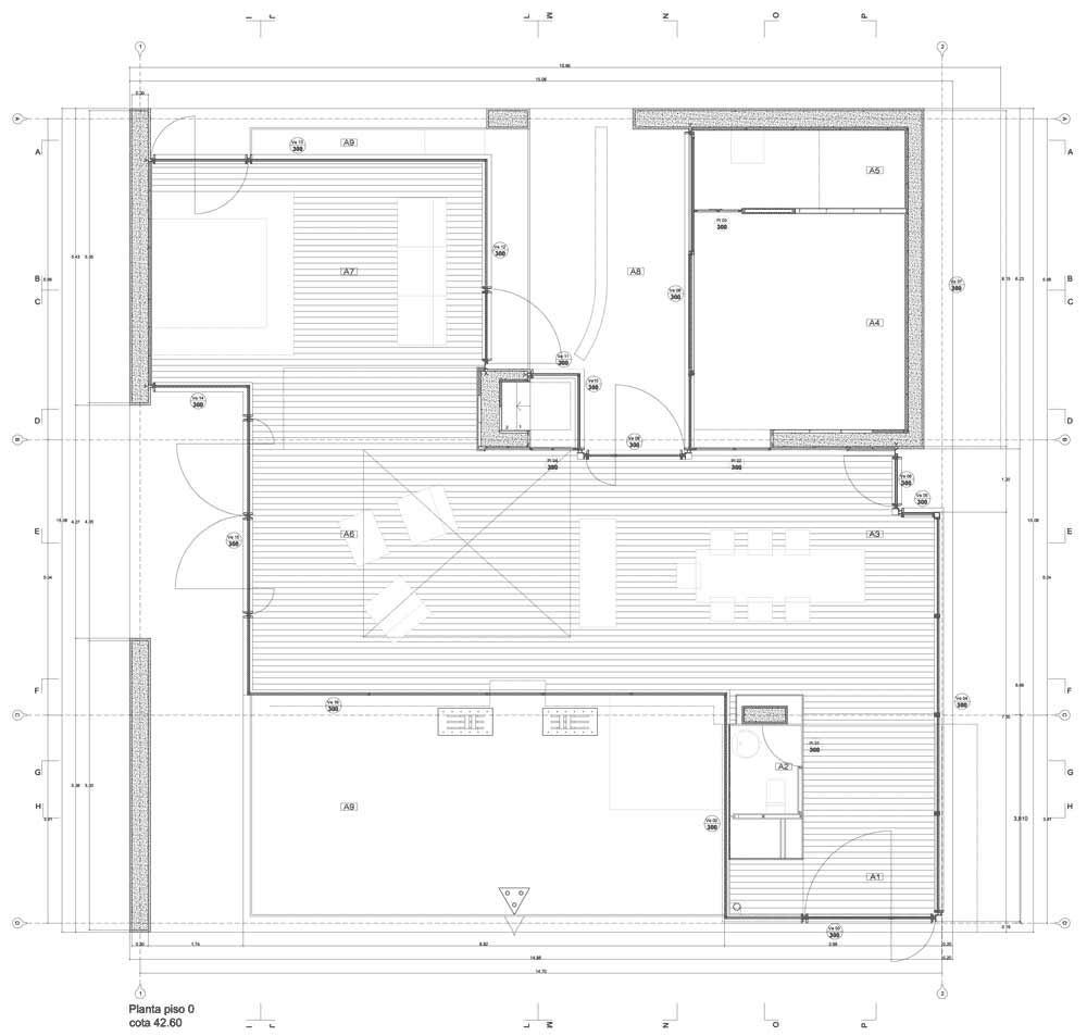
住宅的一层有许多开口空间和透明空间,而二楼则是卧室。

住宅位于一片农场上,这里经常有强风和降雨,所以建筑设计的首要考虑就是要设计一面墙壁来挡住这些强风,同时还要为住宅设计几个露台,在一楼设计几个小庭院,并要为这些小庭院设计遮篷,以避免雨水的进入。起居室安装了大块的落地玻璃窗,这便将外面的绿意带入了屋里。

住宅的二层是私人空间,这里的隐私性很好。

飞鸟住宅的设计大部分都借鉴了古典的帕拉第奥式(Palladian)和斯卡摩齐柱式(scamozzi)风格,这包括双层起居室和两翼的设计等等。两翼中的一翼设有一个厨房;唯一例外的是住宅高高的烟囱,它借鉴了流行的住宅建筑风格。住宅还设有几个有遮篷的露台,而另一翼则设有从二楼通往屋顶露天的楼梯。

在住宅南侧的几个光线的“入口处”,便是两翼的端点了。在屋顶露台上,人们可以将圣•迈克尔岛北部海岸的风景一览无余。














|