|

DVT别墅是一个独立的住宅,它位于Schuytgraaf郊区外围的Arnhem。客户希望设计师把这个别墅设计成一个独特的现代住宅,而且要保证有高质量的室内设计,根据这个要求,这个用生动的线条和极简派细节设计构成的别墅就这样成型了。

别墅的幕墙是用铝板做成的,铝板表面有一层特殊的涂料,它可以随着光线条件的不同而变换颜色。铝制的窗框是用金属板上切下的材料,这样就让整个房子看起来像一幅大的、生动的画作一样。建筑地块决定了房子的外形 —— 房子前面略微倾斜,并且与街道平行,这让房子看起来非常突出,而且室内非常宽敞、独特。

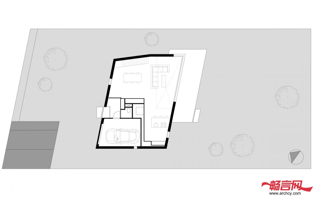
房子的后部有一个大的滑动窗户,它朝向花园,位于地面露台的上面,而露台则是一层的延伸。这个玻璃窗还可以用可移动的遮光玻璃挡住,遮光玻璃也是用打孔的铝板做成的。一楼分成三部分,分别是车库、入口和大的生活区域,生活区域与起居室、餐厅和厨房相连。

起居室非常大,这满足了客户对宽敞空间的要求,同时也让它与二层相连。室内最显眼的就属放多木质帷幔一样的大储物柜了,它包含了很多功能区:厨房、储藏、酒柜、衣橱和洗手间。

两边没有副手的钢制楼梯表面包上了一层橡木,它通往更为隐私的二楼。通往起居室的走廊连接了三个卧室和一个浴室。浴室有自己的风格,墙和地板都是用浅灰色的灰泥做成了,这样就能分散光线。位于房子前部的几个房间都朝北,俯瞰着翠绿的Doorwerth山脉。







|