|

项目简介
达喀尔Sow别墅位于一个峭壁边上,俯瞰着大西洋,它已于2011年完成,由南非SAOTA建筑事务所(Stefan Antoni Olmesdahl Truen Architects)建筑,ANTONI联合事务所(ANTONI ASSOCIATES)进行室内设计。Sow别墅是为塞内加尔一个商人家庭建造的。

建筑场地
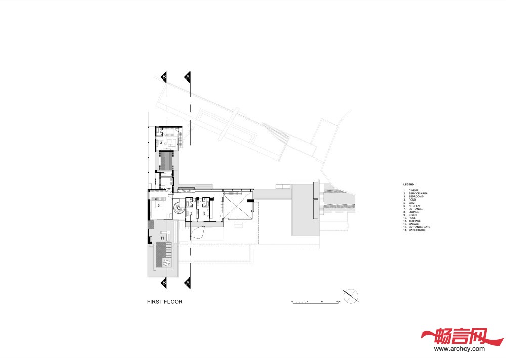
Sow别墅的建筑场地在悬崖边二战时期的一个旧燃料库上,所以,要对场地的参数和建筑布局进行细致的研究和分析。旧燃料库的一部分被保留了下来,这部分里面有一小部分做成了新建筑的地下影院,从影院可以到达顶上别墅入口处的水池庭院。在影院的另一边,可以通过一个木质的楼梯到达连接别墅的一层至二层的旋转楼梯,这样,人们就可以从影院到达别墅里了。

“尽管悬崖边是在达喀尔中央商务区郊外建筑住宅的一个好地方(因为这里没有城市的繁华和拥挤,还能拥有观海的视野),但是峭壁上的岩石是会慢慢腐蚀,这就要求我们慎重的去做结构了。” 建筑师Greg Truen说。最终,建筑师的设计方案仿佛是别墅悬浮在悬崖边上一样。

房间布局
别墅的一楼是为让房主能享受室内和室外活动而特别设计的,它要让主人能欣赏到大西洋的壮观景色,也方便他们来到从泳池边的阳台上。室外的几个阳台是相互连接着的,这样就能保证每个房间都能将海景一览无余,这也是建筑师将别墅的主参考点放在从书房去往厨房的走廊上的原因 --- 所有的房间都以这里为中心向外延伸。各个房间的朝向都要保证它们有最好的观海视野。

书房是一个独立的房间,它与别墅之间用一个走廊相连。在书房的下面是一个独立的客房,它位于悬崖的另一边上,在客房旁边是私人健身房和干净的池塘。别墅里有一个双层的大厅、一个厨房、烤肉阳台、泳池阳台和家庭享乐空间。

别墅的一个特色就是它有一个旋转楼梯,楼梯的外面包裹了一层不锈钢,台阶板是用白色花岗岩做成的。为了让楼梯更显宏大,在旋转楼梯的内侧还有一圈直径为20毫米的不锈钢棒,它们从旋转楼梯二层的把手处一直垂到一楼的地面,这使楼梯看起来像一截雕刻的钢管隧道。

二楼设有儿童房间和主卧室。天窗、铝板百叶窗、灯光照明这些元素都位于别墅的东北角,主人可以在这里欣赏东北处的景色。位于楼梯上面的天窗和大厅的大块落地窗让别处更加明亮。主卧朝向一个阳台,从这里能看到西南方向的海洋和东北方向的私人花园和室外沐浴处。整个别墅的设计都是基于对不同高度的空间进行合理布局和优化分层而进行的,这样保证了每一个房间都由最佳的室内和室外生活体验。







 
|