|

NEXTH住宅(NEXTHouse)的面积为2,700平方英尺,是为客户量身设计的、将西北现代建筑传统与一流的环保建筑技术、风格和做工融合在一起的独特建筑。它是建筑领域的一次冒险,也是尖端绿色建筑和现代设计在代售住宅中的完美融合。

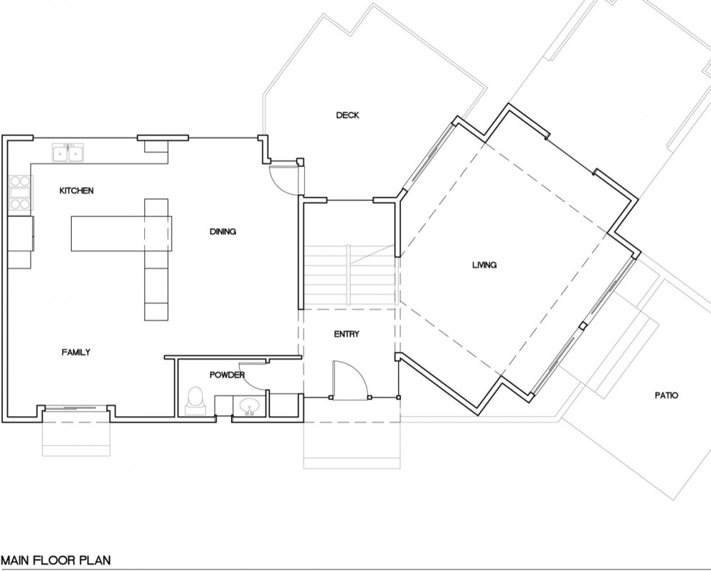
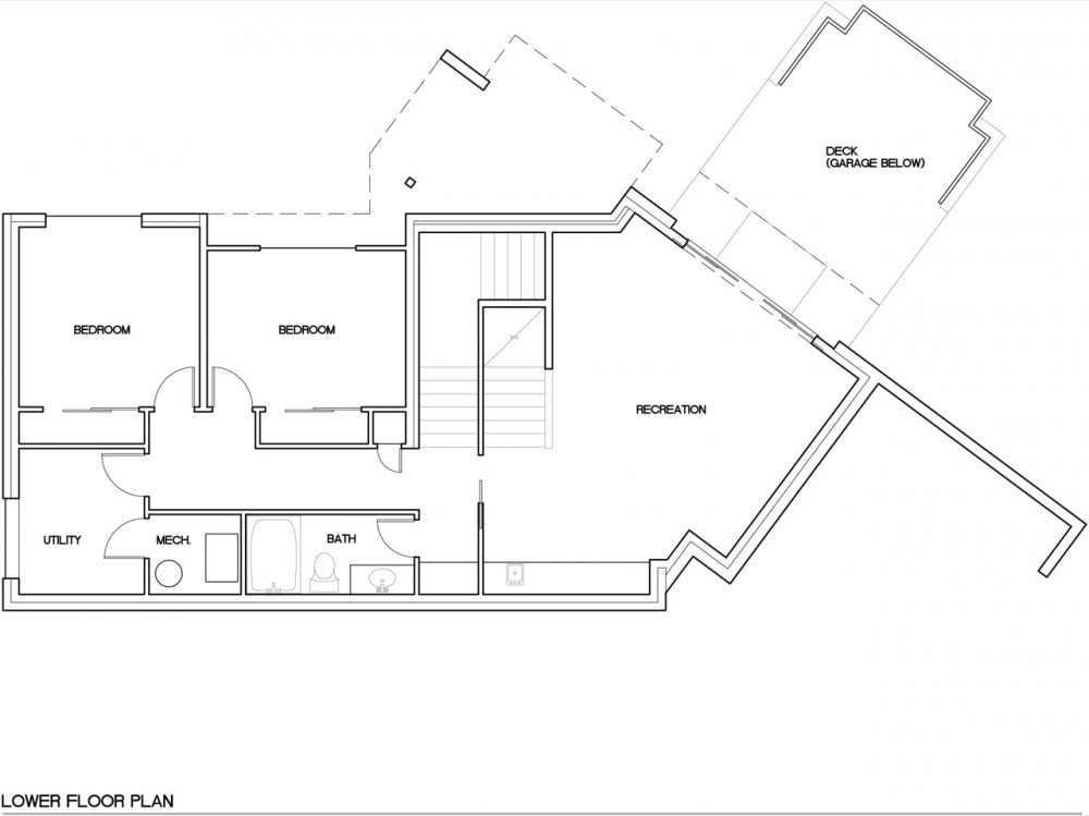
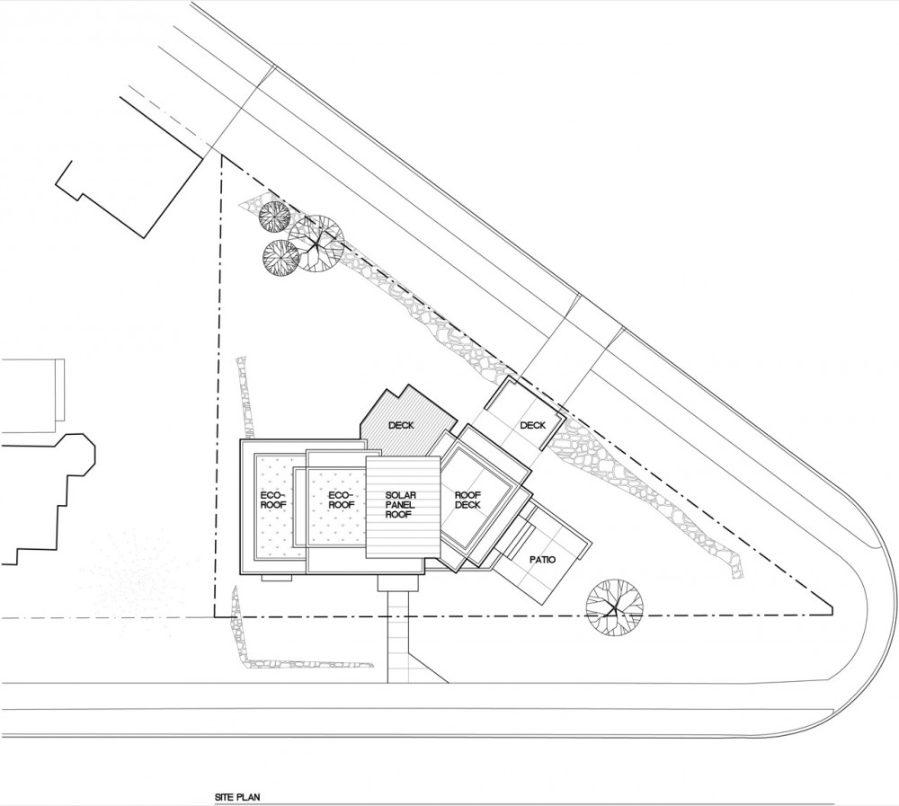
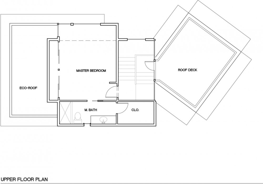
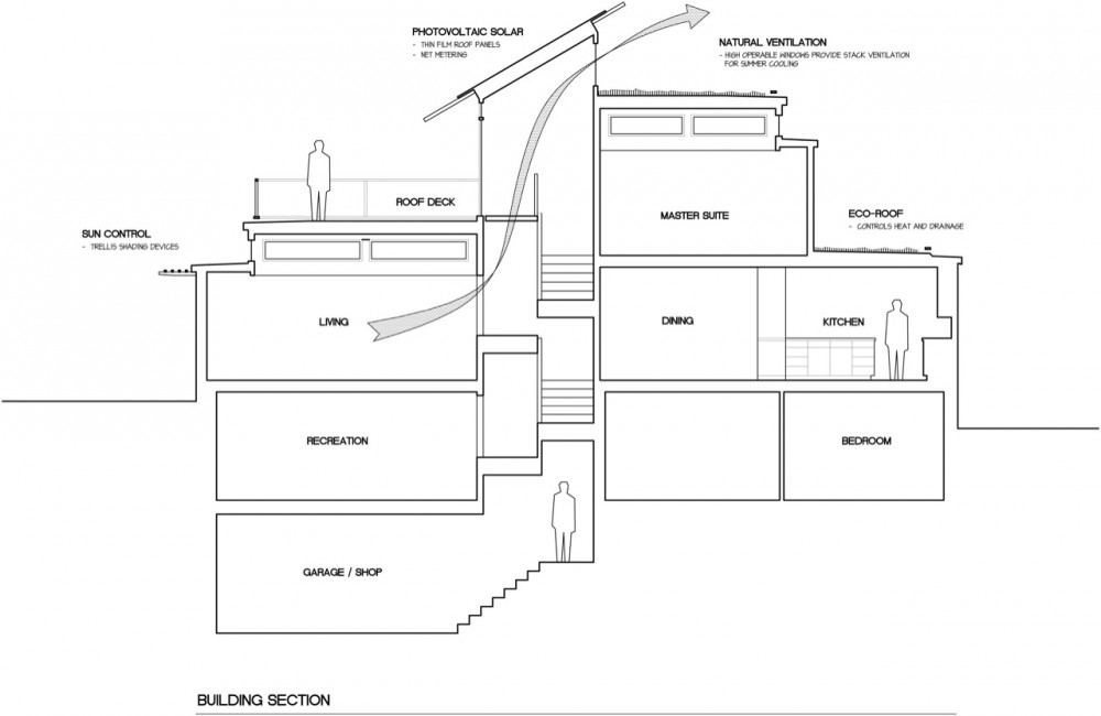
NEXTHouse位于城市角落的一个地块上,5,500平方英尺,面朝南方。建筑师将住宅设计的能良好利用其所在的地理位置,各个部分朝着自然光线和良好视野而展开,成为一个位于西北地带上一个多元的建筑元素。各个阳台和露台使住宅的室外空间既可以进行正式活动,又可以私人聚会。

NEXTHouse取代了原本的一个设计不佳的住宅,在将其拆除之后,新住宅使用了其大部分的结构材料进行建造。为了减少对建筑场地的破坏,新住宅使用了旧宅的一些没有拆除的地基。旧宅的墙板在重新加工之后也用在了新宅上。事实上,新宅进行了严格的原料再利用计划。为了减小扩大住宅面积而导致的排水困难问题,建筑师为新宅设计了一个生态屋顶,这样,就能减少雨水在院内的聚积。

住宅的节能设计包括喷雾聚氨酯泡沫保温设施、一个高效率、低排放的、用于地板辐射采暖系的统燃气冷凝锅炉、一个空气对空气热交换器通风系统、天然草垛通风系统、PEX水暖管道(更好的保温性、更短的管道长度)和使室内自然光线最优化的天窗等等。位于屋顶的、带有净计量的太阳能电池管可以为住宅供电。此外,住宅还使用了许多可再生材料。

NEXTHouse绝对是未来独户住宅的建筑典范,它位于市区、占地狭小、效率很高又绿色环保。









|