|

这座公寓楼由XTe a+d建筑事务所设计,位于秘鲁首都利马 —— 一个以中规中矩而著称的城市,所以这座住宅楼的建设,用“挑战”来形容都太过“谦逊”,而应该用“挑衅”!它那排列灵活的空间、高度、色彩、反光度、材料和其它各种元素绝对让它“特立独行”了!

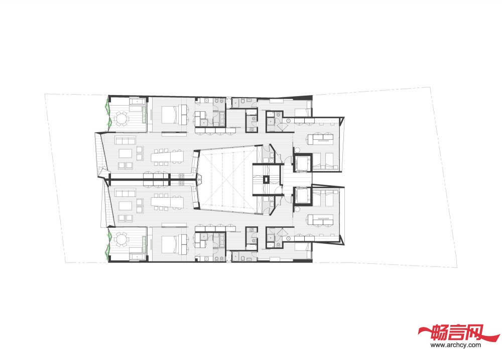
这座公寓楼俨然是一个二元建筑 —— 它的室内设计是极简派艺术风格的,而它的主幕墙设计却表现主义风格的。从室外看,公寓楼的外墙恰好反映了利马市的整体建筑轮廓,因此,外墙上空间的设计就反映出了这种“混乱中有所秩序”的感觉。在主幕墙上,这种形象更是演绎到了极致,而这种风格恰好就成为了这座建筑的标志,同时又让每一个公寓都与众不同,但又不会破坏整体形象。“我们的目标,毫无疑问,就是建造一座为利马量身打造的建筑”设计师说。

室内空间的特点是:每间公寓的大小都经过了精心的测量、每间都十分具有家的味道、每间公寓都很系统的在主幕墙上面设计开口、从窗框板、玻璃和分隔墙之间的部分观景、保证每个空间之间都非常融合紧密。同时,滑动窗的使用,又将路线和空间更加的一体化,让所有公寓融合起来形成整体,而从不同的地点看,有些景物会看不见、而有些景物又出现在你眼前,这就让本来就很优美的周围环境,通过由建筑的每个角落形成的广阔空间上的细微不同,更显得迷人。

为了与建筑外形的多样性、复杂性、宽敞性和城市的文化相互吻合,这个公寓并不会让你在第一眼就参透它所有的美好,不论室内室外,无论每个地点。它的美好隐藏在“室内路线”、“完美的空间排列”和“视觉轴线的多样性”的巧妙设计上,让你去揭开隐藏在建筑每个角落的神秘面纱。

通过使用极简派、融合、平和的建筑语言,所有的这些细节元素都按照非常完美的秩序排列,在整体上形成了平衡。

“尽管利马的居民都认为住宅公寓里是一件很酷的事儿,我们还要保证这里可以以传统的生活方式让人们在这里生活。在每间公寓靠近前后墙的部分,有两个明亮区域,这里是公寓的主要房间,这让住户能够看到城市和太平洋的景色。而服务区域则位于微亮的地方。”设计师说。

私人露台和阳台、外侧植被幕墙和十字通风仅是抵抗太阳辐射设计中的几个而已,不仅如此,它们也保证了公寓里自然空调的效果。

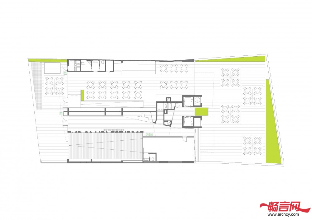
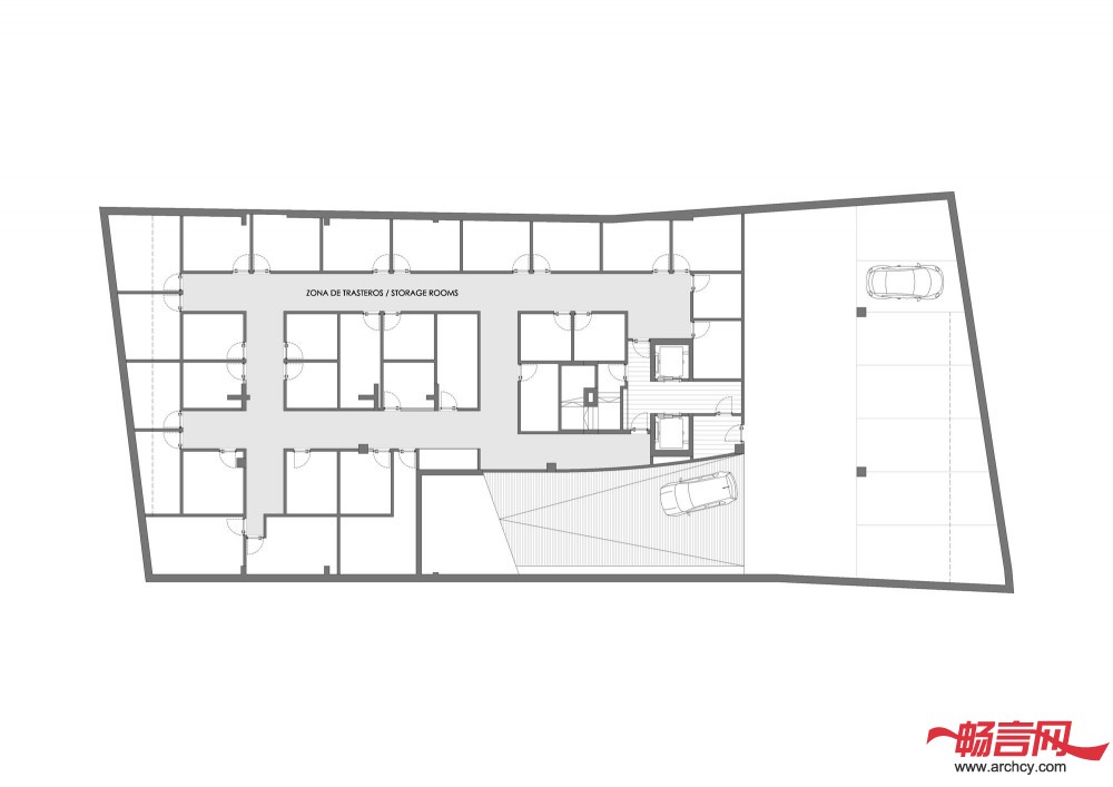
最后,一个有着良好光线和通风的室内庭院、一个屋顶社区活动区域(包括一个广大的游泳池、一个日光浴室、一个观景台、一个烤肉架)、一个位于一层的商铺单元和一个位于地下室的大型停车场,公寓楼的设计完美结束。








|