|

Edmonds + Lee Architects建造的这所Summerhill住宅位于加利福尼亚酿酒小村里。它的特别之处在于,房子的两个高处的角落下面被特别设计成了室外起居室和庭院。
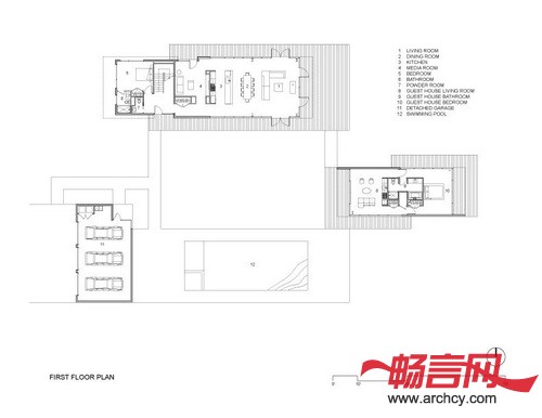
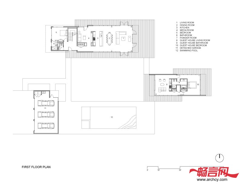
住宅包括三个单独的建筑,分别是主房、客房和独立的车库。这几个房子的朝向保证了住宅室外空间的最大化,而且把自然和人工元素连接了起来。

住宅的室内和室外空间都向着连绵的小山展开,这样不仅将室内和室外空间连接起来,同时也模糊了室内和室外的界限。玻璃墙和广阔的木板露台让“身处农村”之感十分强烈。

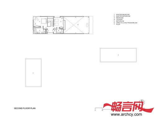
主房和客房的排列十分巧妙,设计的也十分漂亮,而且每个房子都可以欣赏到加利福尼亚的风景。它们两个的外形十分相似,仿佛是彼此照着镜子一样,这样就营造出了两者实际上是连在一起的错觉。车库的设计也给人同样的感觉,这是因为建筑材料和建筑外形相似而让这三个建筑看起来非常相似。主房和客房的两个高处的角落不仅让建筑的外形更加吸引人,它们也是建筑师别出心裁的设计的体现 --- 这样设计会让室内和室外空间更加融合。

从室内看,地平线与远处山坡的线条融合在一起,这使自然景观与人造建筑相互作用的结果。两个建筑之间的实体空间和空地相互作用,这保证了即使实在很近的范围之内每个屋里都有很好的隐私性。

到了晚上,光束从底下照亮两个屋子,而位于木质结构下的窗框则在两层的主房中显得更加明显。这三个房子仿若是与周围森林相对立的三个物体一样。木质的外墙、玻璃窗和混凝土很好的配合使用,这使住宅看起来既与众不同,又有当地色彩。




|