|

Solo House Casa Pezo是Solo House理念的一部分,它包括八到十栋系列度假别墅,是一些富有才华的年轻的国际设计师设计的。
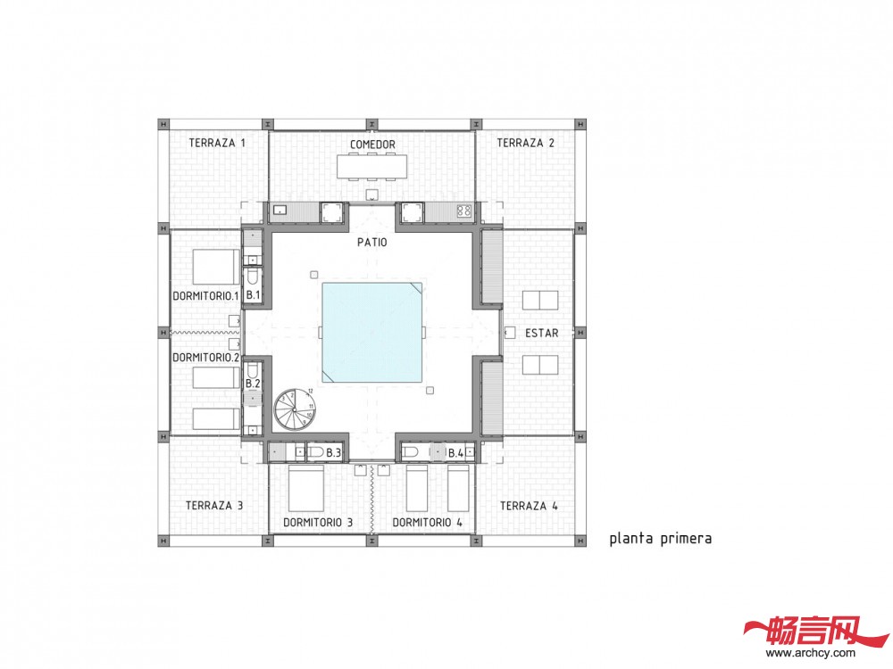
这座建筑在建筑环境中非常显眼。它是一栋从地面升起的水平建筑。隐秘的建筑墩座支撑了住宅庞大的镂空结构。从远处便可以看见这栋住宅悬在半空的部分,而另外一部分则隐藏在茂密的枝叶中。从悬在半空的部分,你就可以知道住宅的朝向 --- 四面都是开口的。在这个四方形的露台里面,是由随意排列的16根柱子支撑的方形大厅,大厅里面有功能各异的房间。明亮、相互对称的各个房间从带开口的拐角看,效果更加明显。

住宅中的门廊作为一个房间显得过于狭窄,作为一个露台又有些深。在空气流通良好的平台中间设有一间单独的内部空间。这个空间没有房顶,并且它的四个方向没有任何阻碍,可以使使用者观赏四面八方的景色。它的中间设有一个尽可能深游泳池,同时将这栋住宅与地面分离。在这个天井泳池里,你可以经历飞天入地的奇妙旅程。









|