|

Casa Once Mujeres是位于Beranda度假之家。它位于智利圣地亚哥北部140公里太平洋沿岸的一个陡坡上。Mathias Klotz建筑事务所要为一个十三口之家(一对夫妇和十一个女儿)设计第二个住宅,这个住宅共三层,将提供所有的使用空间,包括主卧室、娱乐区域和客房等等。

建筑场地在梯田似的陡坡上,这里有非常棒的观海视野。三层空间如下布局:底层是共同空间,有游戏室和电视间;中间一层是11个女儿的卧室和两个给不同年龄段的孩子使用的起居室(他们女儿从4岁到20岁不等)。顶层有服务区域、主卧室、起居室和家庭餐厅。

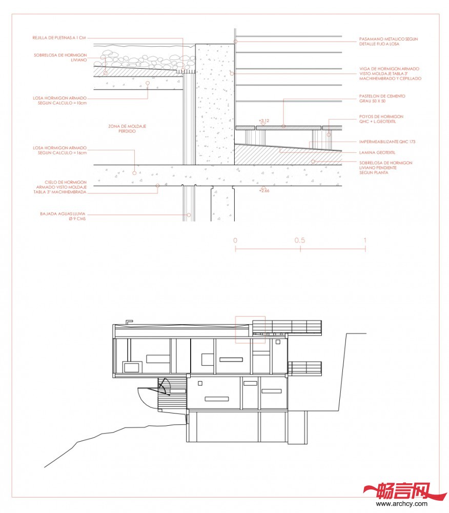
Casa Once Mujeres使用混凝土和石灰华地板建造,它紧凑的空间布局地块的等高线保持一致,这样就能让每个房间都有很好的视野。露台十分宽敞,这能挡住来自南面的强风,铰链百叶窗则挡住了来自西面的强光。













|