|

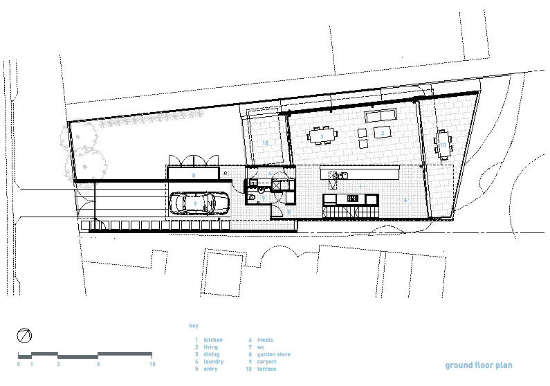
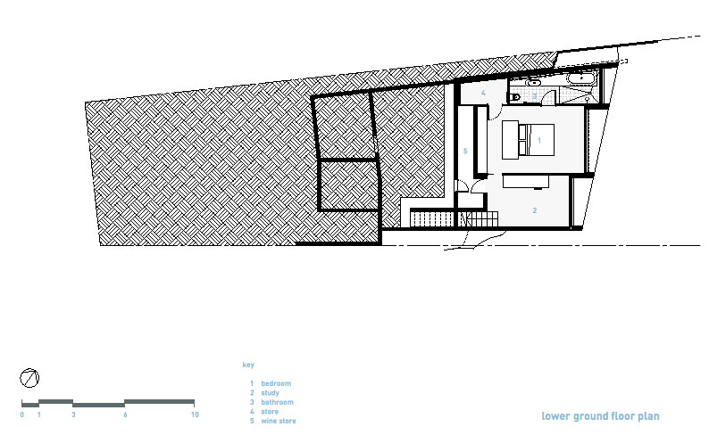
这座住宅位于一个非常紧凑的地块上,它的地势也十分险峻 --- 位于距海面100之处的悬崖边缘。住宅的外形呈楔形,呈南北走向,它东西两侧的住宅接近地块的边缘。
大块的鳍形墙壁将入口和流通空间与生活区域和花园分开,这样不仅使住宅的隐私性更好,同时它又能支撑起了二层的卧室空间。

设计师对住宅进行了精心的设计,他们特意将主要生活区域设计的能使花园与下面的大海连接起来,同时利用住宅的地形优势,将住宅靠近悬崖的一边设计的更加宽阔。通过恰当的安排结构墙的位置、安装大块玻璃窗和设计屋顶形状,这样使起居室更加的宽敞、拥有充足的自然光线、良好的通风和隐私性,又能拥有绝佳的观景视野。

此外,住宅的耗热量也很少,通过在一层使用混凝土地板和石质墙壁,就能为房屋提供热质量。水循环地下供热系统可以为所有生活区域供暖,这样就能抵御冬日的严寒。屋内的地板使用的是深色的瓷砖,这样在清早,它们既能吸收热量,又能较少的反射来自海洋的光线。高处的百叶窗和位于天花板上的风扇使屋内的各个房间都能享有充足的自然光线、保证良好的通风。

住宅还有地下雨水蓄水池,它能储存超过5,000升的水,这些水可以用来冲厕、浇灌和洗涤。此外,这个住宅十分适宜居住和生活,有了节能和环保设施,在这里生活费用会很小。该住宅为其主人提供了一个闲适又漂亮的居住之所,他们可以在这里生活、娱乐,又能欣赏美丽的自然景色。









|