|

亚利桑那州立大学(ASU)的科学技术大楼4(ISTB 4)是该大学地球与空间学院(SESE)和富尔顿工程学院(FSE)的所在之地。该大楼占地27,313平方米,共有七层,它是ASU有史以来最大的科研大楼。ISTB 4里面除了有顶尖的实验室和研究室之外,还设有大型的公共研究空间和K-12(美国的小学和中学教育)教育空间,设计这些空间的目标就是要更多的融入到大凤凰城社区的地球及空间探索活动中来。这座由Ehrlich建筑事务所设计的大型开发项目的定位十分明确:一个致力于提高科研和教育计划的实验大楼。

ASU要求Ehrlich建筑事务所将这座建筑设计的达到LEED标准,所以该建筑事务所力图拿到LEED银级(甚至更高级别)证书,尽管建造这个项目有预算有限、空气处理和供电事宜复杂等局限。

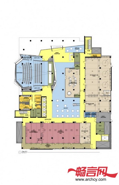
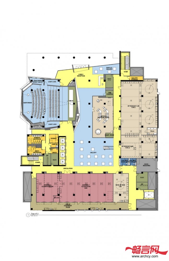
大楼的一层是一个公共教育走廊,它与入口大厅相连。这里还设有一个高级的、有250个座位的礼堂、大型的拱廊和有遮荫的入口等等,因此,这一层将会是社区和校园的一个重要的、进行各种活动的聚集场所。

“集合”是这座建筑设计的重中之重。科学家和工程师都会在一个五层高、自然光线充足的、被称为“空中起居室”的中庭里聚集,之所以称之为“空中起居室”是因为这个中庭是从三层开始的。中庭无论在建筑结构上、视觉上都让每个楼层与楼梯、大厅和聚会地点连接起来,在这几层上的安全性也很高。

剖面图
外墙材料的选用突出了大楼构造清晰的特点,同时也让大楼也更显得有活力。透过高性能的玻璃,来自北方的阳光可以照到里面的办公室区域。办公楼西侧是双层的幕墙,这样就可以根据太阳的位置调节光线。

作为实验空间和服务走廊的垂直光井的外墙被设计成暖色调,材料使用了当地的红砖,这让这座大楼又成为了一个生态建筑。外皮设计和材料选择也十分考究,设计师们要保证楼内能源的最高效利用、可持续发展和价值。该项目力图达到LEEDTM金级。

一层平面图

二层平面图

三层平面图

四层平面图

五层平面图

六层平面图

七层平面图

地下一层平面图
|