|
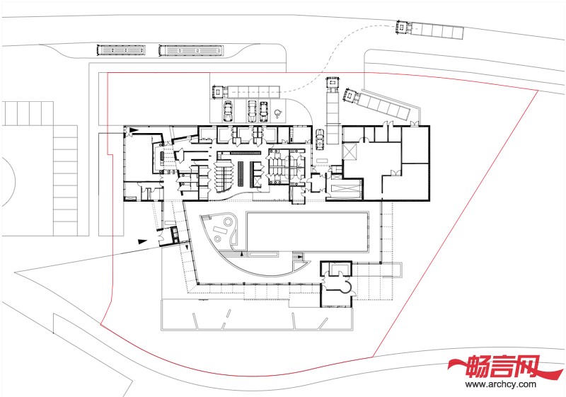
这座综合性水上建筑位于Saint-Brice-en Cogles市中心附近的一个旧农业区内。建造它要综合考虑两个因素:
-体现该地的农业历史
-提供以娱乐为目的的设施
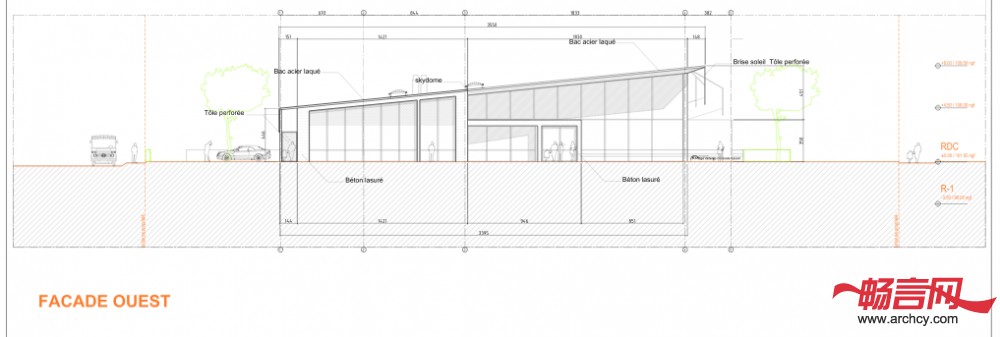
该中心的表面装饰了很多彩色的穿孔金属和水泥板条,它们重新展现了过去农业在耕田时留下的痕迹。从水上中心大厅的室内来看,这些装饰的线条构成了一顶大型遮阳棚,看起来十分活泼,也“告知”了人们,这里是个度假区。

这些线条延伸到了室内海滩附近的外部农艺区。



这座结构紧凑的建筑被分成两个不同的区域:南面的部分包括多功能室、更衣室和技术用房;北面的部分是水上运动大厅。建筑的设计也将环保考虑了进去。


除了占地狭小、与周围的环境和谐相生、遮阴效果良好之外,它还能保证对能源的优化管理,外墙保温、木质采暖、通风系统和加热地板等都是其中的一部分。



这幢建筑巧妙的融入到了周围的环境之中,它尊重了这里的农业历史传统,同时又对公众开放。






|