|

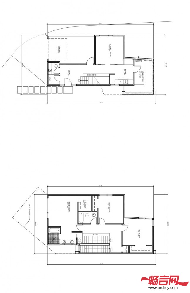
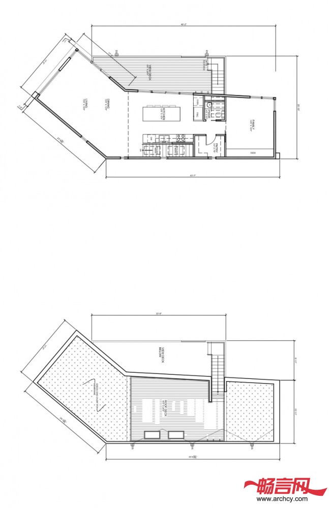
这个233平米的独户住宅位于西雅图的菲尼区(Phinney Ridge),它是Pb elemental architecture建筑事务所为一个年轻家庭设计的,住宅的地块很小。在这个只有186平米的地块上(因为整个地块的西南角还有一个入口坡道会占地)建造一个住宅是很有挑战性的,由于这个入口坡道的存在,让建筑的底座占用了大部分的庭院区域,所以,要想拥有室外区域,就得从建筑上面入手。出于这个考虑,建筑师们将楼层规划反过来了 —— 让起居室位于三楼,这样住宅的主要空间就直接与户外区域相连,并拥有良好的光线和视觉效果。房屋的主人精心的挑选了家具和墙面材料,这让房子看起来更加的温暖,仿佛欢迎客人到来一样。为了让住宅与街道在视觉上连接到一起,设计师为楼梯设计了玻璃外墙,这样人们在上下楼的时候就可以看到外面的活动。顶层朝西侧开放,这里有一个阳台和一个通往屋顶平台的室外楼梯,从屋顶平台可以看到博拉德公司大楼和普吉特海湾。









|