|

田纳西archimania建筑公司为他们有着前卫思想的客户设计了一个外形类似于零售商店的诊所。由于这个诊所位于“零售店海洋”之中,所以,建筑师把它设计的温暖而让患者愿意来到这里,同时又要独特、现代。

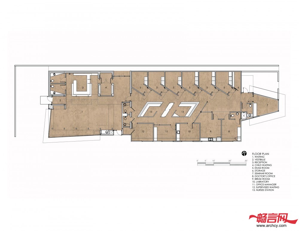
诊所位于一个普通的郊区环境之中,设计小组希望能够用一种非常有艺术效果的方案,来打破医学建筑冰冷、坚硬的特点。从诊所的外墙可以将它分为四部分,这几部分组成了诊所的两个功能区。头两个部分是石板、倾斜玻璃和木板做成的外墙,它们将候诊区分为员工私人区域和公共候诊区域。

诊所的外墙使用不锈钢板做成的,而后面的会议室则也是用木板和玻璃做成的外墙,它们与公共候诊区域相互呼应,这就是诊所的另外两个部分。诊所位于两个汽车零售店之间,但是客户觉得不让诊所迷失在繁忙的环境之中。

诊所里不但有隐私较好的检查室,也有比较开放的空间。护士站和候诊区都非常宽敞而且氛围温暖柔和,同时充足的自然光线还使这里十分舒适。通过对材料的选择、安排和布局,使诊所的室内和室外都洋溢这一种舒适和体贴的感觉。





|