|
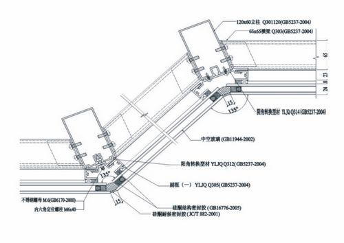
1、标准化系列化:在建筑工程中建设单位和建设设计方对构件式玻璃幕墙构造的要求是一个工程一样,对幕墙构造重新设计,支承结构的铝合金型材不能通用,均要新设计制造模具生产型材,增加型材成本 ,延长供料时间影响了幕墙的施工安装工期。当工程施工后本工程剩余的型材,其他工程不能用、只能作废料使用,造成很大的浪费。为确保建筑幕墙具有建筑艺术、安全耐久、性能稳定、结构先进、经济合理,对构件式幕墙总结了设计及施工的经验,按标准化、系列化、进行构造设计及选材。有80、100、120、140、160、180等系列节能型玻璃幕墙、铝板幕墙、石材幕墙的典型构造节点。幕墙立柱及横梁,在明框、隐框幕墙的平面及转角部位均可通用,结构简单便于设计和施工。在众多建筑工程幕墙设计、施工中实现了标准化、系列化并且有安全性、通用性、经济性。(详见节点图,型材断面图(图一)(图二)(图三)(图四))

幕墙转角节点图 图二

隔热垫式明框节能幕墙节点图 图三

幕墙立柱型材 图四
|