|
2、隔热垫式明框节能幕墙:在节能幕墙所选用的隔热型材有穿条式(PA66GF25)和浇注式(PUR),由于玻璃幕墙分格较大,中空玻璃重荷载效大,并承受正负压风荷载的交变作用。本“节能型建筑幕墙构造”标准设计推荐性通用图集中,经有关专家论证推荐隔热垫式(PA66GF25)隔热型材在明框幕墙节能设计中优选使用。采用不锈钢螺栓将压板机械固定,即节能又安全耐久,确保建筑工程长期安全使用。隔热垫式隔热铝型材可选用普通铝型材具有经济性。
(详见附图 (图三、四))
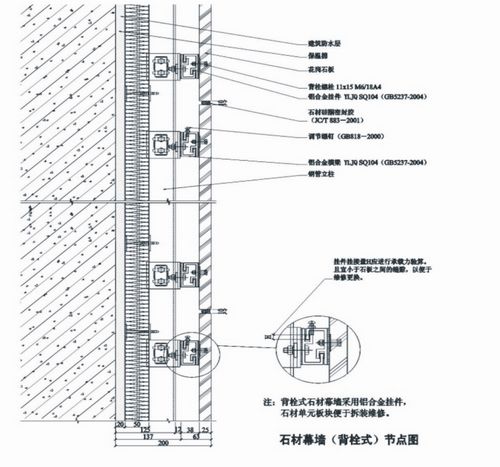
3、石材幕墙构造设计:
(1)槽式背栓式石材幕墙,采用铝合金挂件实现石材单元板块可卸装便于维修。
(2)干挂石材幕墙采用墙面保温,结构简单保温性能稳定,保温材料应采用岩棉、矿棉、玻璃棉等不燃或难燃材料。
(3)铝合金挂件与石材连接采用有弹性的石材专用结构胶贴结。是柔性结构防止节点处石材破裂。石材板块间缝隙采用石材专用硅硐密封胶,并做无污染检测合格。(见图五)


石材幕墙节点图 图5
|