|
.jpg)
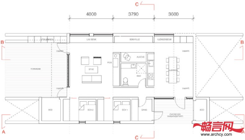
这个项目是一个过冬小木屋,位置在挪威的Ål山脉景观区域,这里对建筑有很多的限制条件。因为小木屋位于深山里,所以冬天时候只能滑雪到达这里。客户想在这里建造房子的原因就是在这里滑雪、滑雪橇和冬天在木屋顶上野餐。
介于该区域的建筑限制条件,木屋的建筑材料、屋顶角度和房子高度都是当地政府决定的,这样才能保证传统山脉住宅的外观。我们找到了按照这些规则来解决问题的设计方案。
.jpg)
我们把屋檐拉长,并让它和墙形成23度的角,木屋就成为了景观中的一员。
木屋高的一端朝向该区域里的主要景观,这就形成了一种如诗画一般的感觉。
风从木屋旁边吹过,学在木屋屋顶停留,仿若进入了童话世界一般。
木屋将于2012年夏天开工建造。
.jpg)
.jpg)
.jpg)
.jpg)
.jpg)
.jpg)
.jpg)
.jpg)
.jpg)
.jpg)
|