|
.jpg)
特定的建筑任务是现在城市开发的中心主题:屋顶要作为建筑场地建造单独的建筑——这就是城市开发的新要求:将屋顶优化利用为建筑场地。
因此,建筑师也经常面对着一个问题:如何将现有建筑改造得更有现代感。S住宅本是一个60年代的平房,它是建筑师Wilfried Hilger为自己和家人建造的。
.jpg)
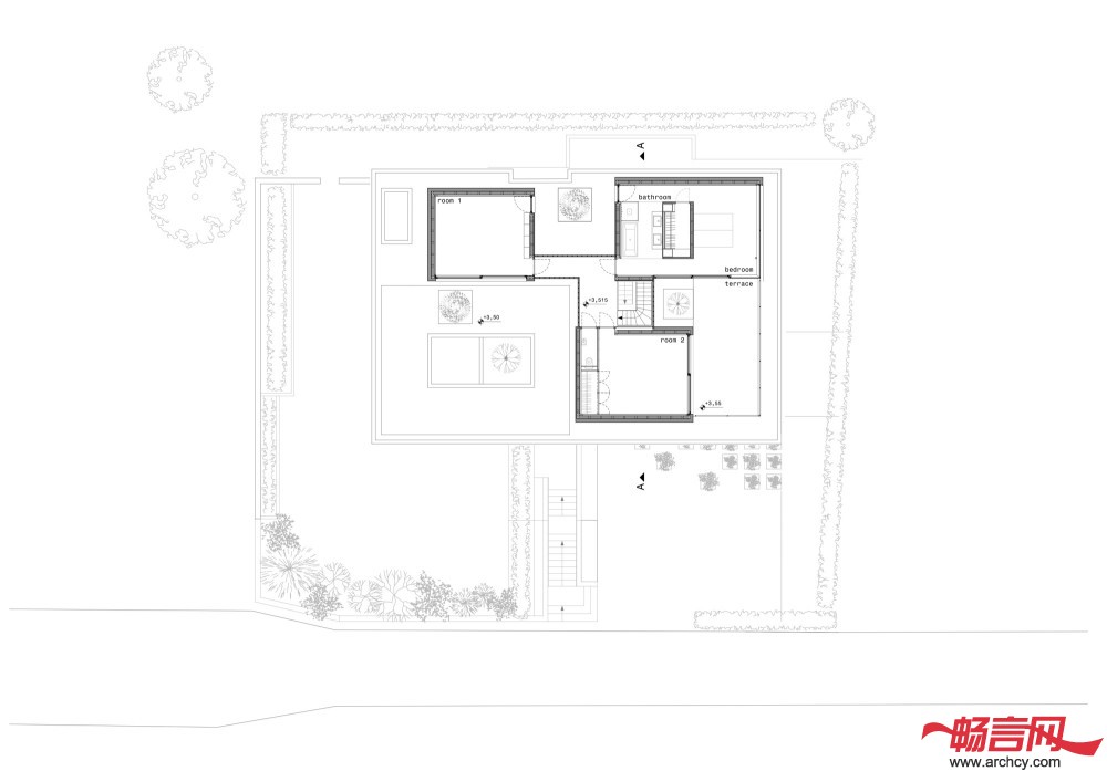
对于房子的新主人(四口之家)来说,房子的空间有点不够用,所以他们决定在平房上面再增建几个房间,并对原住宅结构进行修理。增建保留了平房传统的特点,然后在其悬臂平屋顶上面添加了三个独立的方形空间,三个空间之间由一个玻璃走廊连接起来。
.jpg)
新建部分创造出了几个不同体验的区域:西南部是草坪,这里有一棵小苹果树;北部是石板铺成的小院子,这里有一棵松树;东部是屋顶露台,这里有木兰花。新建的三个空间里其中一间是主卧室,里面带有更衣室和浴室。另外两个房子里有一个是个人起居室和家庭办公室。
.jpg)
一层原来的旧墙壁和装置都被拆除了,这样,这里就改造成了一个大的起居室。开放式的厨房也在起居室里。除此之外,一层里还有儿童房间、更衣室和浴室。
.jpg)
地下一层有一间客房和一间公寓。通过使用三层的玻璃窗和高效的保温材料,S住宅成为达到了能源的优化使用。
.jpg)
.jpg)
.jpg)

|