|
.jpg)
地理位置及周围环境
安塔斯最近重新设计了城市详细规划方案(Detailed Plan of Antas),安塔斯学校的建筑地块就在其中。它的周围不是楼房建筑,北面是一个陡坡,南面是一个建筑地块。
.jpg)
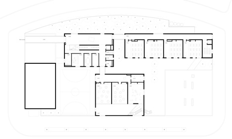
设计理念
安塔斯学校的建筑由几部分组成,每一部分都是一个功能区,是根据室内布局、功能、形状、外观等因素而划分的,形成了一个独具特色的建筑。
此项设计还将地块形状、太阳朝向、入口和周围环境考虑了进去。
.jpg)
各个空间、室内外空间的联系也考虑了进去。
.jpg)
最终形成的建筑是几个建筑连接组成的,这几个与室外空间相互作用,形成了一个多元的环境。
.jpg)
.jpg)
.jpg)
.jpg)
.jpg)
.jpg)
|