|
.jpg)
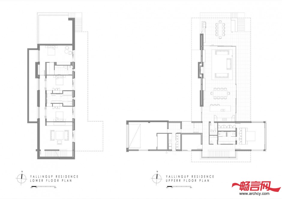
Yallinggup住宅的建筑场地位于澳洲西部的一个山村里,它的东面就是一个非常漂亮的山谷。它是客户和他的大家庭的一个度假住宅。客户自己也参与了钢筋框架的制造,所以,钢筋结构是建筑的一个基础。
.jpg)
主起居室是一个大的玻璃空间,位于一个卧室套房的上面,这个卧室套房是用大块石头建造的,它嵌入到了小山里。这样的布局保证了最好的隔音效果和隐私,上面进行的活动就不会影响到这里。主卧套房位于住宅的一侧,它穿越过了主起居室,也与位于西侧庭院的车库和洗衣房连接了起来。入口位于这几个空间的交汇处。
.jpg)
宽敞明亮的主起居室保证了广阔的视野。钢制的屋顶结构(主卧部分)保证了屋顶能够悬挂在下面的建筑结构之上,并且在它的顶端安装了玻璃窗。主室外生活区域位于北面,顶上的宽大悬垂屋顶为其提供了防护和遮荫。选用的材料也适合季节的变换,同时也与主流的现代主义建筑形成了明显的对比。
.jpg)
.jpg)
.jpg)
.jpg)
|