|
.jpg)
这个项目让4-D建筑事务所获得了第六届公司建筑奖(6th Corporative Architecture Grand Prix )的最佳工业和物流中心建筑奖。
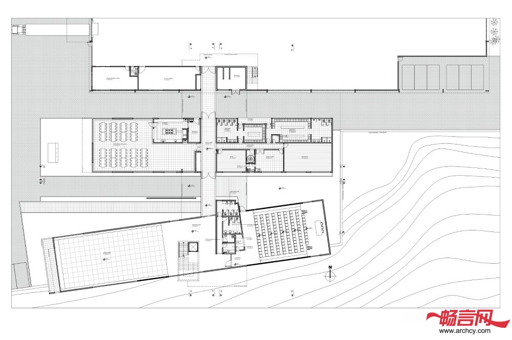
Bortolini Móveis公司为了扩大其生产能力,在Garibaldi镇建造了一个新工厂。该项目的几个空间的外形各异,而且在材料使用上,石板和木板与混凝土形成了强烈的对比。
.jpg)
在这个项目1.8万平米的建筑面积上设有行政区域、销售区域、展室、生产区域和娱乐区域。为了让行政区域更加灵活、并能彼此联系,设计师设计了三个各具特色的功能空间:带有接待室的公共服务区域、展厅和报告厅、一个员工专用空间。在两个翼楼中间还有一个空间,这里是行政区域,它通过一个中间夹层与室内空间连接起来。
.jpg)
生产厂房占用的土地面积最大,达到了1.6万平米。它是用预先定型的金属结构建造的,位于一个平台的上面,这样既方便装货卸货,又能保证在维修的时候人们可以在外围自由的走动。在这下面是健身房和舞厅。
.jpg)
这个项目不但考虑了美学效果和实用性,它还融入了可持续性设计,包括在行政区域的自然照明和通风,以及在工业厂房里的天窗等等。室外还安装了光伏电池,绿色植物将室内温度调节的十分适宜,雨水循环系统能为绿地浇灌。
.jpg)
.jpg)
.jpg)
.jpg)
|