|
.jpg)
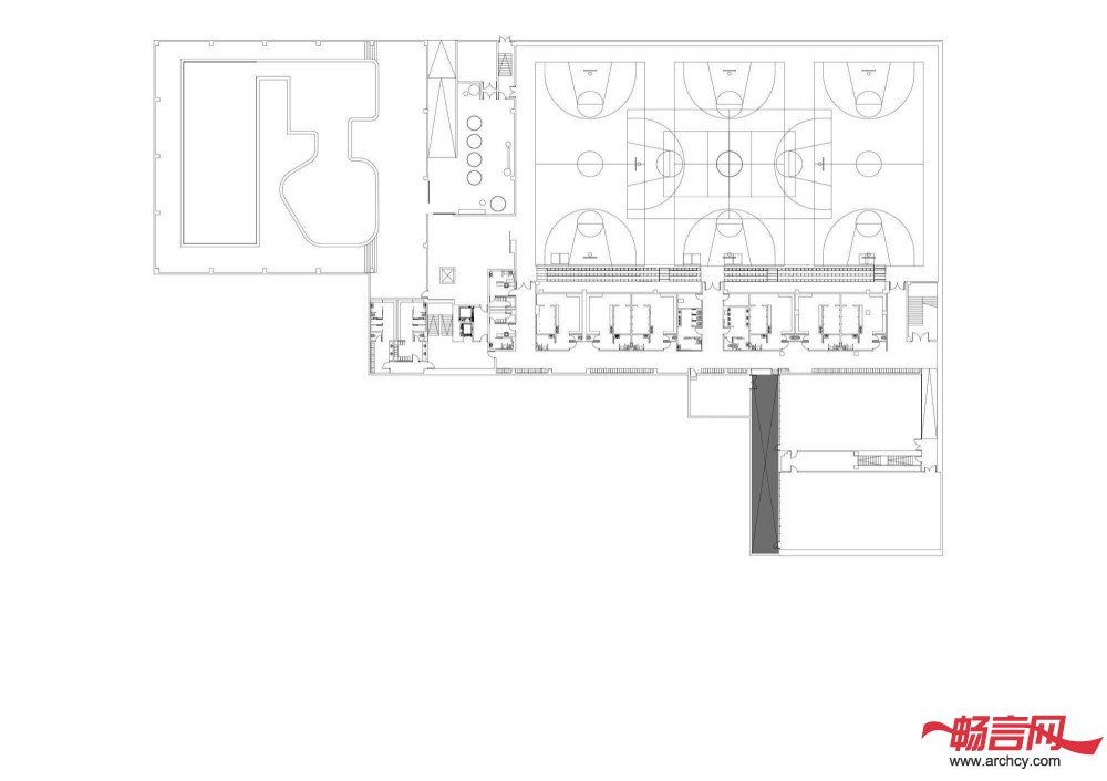
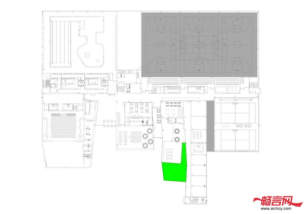
IbaIbaiondo社区中心面积14,000平米,位于西班牙的Vitoria-Gasteiz,它将运动、休闲、社区办公室融合在一个建筑里。
在保证室内宽敞、功能区域有序安排的前提下,建筑师将中心设计的比较开阔、开放,以吸引市民来这里,室外设计就能让人看出里面的功能:剧院、休闲和运动泳池、日光浴室、咖啡厅、内运动中心、图书馆、工作室、市民服务委员会等等。
.jpg)
中心并没有使用复杂的幕墙,反而向人展示多元的室内空间,这也让自己看起来比较休闲舒适。也正是因为室内有很多不同功能的空间,中心的室外才能如此独特抢眼,尤其是聚合物混凝土幕墙和朝向各个方向的凹槽能反射出各种色彩的光线,非常漂亮。
.jpg)
室内设计是严格根据竞标时期当地委员会技术小组制定的功能标准进行布局的。运动空间(游泳池和室内运动中心)位于建筑的北面,它是根据笛卡儿几何学确定几个空间的大小和规模的。其它的区域位于南侧,这一面的几个不规则空间朝向住宅区。其它功能空间沿着走廊布置,走廊将不同的功能空间连接了起来。通过走廊的玻璃窗,过往的行人能看到里面的活动,好像一个可以的展窗一样。
.jpg)
建筑内的能源可持续设计也达到了很高的标准,保证了高效率的保温效果和设备的高效运行。另外,大约700平米人太阳能集热器能为游泳池的水和建筑里面用水加热。此设计预计能减少1,900吨的二氧化碳排放。
.jpg)
.jpg)
.jpg)
.jpg)
|