|
.jpg)
当你来到一个陌生的地方,你会感觉到处不对劲甚至被隔绝世外,这就是你离开家的感觉。因为你不在家里或者每天熟悉的环境里。尤其是在一个相当复杂的城市更是如此,不同的过度、不同的文化或者不同的建筑,都会让我们产生这种感觉。
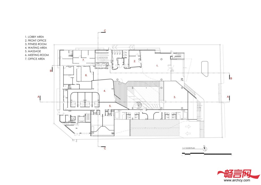
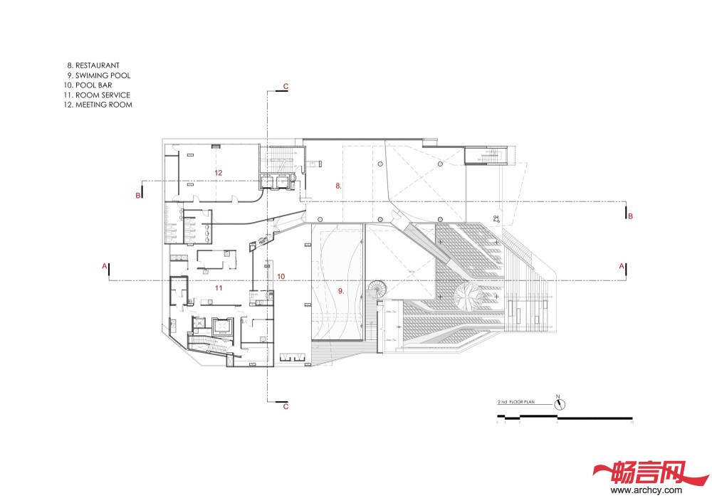
曼谷LIT酒店就位于这种复杂的环境中,它的周围事物十分多元,周围的各个功能区域共同存在于此看起来也相互不协调:200米以外就是火车站,一个街区以外是艺术博物馆和购物中心,建筑场地周围有商店、小旅店和沿街小摊。VaSLab建筑事务所的LIT酒店设计突出了它的建筑空间,让它既能吸引来往行人的目光,又让远离周围混乱的环境,同事又让建筑里面的空间温暖舒适。这个L形的酒店共有79个房间,里面设有游泳池、水疗室、健身房、蒸汽房、餐厅和酒吧、功能室,外面还有两层的绿色空间,它能将路人的目光吸引过来。一楼的过道将人们引向接待处,从这里看到里面的下沉庭院,它与周围是玻璃墙的大厅在视觉上连接起来。庭院由健身房、蒸汽房和水疗室围绕,水疗室位于高处游泳池的下面。前面的绿色台阶将客人带往高处的小广场上,这里是室外餐厅,从室外餐厅经由一个雕塑的小桥就能到达室内餐厅。
.jpg)
酒店的空间的视野都是向内的,而且外面有一层白色网状幕墙,它是从新娘的面纱中获得灵感而建造的。这个幕墙是3-7层住宿空间的帷幕,它将人们的视线集中在酒店里面,包括绿色小广场、下沉庭院、游泳池、幕墙灯光等等,而不是让他们看向外面的老旧商店和房子。幕墙是用几个平行四边形的复合铝板做成的,经过光学切割后,形成了四个大小不同的板块。光线透过幕墙上的孔为室内提供充足的光线,人们也可以通过这些孔看到外面。
.jpg)
因为LIT附近的曼谷艺术文化中心已经破旧不堪,它的场地几乎都让给了一个百货商场,LIT注定要被设计成为该地区另一个艺术品,让人们相信商业可以暗淡下来,也可以更多的与艺术和设计领域相互融合。仿若这个地区里一根燃着的蜡烛,LIT将艺术和舒适完美的融和在一起,它的美丽足以让初次到访曼谷这个小城市的客人在此驻足。
.jpg)
.jpg)
.jpg)
.jpg)
.jpg)
.jpg)
.jpg)
.jpg)
.jpg)
.jpg)
|