|
格鲁吉亚总统Mikheil Saakashvili昨天正式官方发布了由Ben van Berkel / UNStudio建筑事务所操刀的Kutaisi机场的设计方案。
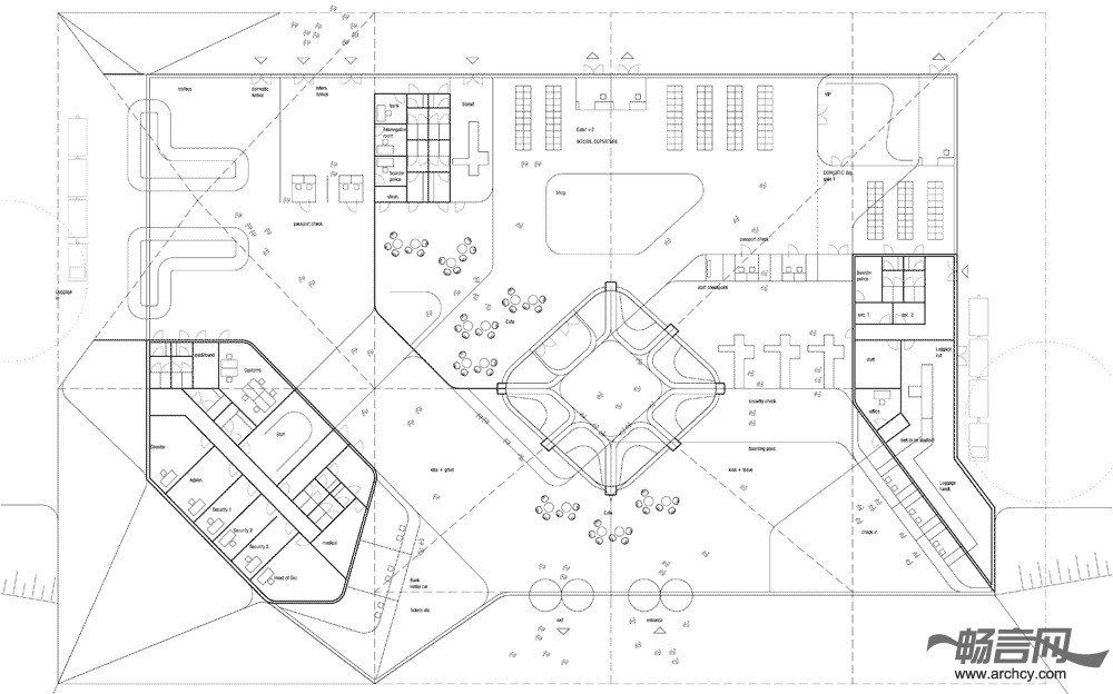
公布的方案里包括新转机航站楼和空运控制塔楼。

4,000平米的航站大楼里面有一个中央到达大厅、一个手续办理区域(带有大厅、咖啡馆和租车区域)、三个离港等候区域(有商店和咖啡厅)、一个CIP大厅和室外花园、一个到达区(有海关和过境检查警员办公室)和行政区域(有员工办公室和媒体区域)。
航站楼建筑参照了亭子的设计,建筑结构从一个门口开始围城了一个圆形、保护性很好的空间。这个空间是沿着里面的一个中央室外区域而建的,乘客从这个区域里出发乘机。在这个中心区域周围还建造了一个透明区域,这是为了保证乘客能够顺利的流通,让下机和登机的乘客不会彼此冲突。这几条轴线将从广场到停机坪再到高加索山脉地平线都连接了起来。UNStudio的设计方案提供了恰当的建筑逻辑过程,最好的保证了机场安全,同时又让旅客能舒适方便的流通。Kutaisi机场航站楼还是格鲁吉亚的大展厅——这里有一个艺术画廊,用来展出格鲁吉亚艺术家的作品,向途径机场的各国乘客展示格鲁吉亚的现代文化。

55米高、300平米的空运控制塔楼将航站楼烘托的更加漂亮。位于顶层的交通控制室是塔楼的中心,这里的空间宽敞舒适,让人们能很好的集中精力工作。在塔楼附近还有一个1500平米的支持办公空间。塔楼的幕墙是透明的,无论什么时候有航班进出,它都可以变换颜色。空运控制塔不只是国际机场的灯塔,从附近公路和Kutaisi市上看,它依然是那么显眼璀璨。
设计师Ben van Berkel说:“通过对场地的规划布置,新机场设计方案将旅客融入到了设计当中。每一架飞机的离开或到达,都会有一个宏大、开放、高高的航站楼欢迎或欢送他们,就像过去的火车站一样。”

Kutaisi机场的设计使用了当地和国际的可持续性元素。建筑场地上有充足的地下水资源,这就为通过混凝土芯活化技术进行节能设计提供了基础。航站楼和空运控制塔楼的每个楼层都使用水来保持楼内温度的稳定。航站楼的悬臂屋顶可以为南部和西南部区域遮荫。此外,航站楼的主题结构上还安装了合成抵押通风系统,地下还有污水手机系统。为了进一步减少能源消耗,楼顶上还放置了光伏电池。Kustaisi机场也将使格鲁吉亚第一个对垃圾进行严格分类的机场。

机场建设将于下月开工,预计明年9月正式运营。



|