在线投稿 设为首页  
     
    首页 >  案例 > 国际视野 > 建筑  > 正文
日本:白色宿舍
发布时间: 2011-12-16   来源:匿名网友投稿 

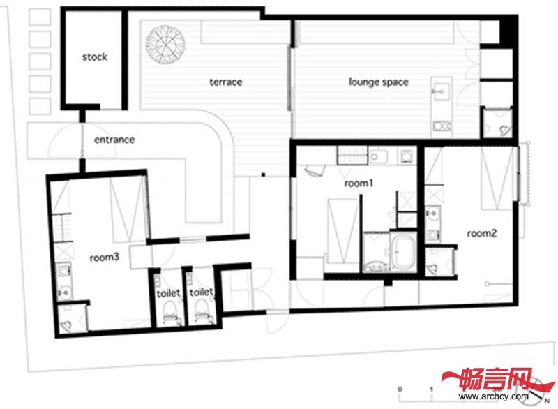
这个白色的宿舍原来是一个弃置的房子,经由日本设计师Koichi Futatsumata之手,它变身成为了一个拥有着弧形木质平板的建筑。

它位于日本的手岛,是Il Vento餐厅的员工宿舍。

建筑围绕着一个有甲板的院子而建,从玻璃门进去是一个公用客厅和厨房。屋里的地板也是浅白色的。

玻璃窗让充足的自然光线洒进室内,木粱让这里更有乡土气息。

在建筑的一侧有三个卧室,每个都有独立厨房。


 

责任编辑: Bright
评论
昵称: 
RCC关系网

都市实践

CCDI

五合国际

筑博设计

易兰

维思平

 
关于我们 | 联系方式 | 免责声明 | 广告服务 | 给我留言 | 在线投稿
建筑畅言网版权所有
京ICP备11034636号 京ICP证090740号 京公网安备110102003037号
E-mail: editor@archcy.com 电话:86 10 56064666 传真:86 10 63107850
畅言网微信