|
.jpg)
住宅的建筑地块位于广岛的一个平缓的高地上,它俯瞰着远处的濑户内海和宫岛。
这块土地被开发成几个平台样式的形状,并分成了几层。
.jpg)
客户要求这个住宅要能仰视到附近住宅的屋顶,并要比它低一层。而且,因为住宅处在住宅区的边缘,要保证它的安全。同时还有流出一些空间,因为客户以后像在这里开一个小商店。
.jpg)
为了满足这些要求,设计师将房子“支撑”起来。
.jpg)
住宅看起来像一个鸟巢一样,它身处高出,所以能够免受打扰。
住宅的视野很好,但是它的形状又从周围环境中封闭起来,所以,保证了良好的保护性。
.jpg)
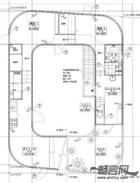
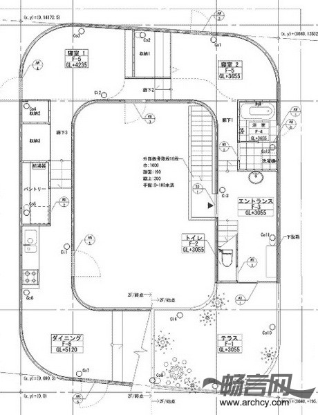
墙板和屋顶都是连接在一起的。
人们可以通过螺旋楼梯上下楼及到不同的空间里去,楼梯也将这些空间连接了起来。
.jpg)
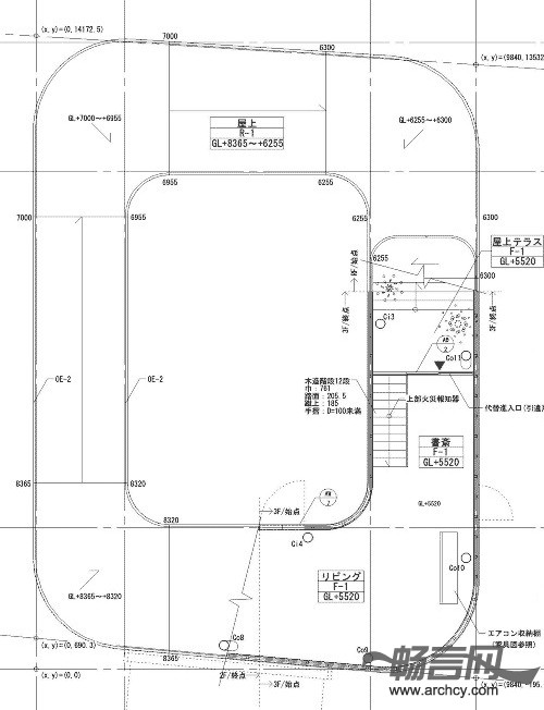
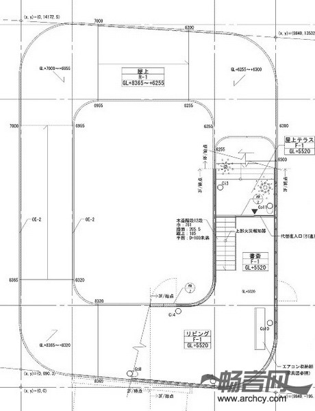
伸长的外墙板让这里未来可以延伸,也让这里看起来能够柔和一点。
根据墙板厚度的不同,三角拱腹墙壁的高度也相应做出了改变。
.jpg)
这些墙壁围成了一个中央庭院。
.jpg)
.jpg)
.jpg)
.jpg)
.jpg)
|