|
.jpg)
阿尔卑斯山上的登山爱好者现在可以在一个悬臂在山崖上的车厢形小屋里过夜了。
.jpg)
这个小屋的名字叫“Gervasutti新避难屋”,由意大利LEAP工厂及建筑事务所设计,该事务所专长于建造极端气候下的模型空间建筑。
.jpg)
小屋是预先在工厂里制造,然后用直升机空运到场地上的。因为是预先都已经制作好了,所以,到场地之后,只用几个小时就能将它安装好了。
.jpg)
小屋的一端的外墙涂上了红色,这就能让登山者从远处就能看到这里了。
.jpg)
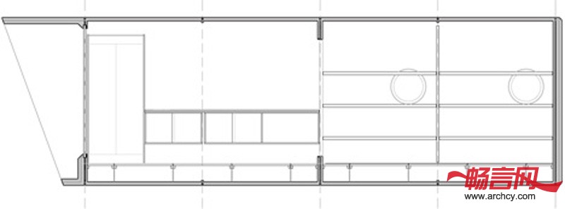
小屋的后端是上下铺床和储物柜,起居室、厨房及餐桌位于悬臂部分。
.jpg)
小屋还有一扇大窗户,从这里就能将外面阿尔比斯山的壮丽景色纳入眼底,从计算机里你还可以随时掌握天气变化情况。屋顶的光伏电池板可以为小屋供电。
.jpg)
室内用木质材料进行装修,这让人们回想起旧时候人们建造的山区小木屋,LEAP用这种方式提供给使用者一种愉悦和轻松的体验。
.jpg)
.jpg)
.jpg)
.jpg)
.jpg)
|