无锡美新微纳传感厂区办公研发大楼
来源:匿名网友投稿 2013-07-18
建筑师:钱强、迟晓昱、李小健
项目地点:江苏,无锡
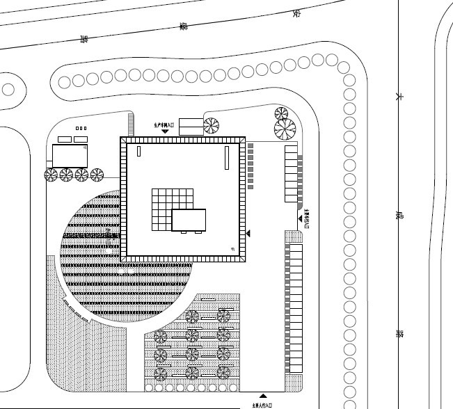
用地面积:18914平方米
总建筑面积:14057.36平方米
分层功能描述:1/2层生产车间及办公,3层生产车间,4-6层办公
建筑高度:27.7米
建筑层数:地上6层,地下1层
建筑层高:4.5米
停车数量:地上28辆
容积率:0.73
建筑密度:13.4 %
绿化率:53.5%
主体结构形式:框架结构
主要外装修材料:铝板幕墙、玻璃幕墙、清水混凝土

这是一栋集办公、研发和生产功能为一体的复合型办公楼。设计采用“方”与“圆”的形体与景观构图,影射古代阴阳学说对于空间的哲学理解。
立面强调水平线条,每层环绕建筑的清水混凝土水平出檐出挑2.7m,表达东方传统建筑空间的意象,同时避免阳光直射室内,使办公研发空间有柔和的间接采光。高透玻璃幕墙尽可能模糊建筑的垂直边界,从室内感受出檐的水平延展。
建筑立面的铝板幕墙,采用热转印技术,使深灰色铝板具有肌理和质感,回归建筑的质朴本质。北立面与西立面外挂穿孔铝板,孔洞大小与疏密有序变化,对入射的太阳光进行微妙的调节。








总平面图




发表评论
最新评论
投稿