赣州之星 | 上海联创
来源:网友Simeon投稿 2022-12-01
项目概况
基地面积: 63727.6 ㎡
总建筑面积: 488373 ㎡
地上计容建筑面积:346073 ㎡
地下计容建筑面积:10800 ㎡
容积率:5.6
建筑密度:44%
背景/同一地块,第二次中标
早在2020年春,团队就接到名为“钨都之星”,一座350米的超高层设计投标,所在地为江西赣州城市核心区域。不同于之前各种超高层面对一片空旷的场地,这块地周边已经比较完善。

▲ 项目区域位置
场地内部农田、鱼塘组成的田园风光,让人遥想起古人如何在赣江沿岸兴建阁楼登高望远,于是《滕王阁序》中“飞阁流丹”四个字跃然而出。它洗练、生动地描绘了中国传统多层建筑最重要的特征:飞起的挑檐与丹红塔身相辉映。将传统飞檐与现代玻璃幕墙组合在一起的创新构想,让方案在客户内部比选中标,选为实施方案。最终,客户因拿地失败,遗憾而归。

▲前序方案-飞阁流丹
时隔一年,团队再次被邀请参与这块地的第二次投标。城市地标性超高层建筑承载着表达城市历史、文化性格,地域特征的愿景。

▲千年宋城 红色故都
赣州,有我国当今保存最完好的北宋城,有“江南宋城”之誉。赣州还是全国著名的革命老区,举世闻名的二万五千里长征,就是从赣州开始。

▲世界钨都 稀土王国
赣州素有“世界钨都”之称,已探明钨储量世界第一,稀土探明储量全国第二。世界60% 产量的钨矿来自于赣州。赣南、赣西北、赣东北钨矿形成“三足鼎立”的新格局,确立了赣州市“世界钨都”的重要地位。

▲ 建筑城市空间效果
在团队的思考中,可代表城市的重要矿产,钨晶,从粗粝的矿石中开凿而出,也寓意着这座城市从历史进程中,久经磨难,却坚韧不拔、质朴刚健的特质。于是,团队选择钨晶成为第二次投标设计的主题要素,并且,第二次赢下这个地块的竞标。

▲建筑鸟瞰
概念/富于表现力的形态提炼
整个造型设计的开始来自于对钨晶的形体研究。设计师回溯到公元前七万年至今的宝石切工(lapidary)技术发展,遥想人类第一次看到石头在火中因灼烧而爆裂,其内部晶体的闪耀切面呈现,倒影着火光熠熠生辉。伴随着宝石的诞生而发展的就是钻孔与研磨的技术。受到大自然的河流冲刷的启发,使得人们相信宝石可以获得更平滑的表面。

▲ 赣州盛产的钨晶
设计希望把宝石切割工艺转译到建筑学的范畴之内,而对于塔楼的钨晶形体的削切,并非单纯地追求切面的丰富度,而是如何更精准地还原钨晶从矿石中破砾而出的状态,更简单的切面更适合表达晶体的形象。

▲ 钨晶的概念/古代切割手稿/Table Cut Gem
因此,设计把形体的研究定为晶体切割的早期阶段,例如TABLE CUT和POINT CUT。冠顶的硬边棱角勾勒出晶体的几何轮廓,利落的切割面与城市光影交互。夜晚,光芒从晶莹剔透的玻璃幕墙中渗透出来,犹如整个城市的灯塔。

▲概念推进

▲ 建筑造型效果
云顶钨晶礼堂面向天空打开,如一颗晶莹剔透的晶石漂浮于星云之中。拉索桁架与玻璃幕墙打造纯净通透的视觉效果,将山川江流、城市远景尽收眼帘。钨晶礼堂将作为全城的最高网红打卡点,承接各方来宾的庆祝活动,见证无数幸福欢乐的时刻。

▲“赣州之星”璀璨夺目的晶石

▲ 塔楼顶部动画

▲云顶礼堂俯瞰城市风光
技术/高性能与形态的完美结合
团队一直坚持超高层是优雅建筑形态、高性能工程技术与合理功能布局完美融合的理念。从核心筒和结构开始着手,是设计师一直坚守的原则。这来自早年团队主创从SOM继承而来的理念:超高层为实用高效而生,塔楼设计应该简洁,结构必须清晰明了。

▲ 塔楼竖向设计与各平面图
首先,团队排除了塔楼直上直下的做法,因为这种形体逻辑必然需要在高区酒店部分将核心筒内部做空,不然会造成浪费。而一旦核心筒内部做空,那么必然需要引入酒店中庭。虽说中庭可以为酒店增色不少,但常年运营下的空调费用和气体排放,都不符合节能减排的要求。因此,设计采取核心筒高区与形体收分高效地结合起来的“双收分”策略,从而将低区办公与高区酒店控制在合理进深内。

▲电梯竖向设计(左)与首层平面核心筒(右)
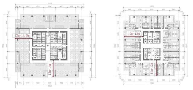
因循着“建筑外形与建筑结构相互呼应”的内在逻辑,塔楼形体自下而上顺应核心筒进行顺滑的收分,塑造简洁优雅形态的同时,也符合空气动力学,有效抵抗侧向荷载。塔楼收分的造型体现了不同高度下,不同功能对使用尺寸的要求。低区办公标准层进深控制在13m到14.5m之间,适应市场办公需求,并尽可能为内部空间的分割配置提供灵活性。酒店位于高区,配置了空中大堂、餐厅、酒吧等,可俯瞰城市风光。

▲ 办公标准层平面(左)与酒店标准层平面(右)
幕墙设计源于对塔楼进行的热辐射分析,通过引入金属板来隔绝阳光使塔楼内部获得良好的热辐射值,保证室内舒适。同时,通过对幕墙上的铝板引入参数化控制,平衡造价的同时,编织的肌理映射天光,产生光芒四射的效果。幕墙板的细节处理则模拟钨晶的切面肌理,如同不远处的章江,在阳光下熠熠生辉。

▲ 幕墙表皮模拟钨晶的发光肌理
设计还对玻璃幕墙的热工性能进行优化。优化前玻璃幕墙受热辐射概况:采用通常做法,玻璃幕墙表面受到较为均匀的热辐射,建筑表皮无遮阳措施,因此夏季暴晒容易导致室内温度过高,节能性能一般。

▲幕墙热辐射分析(左)标准层幕墙设计(右)
优化方法:通过增加一层参数化表皮,对建筑采取遮阳措施,减少高温下的室内温度,提高建筑节能性能,更加符合绿色建筑和环保的要求。同时,参数化表皮可以通过设计来调节遮阳的效率,从而控制室内受到的热辐射量,从而实现对不同楼层的不同使用功能对应的热辐射量的调节。

▲优化玻璃面板减少热辐射
优化后玻璃幕墙整体受热辐射概况:经测算,优化后的建筑表皮能减少表面热辐射量,减少能耗33.98%,达到节能环保的目标。

▲建筑沿街透视角度
裙房/与城市生活共写传说
“钨晶”的概念贯穿了建筑设计的每个部分。如果说塔楼是开凿而出的璀璨晶体,以宏大叙事演绎赣州城市的锐意进取,那么底部的商业则有着钨矿般粗粝、质朴的质地。
建筑以矿石的形态嵌入场地,圆润的曲线与有力的直线相互碰撞,古铜色的金属板与晶莹剔透的幕墙互为映衬,“钨晶之树”以张扬的姿态抢占焦点。

▲商业裙楼形象来源于钨矿形态
而景观也不只是填补建筑的空白处,在总体与局部的关系之间,保持一种互相补位的姿态。它让人想起皮拉内西对罗马的想象性描绘,一个由不计其数的异质性片段组成的虚构之城。

▲城市广场与商业相接
对于拥有600余幢客家围屋、有“千年宋都”之称的赣州来说,一切都似乎以一种自发生长的方式,完成了整体的组织。事实上设计伊始,团队为这块地规划了清晰的进出场地的关系,以人气构筑商业主动线;在街角处和城市流动汇合处,形成生动活泼的街景,折射这座城市的开放与包容。

▲“钨晶之树”打造网红打卡点吸引人气
商业策划上,则以赣州城市历史文化作为基点,打造符合城市性格的商业爆点。其中“客家院”彰显地域文化窗口:以本土文化为主,打造市井广场,提供私家菜馆,本土设计师品牌,文创集市等业态;以半围合的姿态连接钨晶之树和城市广场。

▲客家院 空间效果
宋之街作为古今碰撞的城市文艺街区,提供潮流碰撞,生活碰撞,身体碰撞三大商业广场空间。

▲宋之街 空间效果
近人尺度的底部大堂设计也加强晶体切割的概念。通过形体的削切,形成建筑的各个入口。全玻璃肋幕墙以开敞通透的空间姿态欢迎访客。
设计师设想大堂内部不是冰冷的办公商务表情,而是内凹弧形旋转的金属板模拟钨晶表皮,让人如同置身于钨晶矿场之中,而电梯厅以洞口的方式呈现,吸引人群进入晶体深处。

▲ 首层大堂
结语/抽象提炼,精准表达
如果说前序方案是以克制的形式,以小见大地回望历史,展望当下,做一个里程碑节点,那么第二次投标的钨晶方案则是总结历史,直面未来。以城市特征作为基点,打造符合地域文化,并面向未来五十年的城市地标建筑,充分展现城市的雄心壮志,同时,兼顾造价的可行性。
本案中,建筑形态以表现可代表赣州的钨晶为主题,但建筑物的特性也体现在内部秩序、比例和建造、结构逻辑之中。如今,超高层地标塔楼真正以抽象形式,精准提取、表达城市性格的案例并不多。希望本设计作为一次充满探索意义的实践,能做出一些小贡献。
注:本文为概念设计阶段成果汇总,方案在进一步深化、修改中。
项目名称:赣州G15地块超高层设计
项目地点:江西 赣州市 章江新区
业主单位:保利发展&星洲润达
设计单位:上海联创设计集团股份有限公司
方案团队:联创集团 创新设计中心 西木工作室
建筑深化:联创集团 创新设计中心 西木工作室
结构团队:上海联创 复杂结构工作室
机电团队:上海联创 机电二部
发表评论
最新评论
投稿