杭州国大城市广场
来源:网友十年投稿 2019-09-09
.jpg)
远景为西湖的俯瞰 © Hans-Georg Esch
一座扩建后的建筑刻画了杭州这座900万人口大都市的天际线。杭州国大城市广场主塔楼高130米,是重建和扩建工程的重要组成部分。国大城市广场是城市传统商业中心,其内设有购物中心和酒店及办公。gmp· 冯·格康,玛格及合伙人建筑师事务所中标后获得委托,承担了项目的设计工作。
A newly extended high-rise building makes its impact on the skyline of Hangzhou, the Chinese metropolis with 9 millionin habitants. The 130-meter-high tower is part of the extension and redesign of the GDA Plaza, a business center in the traditional business quarter of the city, which includes a shopping mall and hotel. Architects von Gerkan, Marg and Partners (gmp), who had previously won the competition, were in charge of the design and implementation.
.jpg)
装有LED大屏幕的幕墙 © Hans-Georg Esch
.jpg)
城市环境肌理 © Hans-Georg Esch
西湖是杭州市中心独具吸引力的区域,“西湖文化景观”在2011年被正式列入世界文化遗产名录。国大城市广场正位于杭州市中心武林广场对面,地处武林商圈核心区,国大城市广场酒店和商业中心经历改建和扩建后正式重张开业。改扩建工程将原有的酒店购物中心综合体整合转变为一座全新的建筑。gmp·冯·格康,玛格及合伙人建筑师事务所在2007年中标并获得设计委托。地块上原有建筑得到了保留并进行了功能重组,位于街区转角处高28层的塔楼作为重要扩建部分,建筑面积达57500平方米,可以提供更多的办公与商业空间,以及电影院、餐饮设施等休闲娱乐空间。
West Lake is considered a focal point and special attraction of the old, traditional city of Hangzhou. Its exemplary cultivated landscape is an outstanding feature of this 9-million-person metropolis to the south-west of Shanghai and, in 2011, was designated a UNESCO World Cultural Heritage site. At Wulin Square, in the midst of the flourishing business center not far from the lake, the GDA Plaza Hotel and Business Center was reopened. As part of a redesign and extension, the existing complex with hotel and shopping mall was recreated and made into a completely new unit. The architects von Gerkan, Marg and Partners (gmp), who had previously won the competition in 2007, were in charge of the design and implementation. At one corner, the GDA Plaza was substantially extended by a new 28-story building with a gross floor area of 57,500 square meters, whilst the existing main building was retained as far as possible but completely reorganized. This has created additional offices and commercial premises, as well as new leisure facilities such as cinemas and restaurants.
.jpg)
北侧立面 © Hans-Georg Esch
办公和酒店塔楼面向城市,布局与延安路和体育场路之间三角地块格局相匹配。塔楼高130米,刻画了城市的天际线。塔楼转角处以弧线形式连接了两座相邻的大楼:圆角三角形的雷迪森酒店和椭圆形办公楼的建筑高度相当。
The office and hotel tower faces the city and fits exactly into the corner site between Yan’an Road and Tiyuchang Road. With a height of 130 meters, the high-rise building makes an impact on the city’s skyline. With its elliptical curved form, the tower supplements the two immediately adjacent high-rise buildings: the triangular Radisson Hotel with its rounded corners, and a semicircular office building, both of approximately the same height.
.jpg)
建筑夜景 © Hans-Georg Esch
为了保证建筑群整体效果,新建建筑通过一个十层高的裙房与现有建筑连为一体。建筑体块表面的退进强调了旧建筑与新建筑之间的过渡区域。高十层的裙房建筑面积近18000平方米,补充了酒店、购物中心等商业区域。建筑空间可以实现灵活应用:特别是塔楼可以实现酒店和办公空间的功能转换。新建建筑可以通过雷迪森酒店底层直接到达。建筑内部交通系统依照高层建筑椭圆形平面分布。在新建购物中心背后,一条人行通道作为综合体内部捷径连接了酒店和两条主街,国大城市广场地下层直通地铁。
In order to achieve a uniform architectural effect for the entire building complex, the new building has been linked withthe existing ones via a ten-story plinth. Recesses between the old and new parts of the buildings make these transitions visible. The ten-story plinth, with a gross floor area of 17,997 square meters, supplements the hotel, retail,and commercial area. All areas are flexible in use; in the new tower in particular, areas can be reconfigured from an office to hotel function at anytime. From the Radisson Hotel, the new building can be reached via direct link passages on the plinth floors. The internal circulation systems follow the geometry of the elliptical high-rise building. Behind the new shopping mall, a pedestrian route has created an additional passage through the building complex from the two main roads to the hotel. Below ground, the GDA Plaza is connected to the Metro.
.jpg)
形式语言统一的幕墙 © Hans-Georg Esch
建筑幕墙语言是建筑整体效果的重要组成元素,流线型幕墙包裹了整个建筑综合体,新旧区域和谐融为一体。幕墙立面肌理以两层为一个单位进行划分,竖向的箱型窗带排列强调出水平方向的秩序结构。
The design of the facade enhances the uniform architectural effect of the entire building complex. With its curved and dynamic shape, the facade envelops the building and creates flowing transitions between the newly clad old part and the new building, as well as a harmonious link to the old Radisson Hotel tower. Two-story box-type windows with a vertical emphasis and horizontal lines provide a structure to the facade.
.jpg)
新旧建筑之间的流畅过度 © Hans-Georg Esch
.jpg)
竖向的箱型窗带排列强调水平方向的秩序结构 © Hans-Georg Esch
所有的建设工程都在购物中心和酒店正常运营的同时进行。工程被分成数个施工周期,以满足建筑的各个不同区域不同改建措施,因而整个建设周期历时八年。
All construction work was carried out while operation of the shopping mall and hotel continued. The construction was carried out in phases; the work on various parts of the building and the refurbishment was carried out in successive steps. This meant that the overall process took eight years.
设计竞赛:2007年一等奖
设计:曼哈德·冯·格康和尼古劳斯·格茨以及玛德琳·唯斯
竞赛阶段项目负责人:约恩·奥特曼
竞赛阶段设计团队:扬·布拉斯科,蔡磊,陈缨,孙亚瑾,朱弘昊
实施阶段项目负责人:陈缨,范小棣,黄梦
实施阶段设计团队:玛海可·阿姆斯,蒋毅,孔锐,克劳蒂斯·朗格,毛昱奇,亚历山大·朔博,马汀·赛博,孙亚瑾,田景海,王青,赵冲瀚
中国项目管理:蔡磊
中方合作设计单位:浙江大学建筑设计研究院有限公司
照明设计:Hangzhou Sunlux Lighting
业主:浙江国大集团有限责任公司
设计周期:2007-2013
建设周期:2011-2019
室内建设周期:2017-2019
建筑面积:149200 平方米
Competition 2007– 1st Prize
Design Meinhard von Gerkan and Nikolaus Goetze with Magdalene Weiss
Project leader competition Jörn Ortmann
Competition design team Jan Blasko, Cai Lei, Cheng Ying, Sun Ya-jin, Zhu Honghao
Project leader detail design Chen Ying, Fan Xiaodi, Huang Meng
Detail design team Mareike Asmus, Jiang Yi, Kong Rui, Claudius Lange, Mao Yuqi, Alexander Schober, Martin Seibel, Sun Ya-jin, Tian Jinghai, Wang Qing, Zhao Chonghan
Project management Cai Lei
Partner practise Zhejiang University Architecure Design & Research Institute(ZUADR)
Lighting design Hangzhou Sunlux Lighting
Client GDA Group
Planning period 2007–2013
Construction period 2011–2019
Interior construction 2017–2019
GFA 149,200m²
.jpg)
总平面图 © gmp Architekten
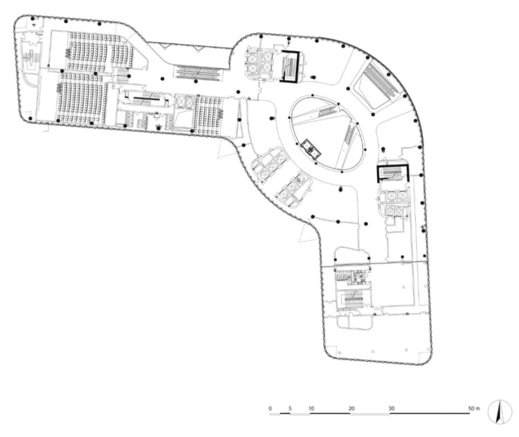
.jpg)
首层平面图 © gmp Architekten
.jpg)
九层平面图 © gmp Architekten
.jpg)
塔楼标准层平面图 © gmp Architekten
.jpg)
建筑整体剖面图 © gmp Architekten
.jpg)
塔楼剖面图 © gmp Architekten
发表评论
最新评论
投稿



.jpg)