中建滨湖设计总部 | 西南院
来源:网友Andy2073投稿 2022-11-07
生态是这一新场景中至关重要的维度,指引了建筑、环境、人三者之间的良性互动。办公建筑通常与高密度城市化区域关联,人员密集、能耗集中;同时相较于功能形态固定的类型,办公建筑的空间随着时间不停改造更新,因而成为生态意义上的高耗费品。
以探索夏热冬冷地区的近零能耗办公建筑设计为目标,中建滨湖设计总部构想了一种灵活且人性化的办公空间,在合理的规模控制下,综合平衡被动式设计、主动式策略和可再生资源利用,以低能耗换取室内舒适度,采用适宜性技术回应自然,营建低碳环保的内外环境。
通过测算,项目投用后夏季能耗将低至42kwh/㎡左右,冬季能耗将低至4~8kWh/㎡左右,仅为常规办公建筑能耗的1/4,中建滨湖设计总部率先提出并实践了夏热冬冷气候区的全新生态设计策略。
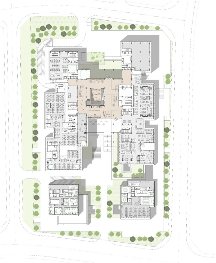
中建西南院发展至今已拥有12个设计院与二十多个专业化中心和工作室,以及众多下属公司与分支机构。大型设计企业总部的定位,决定了规模扩张的同时,会伴随着部门的不断调整重组,中建西南院需要一种适应未来变化需求的可持续的空间模式。
模块化设计应需而生。通过调研设计院各部门的人员规模和工作特点,寻找到适合大小部门需求的空间“公约数”——每个单元模块为33.6m×33.6m(约1000㎡),轴网均采用8400×8400mm,再将多个33.6m见方的单元模块进行组合,根据不同需求进行区域划分。建筑内部的核心筒集中设置在模块一侧,形成了“服务空间”和“被服务空间”的分化,“被服务空间”开阔连续,方便未来弹性调整。同时,空间的模块也为机电系统的模块化、标准化提供了前提与基础。
在夏热冬冷地区,相较于为了获取恒定的室内环境而封闭边界的“逆自然”的方式,中建滨湖设计总部选择了主动开放的建筑思路,以融入外部环境。
兴隆湖所在区域原是鹿溪河流域的一处滞洪洼地,基地处于泊岸边,原始地形北高南低。设计留存了这一原始地形的记忆,以双首层入口和南向退台的方式,构建了贴地生长、向湖面沿展的形态,回应场地的阳光、雨水,以及来自湖面的风。
单元模块的拼接,形成凹凸进退的外界面,增加了建筑与自然的接触面长度、促进了环境交互。方案阶段利用BIM模型进行模拟分析,根据朝向进一步细分立面采光、隔热、透绿的性能。
在水平界面上,面湖退台形成约8000㎡的屋顶台地花园,包括景观绿化、天空农场和运动场地。屋面植被层叠,宛如湖边的绿色山丘。在垂直界面上,设计团队与玻璃厂家合作研发的双中空隔热三银玻璃幕墙,作为内外气候的第一道边界,能最大化获取光照并阻隔太阳长波辐射热。幕墙外侧设计垂直绿化系统,南向设置模块化绿墙单元,东、西两向设置通长种植槽与攀爬拉索,形成了随季节生长变化的第二道动态植物界面。
建筑模块的堆叠错落,形成中庭、边庭、下沉庭院、屋顶花园、架空外廊等类型丰富的室内外中介空间;加上感应式电动天窗、智能光导管、手动平开窗单元、绿植遮阳等自主调节措施,形成光、热、风环境有效交互的微环境系统。沿湖岸主导风向,建筑采取“H”形总图构型,通过贯穿建筑南北的平面风道与立面风洞,优化室外风场环境。建筑室内则通过中庭拔风,热空气经由三处天窗排出,实现过渡季节自然通风,减少空调开启时间。
较之其他行业,设计企业的员工往往更长时间停留于办公室空间。一个开放流动的动线系统在带来积极体验的同时,也强化了绿色办公的理念,促进使用者的社会交往,建立与自然的对话,激发企业员工的凝聚力和创造力。
动线设计的目标在于鼓励步行,减少电梯使用。以景观楼梯为核心的竖向步行系统,覆盖了设计总部办公面积的87%。将办公空间整合成为更符合人性尺度、提供更多交往机会的场所。入口大厅设置了宽度大于9米的台阶,既满足交通需求,也是讲座、路演、聚会的场地;大厅与其它楼层的连接通过两翼的景观楼梯和跨越中庭的连廊,形成连续向上的行走路径,塑造视线与动线彼此交互的“戏剧化”场景。
屋面的室外步行体系由各个平台间的螺旋钢梯与花园小径连接而成,提供了另一种动线选择。屋顶布置了瓜果蔬菜的种植场地,1000平方米的太阳能板,以及空中篮球场、羽毛球场,迷你跑道,甚至设计了一条从地面到屋面的立体微型马拉松环线,作为室外运动的趣味项目。人穿行于平台风景之中,模糊了工作与生活的界限,传递出创意设计企业的特有氛围。
中建滨湖设计总部不仅作为一种诗意的建筑表达,更是一个技术研究与实验的代表性案例。作为中美近零能耗合作项目,从立项之初到正式投用,经历设计、建造、测试多个阶段。在建筑师牵头的多专业团队的协作下,优化集成了数十项新技术、新材料、新设备,包括装配式铰接框架节点、预制钢筋桁架密拼叠合板、屈曲约束支撑、屋面太阳能单极光储直柔系统、自然通风与预冷通风、三银双中空玻璃、垂直绿化智能滴灌系统、空调高显热机组温湿分控技术等一系列创新应用。项目的意义已经远远超越对于一个企业总部建筑的期许,而是一项具有前瞻意义的技术实验、一个面向未来的新观念的传播媒介,引发行业与社会的广泛关注,成为引领绿色发展的建筑新地标。
项目概况
项目名称 | 中建滨湖设计总部项目
项目类型 | 办公建筑
项目地点 | 四川成都
总用地面积 | 26192㎡
总建筑面积 | 78335㎡
竣工时间 | 2020年
方案设计/施工图设计 | 中国建筑西南设计研究院有限公司
建设单位 | 成都华府锦城中建房地产开发有限公司
主创建筑师 | 刘艺
各专业设计团队 | 冯雅、毕琼、方长建、伍未、唐浩文、路越、朱彬、刘光胜、陆萌、文隽逸、董彪、陈宏宇、张国强、邓世斌、季如艳、周利、伍仕、张菡、董智超、侯伟、吴靖、徐张
摄影师 | 存在建筑建筑摄影
.jpg)
.jpg)
.jpg)
.jpg)
.jpg)
.jpg)
.jpg)
.jpg)
.jpg)
.jpg)
.jpg)
.jpg)
.jpg)
.jpg)
.jpg)

发表评论
最新评论
相关阅读
投稿
