三联韬奋书店三里屯店 | BIAD
其他来源:BIAD投稿 2022-02-23
.jpg)
项目背景
24 小时不打烊的三联韬奋书店三里屯店,于2018 年4 月23 日第23 个世界读书日举行了开幕仪式,时尚喧嚣的北京三里屯又多了一抹书香。
书店位于三里屯西街,这里曾是北京著名的“脏街”,环境卫生十分恶劣。随着北京综合整治促提升工作的深入开展,该街区环境得到了良好的改善,三联韬奋书店作为“脏街”提升整治计划的一部分,受到北京市政府和朝阳区的高度重视。书店不仅增加了北京的惠民文化空间,更以空间为依托开展中外书友文化体验活动,助力北京文化中心、国际交往中心的建设。
.jpg)
△项目位置
2
场所的记忆
“场所精神的形成是利用建筑物给场所的特质,并使这些特质和人产生亲密的关系。”
——《场所精神》[ 挪威] 诺伯舒兹
三里屯西街所在的这一片住宅区建于20 世纪70 年代,当年街道两边有着各式各样的小吃档口、美食小店、酒吧,因为临近使馆区,聚集了很多来自世界各地的年轻人,夜晚时分格外热闹。由于环境脏乱,被称为“脏街”。
.jpg)
△三里屯南区现代商业组团与其北侧的“脏街”,展现了不同的城市生态(摄影:张昊)
2017 年经整治后的“脏街”,街道功能定位更加清晰,流线更为顺畅,更加符合北京文化中心、国际交往中心的定位,但其昔日自由、粗糙、躁动的气氛也随之而去,成为一种回忆。
聚焦到三联书店项目本身,书店的前身为70 年代建成的预制空心板楼。内部工业化的装修风格与“脏街”的整体风格相得益彰,体现了当时年轻人的喜好与生活状态。这幢老建筑,曾经历过不同时代多种功能的改造,本次改造前,其功能为俱乐部,结构形式为框架结构。
.jpg)
△本项目改造前室内状况(设计人拍摄)
在这条被净化的街道和这个被腾空的舞厅“骨架”中,如何让书店这一功能连接起原先的城市文脉与新的商业行为是本次设计最初的思考,如何让来三里屯逛街的年轻人不仅匆匆经过,而且愿意在这个书店停留、徜徉,保留原先“脏街”的人气,是我们的设计目标。
3
“店格”与“书格”
“我,作为一个老知识分子,经过了多年的观察与思考,把我心目中三联书店的“店格”归纳为八个字:清新、庄重、认真、求实。”
——《我心中的三联“店格”》季羡林
三联书店恪守“人文精神,思想智慧”理念,坚持“一流、新锐”的标准,以出版人文科学和社会图书为主,出版物涉及哲学、历史、文学、艺术、经济、政治、法律和社会生活等领域,在知识界和广大读者中享有盛誉,被誉为“中国知识分子的精神家园”。“清新、庄重、认真、求实”是季羡林先生为其总结的“店格”。
在我们与三联“职业书人”充分沟通的过程中,更加了解到他们对书的尊重以及对“书格”的坚守,即书店的主角是书,书和读者的关系应该是亲近而朴素的,空间、家具的设计应该充分考虑书的展示及取放,比如书架隔板的间距要贴合书的尺寸,最下面一层书架应向上倾斜以方便读者取阅等。
△三联书店总店读者与书的状态(图片来自网络)
如何在三里屯这个年轻人扎堆的地方吸引客流,让年轻人愿意在浓厚的商业气氛中停留于此,是我们与三联书店在设计过程中反复沟通的问题。另外,对于今天实体书店普遍面临的营业困境,如何做出应对?怎样利用三里屯西街天然的人流量,吸引客流并有效地提高藏书量,提升营业额,也需要通过设计来给出答案。
4
设计概述
本次设计的室内外总体风格沿袭了三联韬奋书店特有的朴实无华的风格取向,同时与原有场所空间的独特气质有所契合。
4.1
空间原型
我们以西方传统图书馆的空间模式作为原型,在空间十分有限的条件下,设置二层马道系统,在增加藏书量的同时,也可以作为空间中独特的动线,引发不同的空间体验,形成特别的游览感受;同时方便售货员对书籍的有效管理。
.jpg)
△康奈尔大学图书馆的二层马道系统(图片来自网络)
4.2
“书山行旅”
在此空间原型的基础上,整体空间形态的设计灵感取意于北宋范宽的《溪山行旅图》,将人们在书店内的阅读体验转译为一次知识文化的蜿蜒之旅。
.jpg)
从行为学入手,巧妙利用原有回填土深度,下挖70cm,加大室内净高,形成两层错落的路径回转系统,使建筑内部产生更多的自由度,并将藏书量由3 万册增加至8 万册。层层叠叠的书籍成为书店风景的树木和背后的远山,蜿蜒的马道曲曲折折贯穿了所有藏书空间,读者穿梭其中,妙趣丛生、流连忘返。
.jpg)
△空间剖面示意
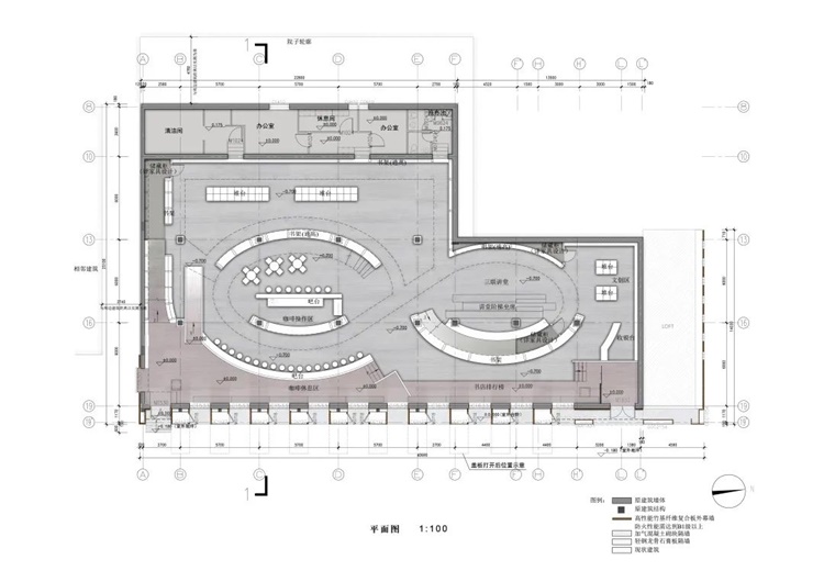
.jpg)
△一层平面图
.jpg)
△马道层平面图
无穷大符号“∞”塑形的书架系统消隐了原有空间中的10 根柱子,也使书店形成了富有层次的空间格局,阅读区、讲堂区、咖啡区等不同的场所空间“依山就势”、收放自如。
设计师与三联“职业书人”充分沟通,通过设计实现了对“书格”的坚守与表达。书架层板与书籍充分契合,最大化地利用了空间,有效地提升了藏书量;书架的高度与马道的设计杜绝了将书作为装饰束之高阁的现象,让每一本书都可以被读者轻松取阅,掇菁撷华尽在书山行旅之中。
.jpg)
△入口实景(摄影:杨超英)
.jpg)
△入口实景(摄影:杨超英)
.jpg)
△书店室内一角(摄影:杨超英)
4.3
“午夜灯火”
本项目前身为70 年代建设的一幢老建筑,曾经历过不同时代多种功能的改造。本次改造为书店,其外部的设计以“谁为城市的午夜留一盏灯火?”为理念,40 多米长的沿街立面由一系列韵律化的微展箱、灯笼和落地窗构成,隐隐约约的灯火从各类孔洞中透射出来,为来往于此的人们带来温暖。
.jpg)
△书店沿街立面实景(摄影:杨超英)
.jpg)
△立面橱窗细部(摄影:杨超英)
5
运营情况
三联韬奋书店三里屯店的总面积为661㎡,藏书量达到了2.8 万种,8 万册。疫情期间,书店节假日的营业额日均3至5 万元,平时1.2 至1.5 万元,在实体书店中是相当优异的业绩。
书店建成后也受到了读者的广泛青睐,人流如织,图书销售持续向好;因其独特的空间体验,成为各类文化活动的热门场所。
.jpg)
△各类文化活动现场
在纸媒及网络媒体上得到了广泛关注及积极传播,形成了很好的社会反响,成为三里屯商业氛围内的一处文化地标。
.jpg)
△在书店内阅读、徜徉的人们(设计人拍摄)
.jpg)
△建筑师为书店设计的导览卡:《二酉藏宝图》
项目信息
建设单位:北京三联韬奋书店有限公司
设计单位:北京市建筑设计研究院有限公司
建设地点:北京市朝阳区三里屯南街
主持建筑师:米俊仁
项目总监:龚耘
项目合约:李大鹏、常宇
建筑审定、审核:聂向东、董晨
现场总监:王小用
建筑设计:张昊、梁曼青、Ulises
家具设计:吕春萌
室内设计:林华、李少斌、张雷
结构顾问:刘立杰,高鹏飞
机电设计:翁思娟、马珊珊、孙超、李隽、吴翠翠、王娟、毕雅冲
摄影:杨超英
撰稿:张昊 北京建院建筑与环艺设计院
编辑:宋昕 审核:朱晓琳
发表评论
最新评论
投稿
.jpg)

