IDO元象建筑设计 | 重庆约克北郡幼儿园
其他来源:IDO元象建筑设计投稿 2019-11-19
IDO元象建筑设计凭借“重庆约克北郡幼儿园”项目入围了2019英国 Dezeen Awards市政建筑类。
项目位于两江新区约克郡北区,用地南隔城市道路与已建高层住宅区相邻,北侧、东侧为在建住宅区,西侧为城市公园,基地内部相对平坦,高差不大。项目为9班幼儿园,用地面积3330㎡,总建筑面积2701㎡。
.jpg)
.jpg)
项目的用地面积相对其班级规模而言较为局促,对幼儿园而言,拥有一个愉悦的空间场所是必要的,如何在有限的用地条件下创造一个安全、健康、充满关怀且富有童趣的教育空间是建筑师需要面对的基本问题。
.jpg)
.jpg)
概念与空间
这是一个垂直布置的“村落”,小朋友可以在不同标高上感受村落的情景,建筑空间与活动场地的叠加设计亦化解了用地局促的矛盾,促成了各个单元体之间的分离,形成了“邻里关系”,考虑到西侧城市公园的景观资源优势,主体建筑最终呈现为U型院落布局,班级作为独立体块叠合布置,体块之间留出缝隙,使其保持 “自由呼吸”之状态。
.jpg)
建筑师希望每个班级都能形成一个“家”的概念,每个生活教学用房就是一个独特抽象的小房子,希望小朋友在园中能建立归属感:各个班级不仅在形体上是相对独立的,同时在材质上也是各不相同,使每个班级单元更个性化,具有一定的可识别性。
.jpg)
空间设计趣味性:激发幼儿探索
多样化的教学课程是为了激发儿童的想象力与创造力,同时也对空间设计提出了更多的要求。空间设置了常规的儿童生活单元、音体室、医护区、合班教室等满足基本教学需求的空间。
.jpg)
.jpg)
.jpg)
.jpg)
.jpg)
建筑师还设置了更多的开放式教学空间:如在二层设置架空层活动平台、设置小舞台使其成为前后院的“视觉焦点”,结合中心庭院设计了大台阶看台空间、并设置了供小朋友玩耍的树屋、滑梯及斜面攀岩区等活动场所;充分利用一、二层的建筑屋面作为室外拓展活动场地。
班级与班级之间的缝隙同样也形成为了小朋友下课玩耍的趣味空间,大量多功能趣味空间的设置,为儿童自发游戏及情境教学提供了开放性场所之可能。
.jpg)
设计上试图提高音体室空间的使用效率,结合场地环境,打通了音体室南北两个界面,使其成为开放通透的多功能复合空间的可能:封闭时可作为独立的教学空间使用,开放时可结合南北两侧庭院成为多功能的教学场所。
基本教学单元
与园方多次交流沟通,最终基本教学单元的平面布置采用活动室与卧室一体化设计的模式,洗手间、衣帽间以及靠山墙一侧的床位收纳空间共同行了“服务空间体系”。除了服务空间体系里设置了固定家具及收纳空间,平面内未设置其他固定家具,希望获得更为自由的活动空间,教师可根据不同的活动情境,灵活布置家具。
.jpg)
核心单元靠近山墙一侧设置了900mm高的阅读台,丰富了室内竖向空间的层次,架空部分也成为了床位的收纳空间。结合建筑外立面不同尺寸的凸窗,根据幼儿的身体尺度,在室内设置了高低不同的观察窗口,激发小朋友以不同的视角去观察室外庭院空间。
.jpg)
.jpg)
材料表达
每个班级都是一个“家”,每个家都拥有自己的个性,小朋友们从小对自己的教室形成“家”的归属感——“我是住在木头房子里的,你是住在砖房子里的”,每个体量均拥有独特的材质。
.jpg)
在立面系统上建筑师尝试使用了不同的材质:陶板、红砖、青砖、仿木材料、水泥纤维板、聚碳酸酯板。通过使用聚碳酸酯板,探讨半透明材料在幼儿园教育空间中的氛围营造可能性,使其在阳光下体现出多彩的韵律。
.jpg)
在屋面系统上建筑师则运用了铝镁锰板金属屋面系统,较为单纯的屋面统一了多彩的立面系统,制造出了“雪景”的幻像。
.jpg)
.jpg)
技术图纸
.jpg)
△总平面图
.jpg)
△透视A
.jpg)
△透视B
.jpg)
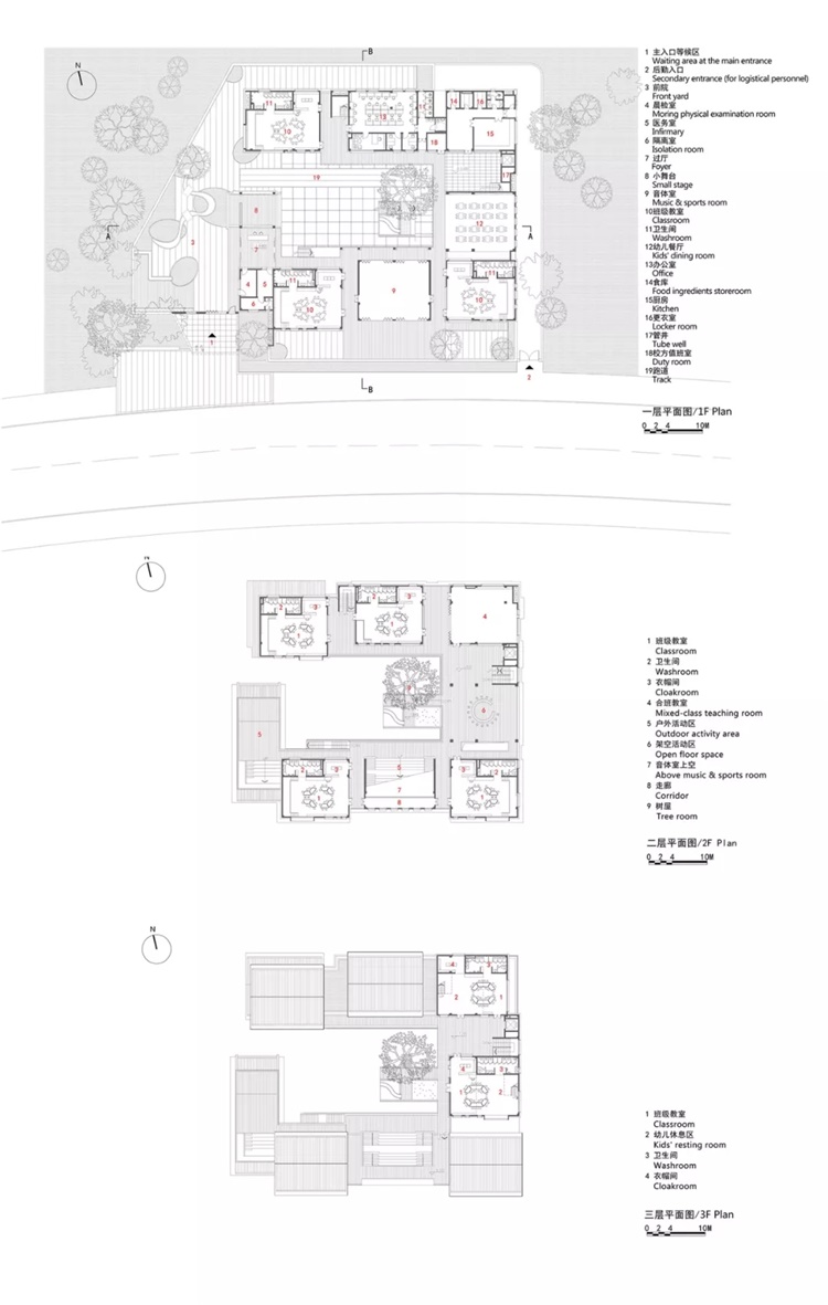
△各层组合平面图
.jpg)
△主入口等候区墙身大样图
.jpg)
△墙身大样
项目名称:重庆约克北郡幼儿园
项目地址:重庆市两江新区怡和路约克北郡
设计单位:IDO元象建筑
建筑设计:陈俊、苏云锋、宗德新、李剑、柴克非
建筑施工图单位:重庆市设计院
建筑:邓洪波、马晓婧、胡珑铧 总图:赖韬
结构:朱海超、徐向茜 给排水:蓝鹏 电气:胡轶,暖通:吴志勇
幕墙施工图单位:中机中联工程有限公司
幕墙设计:熊联波、严政、赵宇、陈青术
业主单位:香港置地
业主管理团队:郑海川、汤照晖、刘颖
建成状态:建筑竣工,景观、室内待施工
设计时间:2016.05-2017.9
建造时间:2017.04-2018.10
建筑面积:2701㎡
用地面积:3330㎡
景观设计单位:道远景观
景观设计:周雪梅、陈文龙、莫贻海
室内设计单位:一夕幼儿园设计研究室
室内设计:焦樵、陈诺、金庆锦、谢国飞
摄影:DID STUDIO
发表评论
最新评论
投稿


.jpg)