成寿寺集体土地租赁住房 | 中国建筑设计研究院有限公司
其他来源:中国建筑设计研究院投稿 2021-02-20
项目名称:成寿寺集体土地租赁住房
委托单位:北京金城源投资管理公司,北京万科
项目地点:北京市丰台区
.jpg)
1 背景:“房住不炒,租购并举”
为贯彻落实十九大报告提出的“房住不炒、租购并举”的方针,2017年11月,北京市规划和国土资源委员会,北京市住房和城乡建设委员会联合印发《关于进一步加强利用集体土地建设租赁住房工作的有关意见》,计划在2017~2021年间供应1 000 h㎡集体土地用于建设集体租赁住房。截至2019年9月,北京市共确定68个集体土地租赁住房试点项目。成寿寺社区既是北京市,也是全国首个开工并实现运营的此类项目。
基于此,这个“没有先例”的项目既非传统意义的住宅,也不是公建,故没有现行的针对性规范与之相匹配,这为项目的设计和落地带来了很大挑战。
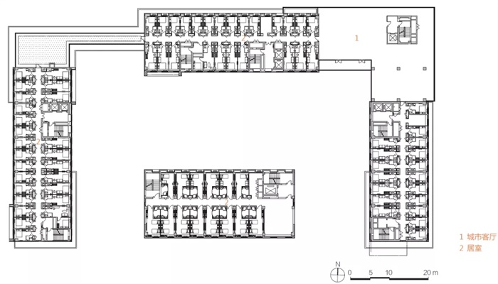
项目坐落在丰台区成寿寺区域,位于南三环路方庄桥西南角,是沿三环自东向西进入丰台区的门户节点。总用地面积约1.125 h㎡,总建筑面积约4.75万 ㎡,其中地上建筑面积约2.88 万㎡,容积率2.8。项目地上24层,其中一、二层为商业配套,其余为901套住房及一系列公共服务设施;地下3层,含一层商业配套及两层机动车库。
.jpg)
2 思考:何为“城市青年家”
“城市青年家”是项目运营方万科泊寓的品牌口号。针对这个项目,从建筑师的视角看可以拆分成三个方面——城市(区位空间关系)、青年(服务人群)、家(建筑功能及体验),也就形成了从设计之初到项目落成一直关注和贯彻的三条主线:①服务人群——项目客群是如何定位的,针对其有什么特殊的空间使用需求?②城市性——应当以何种空间形态嵌入城市节点之中?这里既包括物理形态,亦包含所形成的公共场所空间。③居住性——基于使用人群及所处的城市区域,应当营造什么样的居住空间?它与传统的居住社区有何不同?
.jpg)
2.1 服务人群
项目地处发展较成熟的方庄地区,该区域以居住功能为主,居住着在国贸、双井、大望路等CBD区域上班的白领们。他们不论是乘坐公共交通还是自驾车,都能够方便地到达上述地区,驾车经三环到国贸仅需10 min左右。但该区域可租的房屋普遍为户型较大的老旧小区,迫于租金的压力,这里的年轻人大多选择合租,并选择在其他商圈进行社交和消费。
因此,这些青年人被定位为项目的目标客群。他们渴望被尊重,并亟须安定、从容的居住感受,同时他们乐于社交,对安全性、功能配套、空间审美有自己特殊的要求。同时,作为方庄地区的一个重要空间节点,项目的服务人群不仅仅是租住对象,建筑同样应当为所在区域提供一个大家都可受用的积极的公共场所,甚至作为一个触媒激发区域活力。
.jpg)
2.2 城市性
2.2.1 空间织补,界面围合
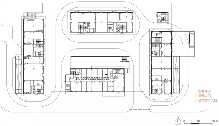
项目周边城市环境较成熟,但界面相对凌乱,建筑以织补城市空间为原则,守齐城市界面,形成连续、围合的空间关系,以积极、和谐的姿态嵌入城市空间之中。
对于用地东侧80 m高的公寓塔楼——亚胜公馆,本方案在与之相对应的一侧设置相同高度的塔楼,并同样退让街角空间,形成体量关系呼应的街角空间形态。
对于项目西侧已有的商业配套,方案在西北角形成退让并降低尺度,与西侧商业共同围合形成街角小广场。考虑从主城区和三环方向自北向南、东西方向的城市空间视点关系,方案布局以4栋单体围合的方式进一步守齐了外部城市界面,同时围合形成内部共享庭院。
.jpg)
2.2.2 高架视点,空中对话
项目东北角为三环高架方庄桥,天然地形成了一个重要的高视点,并与建筑形成对望关系。正因如此,我们将项目的关键配套空间“城市客厅”抬升到三层高度,以纯净的玻璃体造型契入白色的立面表皮之中,既作为社区交往对城市输出展示的窗口,也是社区望向车水马龙的三环、望向城市的窗口,以一个非常规视角拉近人与城市的距离。
.jpg)
2.2.3 人流导入,空间参与
项目外围人流关系较复杂。西侧有跨三环的人行天桥、公交站点和商业配套,项目东向及北向是主要客群出行的方向,而项目南侧大量居住区的人流会通过穿行的方式进入项目内部,通往西侧商业区域、公交站点和天桥。通过分析项目周边环境的人流来向、公交线路及站点分布、居住客群出行路径等信息,方案主动打开角部空间,实现人流自然导入。东北角作为项目形象及主要出行人流的主出入口,借由抬升的城市客厅形成架空天幕和灰空间,进一步强化主入口形象,吸纳人流,激活内部庭院。同时,将居住功能抬升至三层及以上,在底层置入充分的商业配套,结合开放的公共庭院,使该项目不仅仅是个单一的居住社区产品,更重要的是形成该区域新的活力节点,创造更多元化的公共参与可能,这也是项目超越居住产品本身更关键的城市意义。
.jpg)
2.2.4 归整表皮,简洁有序
作为居住类项目,空调室外机的处理是立面设计中的关键问题。建筑利用公寓开间重复单元的特征,将飘窗和空调机位组合交错设计,塑造肌理化、错动、有序的表皮,以区别于传统居住社区形象,呈现严整而生动的界面以面对三环。
.jpg)
.jpg)
.jpg)
2.3 居住性
租赁住房、青年社群、三环节点、多元混合、便利高效……这些关键词决定了这不会是传统的“居住+标准配套”项目,而是汇集了居住、商业配套、创客办公、学习交往、线下活动等高复合化的居住综合体。我们希望以此为契机,为在这个城市落脚的打拼者提供良好的居住配套的同时,为其营造有安全感、归属感、活力感、高黏性、多元复合的社区场所。而这里在汇集各种功能的同时,项目本身又被转化为一个媒介,促进各行业青年人的交往,并激发出无限的可能性。
.jpg)
2.3.1 归家流线+商业配套
若按照常规的居住千人配套指标,这个规模的社区并不需要太多的商业配套面积。考虑到项目的特定客群,并为带动区域活力,设计有意增加了配套,在首层、二层及地下一层均设置了商业区域,并且将其与住户归家流线结合,在盘活商业的同时,也最大限度为住户提供了居住的便利。工作了一天的住户可在归家途中买个面包,喝个咖啡,或者休憩、看书,真正将居住半径扩大到整个社区,也形成居住和商业业态正向循环的生态链。
.jpg)
2.3.2 合理坪效,确定产品规模
在设计最初阶段,经济测算的介入,是保证项目得以落地的前提。在充足的商业配套和服务,以及三环边上的区位优势条件下,如何才能让运营方在可持续盈利的同时,将每户租金控制在工薪阶层可接受的范围之内?项目综合考虑了必要的各项成本和投资回报周期,以每套租金不超过,甚至低于周边市场的原则,确定了项目坪效,并推算出项目总套数不应低于900套的规模,扣除商业配套面积,得出平均每套建筑面积约25 ㎡。因此,在有限的套内面积限制下,集中的外置公共配套空间就显得更加必要,也形成了合理租金及充足配套的良性循环。
.jpg)
2.3.3 服务外置,扩展居住半径
通过上述分析,在户型套内面积并不宽裕的情况下,如何提升居住体验是设计需要解决的关键点。项目客群通常为不带小孩的青年群体,在满足套内各项功能配置的前提下,对套内面积的需求相对不高,而对公共活动空间有明显需求。因此,项目在主入口位置集中设置了500 ㎡社区公共起居室——“城市客厅”,将共享书吧、健身房、服务台等功能置入其中,并作为连接体串联到达各个居住单元,同时分散布置公共洗衣房、共享厨房、快递站等。这些服务功能有效地将住户的居住半径扩展到整个社区中,且它们与社区公共空间有机融合,增加了社区交往的机会,形成多元、互动的社区氛围,极大地提升了社区黏性。这些服务空间的面积若均分到每户套内,并不能给住户带来多大额外的使用功能,而集中设置,则可最大限度地发挥其空间价值。
.jpg)
2.3.4 模数控制下的多变套内空间
通过产品经济测算,在平均每户建筑面积25 ㎡的要求下,结合框架式8.4 m柱网,得出户型面宽为2.8 m。在此基础上,室内设计团队(北京九和空间设计有限公司)通过对青年人生活方式的行为和需求进行研究,将套内功能划分为睡眠、装扮/ 储物、娱乐/工作、焕新四大区域,并以300 mm/150 mm模块进行室内不同场景的精细化设计,利用装配式家具模块的方式形成内装灵活、可变的快速搭建。
在此基础上,将青年客群进行细分,以形成不同主题的室内空间供其选择(如运动主题房、设计师主题房、主播房、宠物房,等等),实现模块控制下的定制化服务,满足年轻人对居室空间的个性化追求。
3 结语
如今,集体土地租赁住房类型的项目已在全国推行,正因其“不可销售”的特性,使得这类产品能够更纯粹地落实租住本身的需求。基于用地条件及开发背景,提供的产品会各不相同,受众群体亦是多种多样,而不仅限于本项目的青年客群,这便涉及设计前端的开发策划等诸多事宜。要切实体现租住群体的功能需求,租住空间、配套空间的室内设计同样不容忽视。成寿寺社区正是一个上、下游(从策划、建筑到景观、室内)都得到很好价值延续的案例。本中心也陆续设计完成了北京市内的果园村、花乡葆台村、大兴瀛海镇、张仪村、郭庄子村、东管头村、下坡店村、白各庄村等十多个集租房项目。在这期间,关注服务人群、城市性和居住性的原则一直被贯彻于设计始终。希望以此类项目为契机,探索多元化的租住模式,实现建筑设计与产品功能的高度融合,不论是从租赁供给、城市形象,还是以人为本的角度,充分发挥集体土地租赁住房更有意义的社会价值。
项目概况
项目名称 | 成寿寺集体土地租赁住房
业 主 | 北京金城源投资管理公司,北京万科
建设地点 | 北京市丰台区
设计单位 | 中国建筑设计研究院有限公司
用地面积 | 1.125 h㎡
建筑面积 | 4.75万 ㎡
结构形式 | 混凝土框架剪力墙结构
主要材料 | 保温装饰复合一体板,玻璃幕墙
建筑层数 | 24层
设计总负责 | 陈一峰,崔磊
方案设计 | 黄政民,陈欣
施工图设计 | 尚佳,郭祺伟,田女,李飞,王嘉玥,周琦
结构专业 | 何相宇,张涛
设备专业 | 常立强,何猛,唐艳滨
总图专业 | 朱庚鑫,董亦堃
室内设计 | 北京九和空间设计有限公司
甲方设计负责人 | 赵晨䳥
设计时间 | 2018年
建成时间 | 2020年
图纸版权 | 中国建筑设计研究院有限公司
摄 影 | 刘晶
发表评论
最新评论
投稿

