国际文化展示仓储中心
来源:匿名网友投稿 转载自:BIAD 3A2设计所 2015-07-13
项目名称:国际文化展示仓储中心
项目地址:北京市顺义区
设计时间:2014
项目位于北京市东北部顺义区天竺综合保税区内,规模224400㎡。这是一个承载着文化的庞然大物,被鬼斧神工地劈开了神秘的“峡谷”,是人流、车流、艺术流、信息流的汇集之所,令人心驰神往;是集影视制作中心、艺术珍品库、文化产品展示、创意工作室于一身的国际文化产品展示交易中心,并力求实现自用型绿色建筑。

总平面图

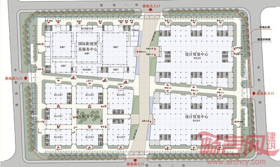
首层平面图

南北峡谷人视夜景效果图

西南鸟瞰夜景效果图

西南鸟瞰图
发表评论
最新评论
投稿
