大连海事大学科技园
来源:匿名网友投稿 转载自:北京时空筑诚建筑设计有限公司 2012-07-03
项目性质:办公、研发、会展、学术交流、商业服务配套综合体
项目位置:大连市高新园区
用地面积:29887平方米
总建筑面积:281800平方米
项目进度:施工过程中
设计单位:黄星元工作室、北京时空筑诚建筑设计有限公司
设计时间:方案设计:2009年3月-2009年8月;施工图设计:2009年8月-2011年3月

大连海事大学科技园
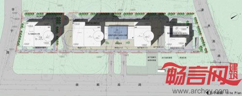
大连海事大学科技园位于大连高新园区,地处高新园区与大连市区的衔接要道旅顺南路沿线,位于由市区进入高新区的门户位置,地理位置显要。用地东临旅顺南路,南临规划中的学子路,西临海事大学教学区,北临凌水南路。
大连海事大学科技园的特点:是一个集办公、研发、会展、学术交流、商业服务配套等功能为一体的配套完善、环境优美的高科技园区。用地分为两个地块,设计统一规划为一组综合建筑群,由3栋150高的写字楼及服务配套设施和一栋约70米高的学术交流中心组成。项目建成后将成为高新园区及大连市的新地标。
本工程由黄星元工作室完成方案设计,时空筑诚建筑设计有限公司完成施工图设计。





发表评论
最新评论
投稿