台州聚丰机车总部 | hypersity architects殊至建筑
来源:匿名网友投稿 2023-10-09
建筑坐落在浙江省台州市黄岩区的一个工业园区,这个工业园区聚集着全国知名的汽车塑模、电动摩托车的模具生产厂家。全国的头部汽塑企业,都汇聚在台州黄岩这个地区发展壮大。
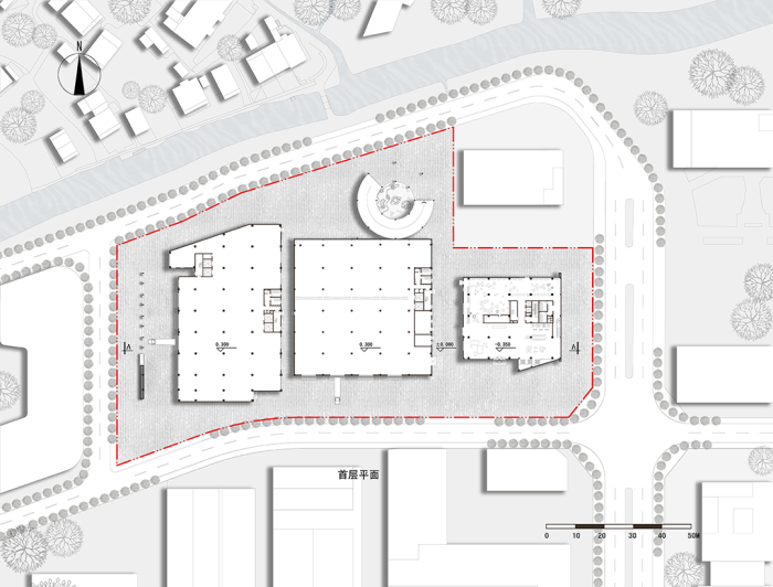
由于新建筑要打造成区域内的行业标杆和灯塔,形成示范性效应,观光者的参观流线是区别于传统的企业展厅的。叙事被分为了两个层面:第一层是生产者,我们将生产者作为叙事的逻辑的首要条件。整个车车间的生产过程:工人生产的过程、研发的过程,都变成了实物展示的一部分。
第二个层面是参观者。建筑体中被植入了一条观光户外流线,使外部参观者加入到了叙事流程当中。它以主楼沿着大厅的东侧作为起点,到主楼的北侧至观光楼梯到二层空间。接着沿着生产车间的北立面一直往西侧走,走到整个建筑的最西侧,再进入到整个厂区的平面,形成一条完整观光流线——既可以看到建筑内部的产业流水线,也能够看到建筑北侧的自然风景:河道以及北侧的村庄与远山。整个步道就变成了生产和观光产生关联的一条纽带。
这两条线在某些空间节点上是进行交错的,比如说在主楼大厅和主楼展厅的地方,这两条故事线是交叠在一起的。绝大部分的时候两条线是隔而不透的,有视觉但并没有实际可达性,保证生产的完整性。包括一些保密环节,呈现一定的透明性,时而交叠时而完全分离。
企业创新的部分被放在第一座主楼的空间里面。研发作为一个企业的开端,是经历了头脑风暴并运用智能化设计,来产生模具形态的创意构思。这个空间是一个特别有创造性的、需要与世界同步的空间,与整个加工生产的流程结合得非常紧密。
第二个空间组团体现的是一种包容性,也展示了承上启下的超级整合性。在不断的打样和实体1:1测试后,当创新即将转化成落地的产品,便进入到第二个空间的环节——整个加工生产的空间。新的流水线车间的空间设计与它的生产内容紧密结合,与原有大厂房空间的混合利用比较,生产效率与管理系统得到大大提高。
当在生产测试以及出品获得了确认,以及接受来自海内外的订单后的批量生产等环节之后,产品需要进行分类与仓储,以便为下一步物流做准备。这同时也进入到了第三个空间组团,兼备仓储和物流的空间需要一种特别精准和高效的使用场景——在里面有货车快递这种运输工具穿梭于仓储物流板块,呈现出一种快节奏的忙碌感。
.png)
.png)
.png)
.png)
.png)
.png)
.png)
.png)
.png)
.png)
.png)
.png)
发表评论
最新评论
相关阅读
投稿
.jpg)