迹建筑事务所/TAO | 海口寰岛实验学校初中
其他来源:迹建筑事务所投稿 2019-11-20
.jpg)
海口寰岛实验学校初中部位于海南省海口市,设计需要容纳1200多名学生,并包括24个班级的教学教室、兴趣活动室、学生宿舍和食堂等。项目起始于思考学校如何成为学生心灵成长的场所,而非应试教育制度的机器。
.jpg)
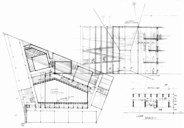
由于场地位于市区内,周边的高层住宅建筑对场地形成了较强的包围感和压迫感。因此在平面布局上强调建筑的向内性,操场位于场地中心,教学楼与宿舍楼各位于场地南北两侧集中布置。教学楼内通过建筑体量对空间的划分,进而创造出一大一小两个庭院,形成丰富的校园空间层次与视线联系。
.jpg)
基于场地局促的条件,教学楼与宿舍楼均底层架空以释放出更多的地面空间并使之连续。抬升至二层的教学楼中心庭院通过大台阶与操场相联系,既是休憩交流之所,又成为面向操场的看台。
.jpg)
.jpg)
.jpg)
.jpg)
.jpg)
.jpg)
.jpg)
教学楼的常规教室分布于教学楼的东、南两侧,形成严肃有序的对外界面,兴趣教室则分别以独立体块面向庭院展开。其中美术教室利用弧形屋顶创造均匀稳定的用光环境,音乐和舞蹈教室采用了拱形吊顶以达到良好的声学效果。
.jpg)
.jpg)
.jpg)
.jpg)
建筑形态同时又是对亚热带气候的积极回应:架空以遮风挡雨,柱廊强化自然通风。屋顶活动平台为学生提供了额外活动空间的同时,减少吸热并降低室内温度。
学生对校园空间的使用绝非仅仅在于教学场所,更在于那些没有明确界定功能的空间。从这个意义而言,学校即是一座城市,需要提供除上课外的多重日常体验。建筑因此寻求空间组织的丰富性,以期包容自发的活动和激发多样的事件,成为滋润自由的场所。
.jpg)
.jpg)
中心庭院形成了具有内聚性的场地,成为集体活动的舞台;扩大的走廊形成了一系列突出、错动的半室外阳台,三两好友可在此互相张望;曲折多变的坡道与楼梯创造出富于变化的交流机会,联系竖向各层,青春的身影流连其间。
.jpg)
.jpg)
.jpg)
此外,考虑到“体验”与“探索”也是青少年认知成长过程中的重要环节,设计在中心庭院东侧的尽端创造了一个充满趣味的塔形空间,抽象的白色高塔外部被水景环绕,内部以鲜明的色彩、竖向的空间尺度和奇妙的光线共同营造出充满想象力的体验。
.jpg)
结构上,由于寰岛特殊的地质条件,项目采用了特殊的隔震结构,教学楼建筑整体坐落于由数个隔震器支撑起的空腔上。发生地震时,隔震层底部的阻尼桩可以通过自身变形有效吸收地震能,使建筑主体结构形变量降至最小,充分保证结构的安全性。
.jpg)
.jpg)
.jpg)
.jpg)
.jpg)
.jpg)
.jpg)
.jpg)
发表评论
最新评论
相关阅读
投稿
.jpg)