上海大田秀则画廊 | 如恩设计
来源:匿名网友投稿 2023-12-06
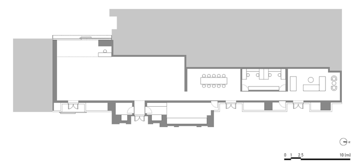
大田秀则画廊于1994年在东京成立,二十多年以来,画廊将诸多日本当代艺术家带领至国际艺术舞台,奠定了其东亚当代艺术的先驱地位。继在东京、新加坡开设画廊空间之后,大田秀则画廊上海新址落户于洛克外滩源。如恩受邀在这个历史与现代相互交融的城市语境下,改造安仁大楼一层的350平方米画廊空间。
画廊东侧的主入口位于安仁里弄,与历史悠久的圆明园路平行。修复过后的装饰艺术历史建筑沿街而立,走近画廊,访客会感受到新与旧之间戏剧性的对比,诠释了当代上海的城市景观。
外立面以自然锈蚀的耐候钢材及透明玻璃交替,在虚与实之间创造出艺术品的展示橱窗。立面玻璃背后的区域,以不同尺寸的乳白色手工瓷砖交错拼织而成。
巨大的推拉门标志着画廊的主入口,门推开时,映入眼帘的玄关空间将访客引入画廊。当画廊闭馆时,推拉门回到原来的位置,整面玻璃橱窗就会重新露出。
画廊的西侧主要用于艺术品的运输入口,晚上照明开启时,光线将透过玻璃照亮毗邻的外滩源庭院。考虑到艺术品的进出场、撤展布展的实际需求,西侧立面以可以完全打开的大型移门搭配把手为设计思路,兼顾美学的同时也满足了实用性。
画廊内部空间分为两个区域:150平方米的公共展厅,以及包括VIP室、办公空间在内的私人区域。鉴于空间本身的线性特质,设计的挑战主要在于如何充分利用立面沿线的区域进行存储和展示,模糊功能性与体验性之间的界限。
画廊的两个立面设计上都展开了对于“间”的探讨,定义了空间动线和体验方式。VIP室为简约的白盒子空间,聚焦于艺术作品,点缀以现代家具,营造出令人放松的美学环境。
项目设计的整体概念与材料方案基于新与旧、原始与精致、朴素与雅致的并置,如恩希望人们能够在这个空间里欣赏当代艺术的同时也能捕捉到静谧的日常之美。
完整项目信息
地点:中国上海市黄浦区洛克外滩源虎丘路78号106单元
时间:2023年3月
业主:大田秀则画廊
项目内容:室内设计
项目功能:画廊
建筑面积:388.98平方米
室内设计:如恩设计研究室
软装采购:设计共和
主创建筑师:郭锡恩,胡如珊
主持协理:闵捷
主持资深室内设计师:王亮钧
设计团队:瞿晓慧
施工总包:上海峻东装饰工程有限公司
.png)
.png)
.png)
.png)
.png)
.png)
.png)
.png)
.png)
.png)
.png)
.png)
发表评论
最新评论
投稿

