广州唯品会总部大厦 | gmp
其他来源:gmp投稿 2020-12-31
.jpg)
落日余晖下的大厦远景 © CreatAR Images
中国电商品牌唯品会总部大厦选址于华南都会广州,项目在历经四年建设之后正式落成交接。由gmp·冯·格康,玛格及合伙人建筑师事务所主笔设计的办公综合体以裙楼建筑为基座,办公空间呈现水平布局,各个功能分区依次叠加形成明晰的体块组织,两座高耸塔楼从基座之上升起,凝练出竖立挺拔的建筑形象。
.jpg)
街景视角 © CreatAR Images
唯品会vip.com是中国第三大电商品牌。随着企业蓬勃成长,新建总部大厦坐落于广州琶洲互联网创新集聚区,琶洲为坐落于珠江之上的岛屿,位处广州市中心区东南部。这一区域毗邻广州国际会展中心,将规划为新兴金融科技服务创新集聚区,同时补充以休闲娱乐功能设施。gmp在2016年举行的项目国际设计竞赛中取胜并获得设计委托。
.jpg)
屋顶露台 © CreatAR Image
.jpg)
屋顶露台的无边际泳池 © CreatAR Images
唯品会作为一个极富活力、管理层级扁平化的企业,其对办公空间的要求更加趋向于空间的灵活性,亟需一个可依据不同组织结构进行快速调整和改建的办公空间解决方案。gmp的建筑概念对城市设计的初步要求作出回应,并不是单纯依据街道走向设置三座独立的塔楼,而是强调了一个水平向的办公空间布局。通过相应交通流线设计,一座十层裙楼建筑将互成拐角势态的三个地块连成一体。这样的布局结合建筑的竖向空间组织结构实现了办公空间的最大化,同时也令所有办公空间最大程度的享有面向珠江和城市的迷人视野。
.jpg)
交汇楼层 © CreatAR Images
建筑各个功能分区依次叠加形成大厦主体,挑空空间以及特殊功能区域在横向和竖向上对其进行穿插切割,如同接驳体块之间的“缝隙”。位于大厦四层之上的间隔层被定义为建筑内部和外部职能的交汇之所。这里设有企业员工与客户的会晤空间,包括会议室、展览空间和餐饮设施。此外,一座面向珠江探出的平台形成具有优质品质的公共空间,其通过一座宽阔大气的室外阶梯在整座大厦与江畔区域和东侧公园之间建立关联。从基座之上升起的两座塔楼高度分别为135.5米及172.5米,除一般办公以外还设有行政管理层办公空间。
.jpg)
入口门厅 © CreatAR Images
.jpg)
办公层之间的楼梯设计 © CreatAR Images
.jpg)
带有阶梯座位的中庭设计 © CreatAR Images
裙楼层面之上叠加座落的建筑体块内分布着企业不同部门的工作团队,宽敞明亮的办公区域可根据具体需求灵活调整。可开放窗扇令办公空间实现自然通风换气。跨越不同楼层的通高中庭与大型阶梯设计,服务于办公层之间垂直交通流线的同时,也可作为举行跨团队讲座与聚会活动的场所。另外,各个办公层还配备一个特殊的非正式交流空间,此处设有茶水间、休憩区、图书馆、健身区域等。裙楼屋顶是开敞的露台空间,拥有无边际泳池、篮球场、烧烤站点等休闲设施专供唯品会员工与客户使用,营造具有绝佳江景视野的一方天地,让人们尽享午休或下班时光
.jpg)
日落环境下幕墙灯光效果 © CreatAR Images
.jpg)
大堂空间 © CreatAR Images
办公楼层拥有全玻璃幕墙,其清晰凝练的水平肌理刻画了大厦的整体造型,赋予建筑作为电商唯品会新总部的地标形象。夜幕降临,与幕墙构件结合的灯带装置将大厦立面点亮,进一步勾勒出横向元素的层次感,令人印象深刻。
.jpg)
江畔鸟瞰 © CreatAR Image
设计竞赛:2016 年一等奖
设计:曼哈德·冯·格康和施特凡·胥茨以及尼克拉斯·博兰克
竞赛阶段项目负责人:Clemens Kampermann
竞赛阶段设计团队:Jan Peter Deml,Thomas Muncke,Dimitri Philippe,Burkhard Pick,Anastasiya Vitusevych,Thilo Zehme,张吟,Katarzyna Zaczek
实施阶段项目负责人:Clemens Kampermann
实施阶段代理负责人:Tobias Keyl
实施阶段设计团队:Andreas Götze,何多舒,Astrid Jahncke,Karolina Korona,刘叙达,Giuseppe Malfona,Simone Matthey de L'Endroit,毛安德,潘昕,Dimitri Philippe,Andrea Pisanu,Kristin Schoyerer,汤子泓,Alberto Vallejo,曾雅涵,张起意,张吟,韦志林
中国项目管理:徐吉,秦炜
合作单位:广州市设计院
景观设计:Rehwaldt Landschaftsarchitekten; 深圳市龙易凤园林景观设计有限公司
灯光设计:Schlotfeldt Licht; 北京大观格瑞照明设计有限公司
业主:唯品会vip.com
总建筑面积:约16.5万平方米
地上面积:约11.3万平方米
地下面积:约5.2万平方米.jpg)
总平面图 © gmp Architekten
.jpg)
城市设计初步要求/水平向的空间布局/最终确定建筑体块 © gmp Architekten
.jpg)
剖面图 © gmp Architekten
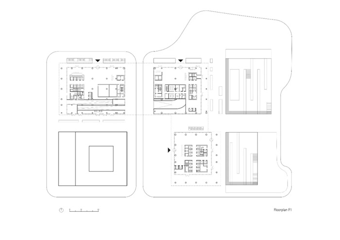
.jpg)
首层平面图 © gmp Architekten
.jpg)
7层平面图, 标准办公层 © gmp Architekten
.jpg)
12层平面图,带露台空间 © gmp Architekten
.jpg)
23至26层平面图 © gmp Architekten
发表评论
最新评论
投稿



.jpg)