宁波茶亭·自由之滨 | c+d 设计中心
来源:网友余温里的流年投稿 2022-10-11
茶亭,原为村地古名,沿用至今。地处宁波东钱湖西南的山坡之上,向东俯瞰钱湖,目之所及,湖天一色,群峦尽收。
项目为商办用地,位于东钱湖南岸线区域,环湖南路南侧,现状山体福泉山的东侧,周边多为居住用地。地块形状狭长,地势复杂,从环湖南路向西迅速抬升,而后向南转折,缓缓蜿蜒上行。场地西南侧的现有道路,和场地东北角相邻的城市道路之间的高差达到了32m,和东侧相邻已建小区地面高差达18m。
为了打造特别的场所体验,如何组织和利用场地竖向关系,如何建立一种整体的湖山联系,成为设计理所当然的切入点。
不同于城市片段中空间集约、人员密集的办公、商业环境,在自然资源如此丰厚的基地内,我们想创造一种接近于度假体验的商业与办公氛围,让项目所在的山水自然环境与人为雕琢的建筑空间充分渗透,满足使用者对所谓山地小镇的期待。为此我们利用一条蜿蜒起伏的“山线”将场地内部划分为四个不同的聚落,同时由一条平缓的“村线”将四个聚落串联起来。根据各聚落和城市的关系以及自身的功能定位,四个聚落形成了“一市三村”的规划结构。
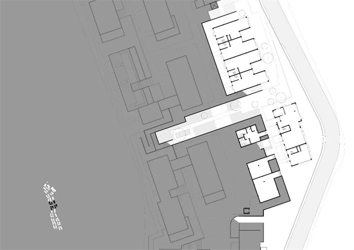
顺应地形关系,狭长的场地被划分四个标高,结合西侧的建成道路和东侧的已建小区,形成连续的、跌落的台地关系,既顺应了山势地形又最大化地利用了湖景资源,而后在场地东北区的茶亭市集,以更大的高差跌落,打造立体化的湖景商业组团,消解高差的同时和环湖南路对接。小镇内由此形成的各种山地建筑和景观的空间体验,也成为设计最核心的特点。
茶亭市集作为这个山地小镇的入口,和环湖南路相接,由低至高设计了三个台地,曲折向上攀升;低区的建筑半围合形成小型商业广场,同时建筑屋面又结合地形形成高区活动场地,层层叠落。建筑均以半围合的建筑体量来打造广场的商业氛围,又朝湖开放,以求最大化地利用湖景资源,让后续入驻的酒店或者餐厅都可以享有最佳的景观视野。
“三村”中各村的基本组成是由数个产品单元拼接而成的花园组团,根据其相对“村线”的高差关系和进入方式,分为“上山组团”和“下山组团”。相对小镇内部最为公共的“两线”空间,组团内由5~8户围合形成了组团内部共享的“次公共”花园,再经由各户独享的私密花园进入建筑内部,打造从“公共”到“私密”的逐级过渡的空间体验链。
各个组团内建筑体量形成“U”字形围合关系,顺应地势,后排单元比前排高约4m,以确保每个单元都有湖景视野;后排单元的地下一层结合组团花园设有组团共享的公共服务空间,也为组团花园创造了活泼生动的空间氛围;层次丰富的组团建筑形态形成了多层级的露台关系,和山地地形带来的台地形态相呼应,同时相邻组团之间也在不同层面将庭院打通,起承转合,层层递进,空间具有极强的进深感。建筑在这里成为场地的一部分,一同融入这山水之间。
建筑主要材质为石材一体板,外立面石材的纹理和质感与此间自然环境的背景更为融洽。以组团为基础的色彩单元,配以精致的米白色和稳重的淡黄色穿插,同时以村为单位点缀粗粝的红色砂岩组团,增强可识别性。同时为山林中的小镇增添一抹亮色,让这个湖畔的山地聚落在望湖观山的同时,也成为风景本身。
在如此特别的自然环境中,人的行为必然与山湖紧密联系,如何强调这样的联系,如何安排行进的序列,也成为设计重点考虑的因素。前面提到的“山线”和“村线”就是非常重要的线索,一张一弛,互为对偶,展示出迥异的趣味。
“山线”从小镇入口处开始,顺应山势往上,而后在三村交界处穿行,形成曲折蜿蜒的路径体验,与地形有机结合,打造错落起伏的景观游线;“村线”在茶亭市集处与“山线”重合,迅速消解高差而后在三村之中水平穿行而过,充分结合建筑组团的使用需求形成平缓开敞、高效舒适的办公商线。
“山线”在攀爬完茶亭市集以后,开始折返于“三村”标高的最高处和最低处,山地空间的高差关系在“山线”路径上得以强化,时而舒和平缓、时而猛烈升降,尤其是和 “村线”的交汇处,形成了村与村之间的景观节点,使相对平淡的“村线”空间序列在150m左右迎来一个节奏上的突变:“山线”自“村线”连桥下方穿行而过又攀升至高处,形成多个“望山而上,穿桥而过,回首瞰湖”的空间体验章节。而村尾处的景观小广场则为这一游一商的不同路径体验画下一个完美的共享句点。
相对与城市道路接壤的茶亭市集,“村线”的水平标高距离城市道路已有24m的高差,先天的地形条件让小镇内的公共空间具有一定的私密性,便于小镇内部营造属于自己的空间氛围。以设计在“村线”两侧布置较为公共的商办空间,打造“村线”作为商业路线的空间界面, 14~18m的商业街宽度,既满足了消防要求又为两侧单元创造了一个舒适的庭院空间,提升了空间的丰富度和品质。而和“村线”稍有距离的建筑单元,则以花园办公的业态为主,更为私密又独享一片山水自然之境。
虽然有一路之隔,但建立小镇和湖岸的直接联系也是必不可少的动作,并成为观游体验的关键一环。“湖山一望醉霞迟,岸芷噙香待客时。”自茶亭市集而起,横跨环湖南路,曲折延伸至湖滨步道的连桥,被命名为“醉霞桥”。醉霞桥造型流畅、色彩明艳,桥面流动的曲线与湖面的微波荡漾相映成趣,临湖端盘旋而下的坡道仿若一座湖边雕塑,为湖边漫步的游客标记出此间水杉林、芦苇荡中最独特的记忆锚点。
项目名称:茶亭·自由之滨
项目地点:浙江省宁波市鄞州区东钱湖环湖南路666号
设计单位:c+d 设计中心
主持建筑师:董屹
项目主创:王斌
设计团队:魏烯醇、高阳、 张小翼、黄俊瑜
业主:宁波东钱湖旅游度假区韩岭古村开发有限公司
设计时间:2019年2月—2020年9月
完工时间:2022年1月
用地面积:58392.3㎡
建筑面积:50826.5㎡
层数:2~3层
摄影师:王骁、刘洋、董屹
模型制作:陈少奇
.jpg)
.jpg)
.jpg)
.jpg)
.jpg)
.jpg)
.jpg)
.jpg)
.jpg)
.jpg)
.jpg)
.jpg)
.jpg)
.jpg)
发表评论
最新评论
投稿