通用电气医疗中国科技园
来源:网友平安果投稿 转载自:北京建院约翰马丁国际建筑设计有限公司 2015-06-29

效果图(一)
设计目标与GE的企业理念相契合,即遵循着理性创新、面向未来、绿色生态的设计原则,为GEHC设计出一幢符合全球化企业形象的创新型总部、一处富有归属感的企业园区、一个孕育梦想的场所 ——一座“筑梦之城”。利用基地条件,通过围合式的功能布局,使得园区对外拥有完整的建筑形象,也代表了企业的整体形象,简洁大气。

效果图(二)
各个功能水平分区与上下分区相结合,联系方便快捷,以整体围合的方式将最好的景观圈入建筑内部,营造出属于园区自身的、集中的、均好的、高品质公园式中心景观。以“生命-脉络-细胞”为主题的景观及空间模式,在合理的尺度与结构要求下,纹理在基地内铺开。

效果图(三)
景观形态与首层建筑的外部形态有机结合,形成丰富活跃、富有生命力的室内外交融的空间效果。将各类公共支持功能、室外庭院等功能集合在首层作为“混合区”存在,营造活跃、沟通、凝聚力的空间氛围。办公及实验区通过设备夹层架空其上。外立面采用玻璃幕墙、穿孔铝板及规整的条形窗的竖向肌理,体现了简洁、整体、开放、生态的建筑形象。

效果图(四)

效果图(五)

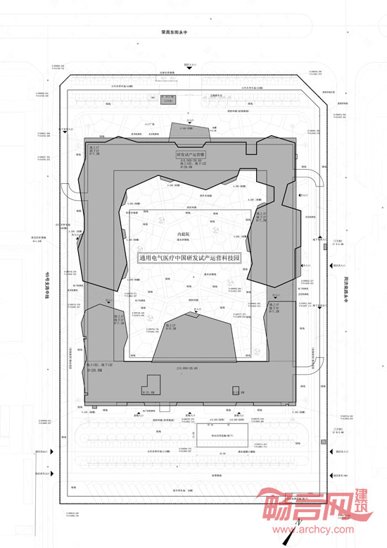
总平面图
发表评论
最新评论
投稿