成都京东西南总部大厦 | gmp
其他来源:gmp投稿 2022-05-06
位于四川成都的京东集团西南总部大厦业已落成。gmp·冯·格康,玛格及合伙人建筑师事务所担纲了此次建筑设计,并于2016年在国际竞赛中拔得头筹。设计方案遵循了水平和垂直方向流动空间体系的理念,创造了室内外空间的交替变化。

▲傍晚的京东西南总部 Schran Images

▲建筑街景 Schran Images
建筑内部和外部空间通过简单的几何原理相互交织,为沟通和交流提供了多样化的场所,并形成了类型丰富的办公环境。十一层高的建筑基本形式由三个体块构成,这三个体块平面上呈矩形8字,并相互扭转90度叠落。
通过这种布局方式,在雕塑般的建筑内生成了景观庭院和屋顶花园。在极高的建筑密集度以及限高60米的情况下,这一新建筑提供了可以灵活使用的办公空间,且所有办公区域都享有绿色景观。8字形平面还可以实现所有工作空间的自然采光。

▲景观庭院 Schran Images
九个坚实的建筑垂直交通核心筒构成了建筑的主要支承结构,在约12500平方米的楼层面积中可自由进行空间划分,创造了最大的灵活性。首层设有报告厅和展厅等代表性公共空间。此外,五层和九层还设有员工共享休息空间等其他公共功能,这也是得益于这两层设置的大面积屋顶花园。

▲室内采光中庭 Lucepo Photography Huang Qinglong
锯齿状折线立面强化了层叠体块的可读性:修长的竖向玻璃及玻璃纤维增强混凝土构成的幕墙单元内设有可独立开启的自然通风扇。幕墙单元每三层有一个转换。根据观者的位置和视角不同,形成了或通透或封闭的建筑表面的有趣拼图,与层叠的建筑体量一起打造了独具特色的城市地标。

▲幕墙局部 Schran Images

京东集团是领先的以供应链为基础的技术与服务企业,其西南总部大厦是gmp为中国知名网络科技企业及信息通信公司完成的又一作品。

▲建筑街景 Schran Images
项目图纸

▲总平面图 gmp Architekten

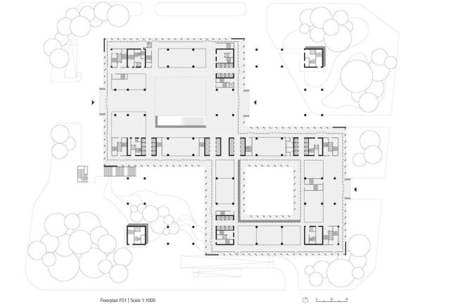
▲1层平面图 gmp Architekten

▲4层平面图 gmp Architekten

▲5层平面图 gmp Architekten
设计竞赛:2016年,一等奖
设计:曼哈德·冯·格康和施特凡·胥茨以及尼古拉斯·博兰克
项目负责人:李民
中国项目管理:吴镝,林巍,王征
竞赛阶段设计团队:Jan Peter Deml, Johannes Erdmann, Charles Howard, George Liang,刘亦芳,Thomas Muncke,杨扬,Thilo Zehme,Özgür Isan
实施阶段设计团队:Daniele Busi,Rosaria de Canditiis,Johannes Erdmann,Maria Ferreira,Felix Kastner,Andrés Stohlmann,Ho-Jin Wi,姚奕,杨扬,张旭
结构设计:sbp 施莱希工程设计咨询有限公司
中方合作设计:中国建筑科学研究院
业主:成都京东世纪贸易有限公司
建筑面积:约25.5万平方米
发表评论
最新评论
投稿



.jpg)