家琨建筑 | 苏州御窑遗址园暨御窑金砖博物馆
其他来源:ARCHITECTURE CHINA投稿 2019-12-09
.jpg)
项目位置:江苏省苏州市
建筑师: 刘家琨
设计团队:田申 王玺 刘速 杨鹰 林宜萱 王凯玲 毛炜希 李静 杨磊
建筑面积:15326㎡
设计时间:2012
项目完成:2016
摄影:家琨建筑设计事务所 姚力 刘剑 存在建筑摄影
.jpg)
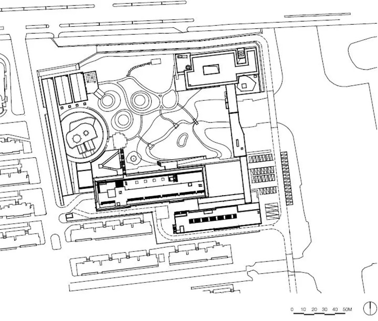
苏州陆墓御窑遗址公园位于苏州市相城区,主要功能为御窑遗址保护,金砖等文物的陈列展示,及相应的文化研究与交流。博物馆意在通过建筑的组织和景观营造,保护珍贵的文物遗迹,展现御窑金砖的历炼过程,感触御窑金砖的历史文化内涵,表现其从一种地域性物质原料到一个王朝最高殿堂的大跨度精神历程。
.jpg)
总平面图
.jpg)
北立面
采用周边围合的布局方式,营造园林式的内向型空间,使核心保护区面积最大化。基地北面临桥设林荫道,隔绝喧嚣,营造氛围,借助体量高度遮挡南边小区。内部利用生产用房和窑群的分布组织视线,流线设计迂回曲折,曲径通幽、移步换景。
.jpg)
游客中心
.jpg)
.jpg)
廊桥
博物馆主体建筑是对砖窑和宫殿的综合提炼,体量雄浑,出檐平远,以现代手法演绎传统意蕴。它不是砖窑,也不是宫殿,而是兼具“砖窑感”和“宫殿感”的当代公共建筑,展现出“御窑”的精神内涵。
博物馆建筑群使用当代广泛应用的各种砖料构筑,层层递进,烘托出金砖。它不仅仅是关于金砖的博物馆,也是一部从古至今的砖的编年史。
.jpg)
序厅
.jpg)
二层展厅
.jpg)
三层展厅
景观设计突出遗址感,以自然荒野的景观设计手法隐喻历史,同时更好地保护御窑遗址原貌。 公园内部通过整窑、半窑、残窑等多种状态的窑,形成群体感,再现当时金砖生产场景盛况,并可从多方面了解窑的构造与金砖的生产过程,扩充博物馆本身的知识性。
.jpg)
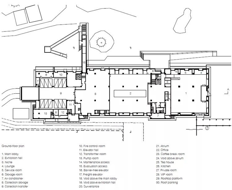
一层平面图
.jpg)
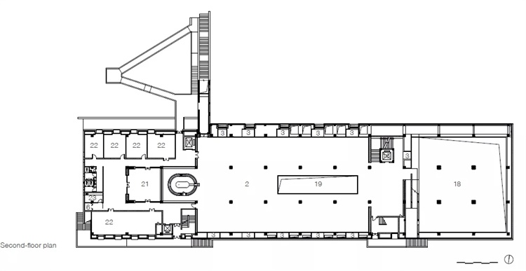
二层平面图
.jpg)
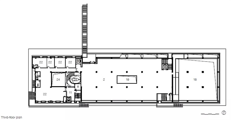
三层平面图
.jpg)
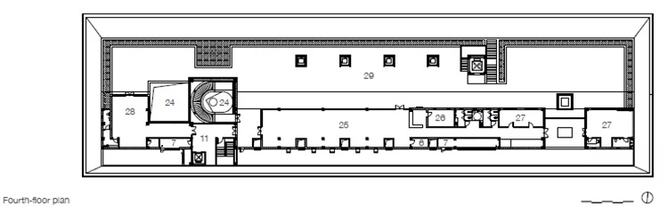
四层平面图
.jpg)
砖窑实景构筑物
发表评论
最新评论
投稿
.jpg)
