深创投广场 | CCDI悉地国际
其他来源:CCDI悉地国际投稿 2022-08-31
.jpg)
项目概况
项目名称 深创投广场
设计单位 CCDI悉地国际
项目地点 广东省深圳市南山区
项目状态 已建成
建筑面积 167640㎡
00
前言
后海作为深圳城市发展的新片区,成为中国企业总部最为密集的聚集地之一。深创投广场幕墙设计体现了对滨海建筑(波浪)和金融大厦(钻石)的表达,给人以稳定、轻盈、优雅的形象。如何在满足自然排烟、通风的前提下,隐藏立面开启扇并解决玻璃幕墙交接处的尖角折面问题,是项目施工的最大难点。
.jpg)
与华润总部比邻的深创投广场
深创投广场项目由深圳市创新投资集团有限公司投资兴建,项目位于深圳市“后海总部基地”的核心区域,与华润总部“春笋”比肩而立。东临科苑南路、南邻海德三路、北邻滨海大道,处于金融核心区南区的门户位置,周边交通便利。
.jpg)
总平面图
01
枢纽公园
本项目区位、规模、交通(车流/人流)资源决定了其独特的商业定位——这不是一个传统意义上的商业综合体或是商务办公区,而是一个综合商业、枢纽、滨海活动等元素的“枢纽公园”。
项目基地有三个特征:
1.边界:
背靠办公商务区,面向深圳湾;
2.枢纽:
地铁线、街道及二层步行系统穿越基地;
3.连接器:
裙房系统像一个连接器联系周边,开放的绿色体验将地铁、商业、步行系统、滨海活动、屋顶花园等要素叠合于一体。
02
都市水晶
深创投广场寓意为晶莹剔透的水晶体,幕墙表皮采用隐藏式开启扇,巧妙地解决了自然通风与排烟问题,实现了可呼吸式折叠建筑表皮。项目的设计与落地经历了一波三折的过程,设计师通过反复打磨铸造城市新地标。
办公塔楼遵循高效、实用的原则,在结构和空间的结合上采用一体化的创新设计。三银Low-E超白玻璃既保证了项目高透视野下的无敌海景,又有效减少了进入办公空间的太阳辐射热。可呼吸的幕墙表皮设计不仅降低了过渡季节建筑的能耗,还全方位关注人的感受,并适度向城市开放。
折叠表皮
.jpg)
折叠表皮形体控制线找形
折叠表皮的灵感源自设计团队对建筑形体的研究。设计师在立面控制线的基础上寻找三角形基本单元,该单元可以组合成钻石的形状,通过立体化处理形成折叠表皮。
.jpg)
.jpg)
折叠表皮
设计团队通过折叠表皮的独特形式,体现了滨海建筑(波浪)和金融大厦(钻石)的独特建筑形象,给人以稳定、轻盈、优雅的感受。
结构体系
项目的结构采用钢管混凝土斜交网格外框架+伸臂+混凝土核心筒体系。外立面采用由若干单元组成的钻石形幕墙,结构外框架采用钢结构菱形斜交网格,使立面形式、内部空间、结构体系一体化设计,营造了独特的室内外办公空间。外框架能够承担30%~50%作用重力及水平力,斜交网格的外框具有较好的抗侧向刚度和延性,但其节点受力及施工复杂。
.jpg)
幕墙节点局部实景
因此,深入研究斜交网格的节点受力性能,实现斜交外框架结构的安全性、经济性、合理性,完成建筑效果,是整个项目的关键。通过计算得出,斜交网格框架比普通框架的侧向刚度大,能够起到结构的抗震和抗风作用,同时斜交叉柱为顶部和底部的公共空间提供了大跨度的开敞空间,打破了传统办公空间的局限性。
尖角玻璃
据玻璃生产方反馈,若将中空玻璃替换成夹胶镀膜玻璃,最小加工尺寸可减小为50~100mm(2.5×D),角部仍需金属材料填充,且两种玻璃存在色差。夹胶中空三银Low-E超白玻璃最小加工尺寸为280~300mm。
考虑目前国内的工艺水准,尖角玻璃的加工会受到以下因素影响:
1.三银镀膜工艺小于300mm时表面易花,无法保证质量;
2.尺寸小于300mm的玻璃在机床加工时易漏到缝隙中;
3.钢化玻璃过于尖锐,生产过程易自爆。
原方案尖角玻璃存在问题
面对这些问题与风险,设计团队做了大量关于尖角玻璃的项目调研。最终,办公塔楼幕墙立面选定了800mm宽装饰线条的方案:用三角形的金属装饰线条遮挡玻璃,玻璃实际为梯形(最窄处满足三银夹胶Low-E中空玻璃大于300mm的最小加工尺寸),露出的完成面由三角形尖角玻璃交接,保证了原有的“钻石”立面设计概念。
同时,利用800mm宽的装饰线条隐藏开启扇,玻璃也由原来的2100mm高变为4500mm 高。这种作法不仅让立面更简洁,还排除了台风天因开启扇剥落而造成的安全隐患,提高了整个项目的幕墙抗风安全级别。
立面选材
项目的选材体现了设计师对材料效果的把控力,以及业主对品质的高要求。塔楼及裙房采用金属质感的阳极氧化板,强调建筑稳定、有力的独特气质。塔楼装饰线条折角处铝型材收边,兼作为泛光隐藏式灯槽设计,既让装饰线条显得笔直,又解决了阳极氧化板折弯爆边问题。装饰线条侧面设计三角形穿孔铝板,满足自然通风与排烟的功能需求。超白基片的银灰色膜系的夹胶中空三银Low-E玻璃在阳光下如同钻石般晶莹,在阴天时如同湖水般宁静。裙房暗金色的阳极氧化板与淡香槟色膜系的夹胶中空Low-E玻璃低调而淡雅。
.jpg)
与华润总部比邻的深创投广场
03
结语
深创投广场项目的高质量落地离不开业主及CCDI设计团队的共同努力,不仅实现了设计应有的效果,还巧妙地解决了工艺中遇到的难题,建成了一栋可呼吸的超高层建筑。设计团队用每平方米1万元的建安造价,打造了一栋超甲级超高层写字楼,并在项目建成后取得了不错的社会反响,成为深圳湾滨水天际线的重要组成部分,与“春笋”形成了呼应。许多设计施工及建设单位都来考察该项目,项目也多次获得各类设计与工程奖项。
04
技术图纸
.jpg)
场地平面图
平面图八层
.jpg)
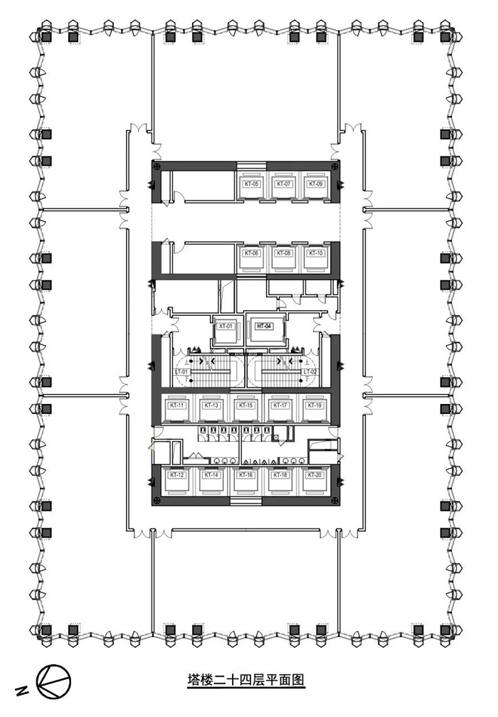
平面图二十四层
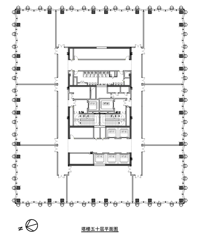
平面图五十层
剖面图
项目详细信息
项目名称:深创投广场
业主单位:深圳市创新投资集团有限公司
建设地址:广东省深圳市南山区科苑南路与海德三道交口
设计单位:CCDI悉地国际
设计顾问:澳洲PTW事务所(裙房立面及室内概念方案)
用地面积:8820 ㎡
建筑面积:167640 ㎡
建筑高度:262 m
项目负责人:王浪
主创建筑师:王浪、朱翌友、张震
项目建筑师:金艾
主要建筑师:王浪、金艾、黎宇明、孙志浩、李伟、I.IBRAGIMOVA Elvira、冯显杰、刘义俊、孟庆燕、汤峰、杜雪松、程顶
结构工程师:吴国勤、赵勇、吴娟、曾志和
机电工程师:朱永斌、杨德位、孙福梁、李亚姿、黄艳琦、王可湛、杨纪超、杨德志、焦培荣、张光耀、李鹏、刘超、王励、刘康荣、何畅、李一方等
设计指导:庄葵
设计时间:2014年
建成时间:2022年
图纸版权:CCDI悉地国际
建筑摄影:曾天培、吴非、袁小宜、林嘉
发表评论
最新评论
投稿

