ArchUnits 一栋设计工作室 | 上海静安商楼改造
来源:网友Andy2073投稿 2019-12-26
.jpg)
华山路视角
项目概况
名称:静安商楼建筑更新
地点:上海市静安区华山路
项目功能:办公、商业
建筑规模:2 800 m²
设计时间:2017/08-2018/02
建成时间:2019/01
业主:致灏投资
项目建筑师:ArchUnits|一栋设计工作室
结构和机电合作:上海爱建建筑设计院
照明设计:张晨露
关于“白”和“灰”的讨论或许是贯穿于建筑学发展的一条潜藏的线索。两种不同的色彩涵盖着诸如纯粹/混杂、排他性/包容性、理性主义/现实主义、现代主义/后现代主义等一系列对立关系。如果说“白”意味着一种在纷繁的现实世界中投射下完美几何关系的理想与努力,那么“灰”则是对现实的混乱和不完美的接纳和包容。虽然直到20世纪70年代的美国,“白派建筑”和“灰派建筑”才被正式地用于指代不同建筑师的作品,但在此之前,它们便早已成为了建筑师处理几何与现实的两种态度①。帕拉第奥(Palladio)的圆厅别墅在微微凸起的山丘之上建立起完美而自足的几何秩序;伯拉孟特的圣玛丽亚教堂(Santa Maria della Pace)在罗马蜿蜒多变的城市肌理和层层叠加的历史建筑中,通过精心推敲的柱距和转角处理,投射下理想的几何关系[1]。在同样有着复杂肌理的巴黎,法国建筑师则以更为务实和灵活的态度去处理为贵族阶级所设计的公寓建筑(Hotel)和中世纪城市之间的关系[2]。尽管从文艺复兴的意大利传播而至的对完美几何的追求依然存在,但在平面的布置过程中,建筑师往往通过具体的设计策略来协调理想几何与城市土地之间的关系。如果说前者试图形成彰显自身的可识别性,后者则更多地意味着与城市相调和的匿名性。
在当下,大多数城市更新项目的对象恰恰是那些默默无闻的“灰房子”。这些普普通通的建筑,在设计之初,往往有着遵循功能主义逻辑的布局和带着特定时代审美的朴素外表。伴随着时间的推移,它们原本沉默的状态在不断变化与发展的城市中显得愈发失语。它们的更新,或许并非仅仅是一次功能的置换或是空间性能的提升,而需要在当代城市环境中去寻找它们的新定位。在某种程度上,它们需要从“灰房子”变为一座“白房子”。这也恰恰是一栋设计工作室在上海静安商楼改造项目中通过精准而克制的设计策略所实现的。在原始建筑、工期和预算的掣肘下,建筑师通过“涂白”和几何语言的局部柔化,赋予了旧建筑以新的可识别性。
.jpg)
总平面图
1 灰房子
位于车水马龙的华山路、靠近静安寺的上海静安商楼,在改造前是一座并不惹人注意的建筑物。这栋小楼为原白玉兰酒店,始建于1989年、竣工于1994年,由同济大学建筑设计院设计。如同那个年代的诸多建筑物一般,它遵循着功能主义的框架和经济、实用的原则。在设计说明中,建筑师写道,“由于基地客观条件, 建筑体型呈前高后低台阶式,为了不影响北面的居民,将北面客房均转成45°角,虽给建筑及各工种设计带来复杂性,但保证了居民的生活安静及日照、消防间距。” ③ 这段描述在叙述形体操作的初衷之外,也暗示着设计者对于这栋建筑的定位:它是城市中的匿名一员。在满足其自身功能组织的需求之前,它首先考虑的是对基地周边的关照。阅读原始平面即可发现,45°的转角处理在原本方正的平面中形成了一个难以使用的狭小夹角。为了处理这一异形空间对规则的内廊式布局带来的影响,建筑师偏转了柱网和隔墙方向,并通过3个不规则形状的小型辅助用房来消化水平方向和45°转向后的轴线之间的夹角差异。类似的考虑和处理方式也出现在了建筑面向街道的城市转角上。面对城市空间,靠近华山路和社区出入口的两个转角通过方形体量的切角形成退让,而切角在建筑内部导致的异形空间则同样由楼梯和辅助用房消化。
.jpg)
改造前的建筑原状
面对城市,原静安商楼唯一试图彰显自身的设计策略是朝向华山路的巨大实墙面。它来源于上述对城市街道的退让处理。与东立面和南立面的规则开窗截然不同,它以一个完整的实面回应着城市。对于内部的功能布置来说,这一做法似乎不甚合理:作为容纳联系主要垂直交通的旋转楼梯和联结各层内廊的公共空间,它理应更为敞亮,并应有着朝向城市街景的良好视野。然而,它仅能从两侧的狭小窗洞获取采光,面向城市的转角视野则被完全地遮蔽。对于这一设计策略的理解或许只能再一次地用对外部形象的考虑重于内部的功能需求来解释。运用大面积的实墙,通过“留白”来面对一个纷繁嘈杂的城市环境不失为一种在城市中获得一定可辨识度的简单而经济的方式。在改造前的照片中,转角实墙的体量被抽象为原白玉兰酒店的标志,挂于实墙之上。在项目说明中,建筑师张朔炯写道,“面向华山路的一大片混凝土实墙是原建筑的至高点,并且被视为此建筑的辨识标志。它被保留了下来,并且成为了设计的起点。” ②
2 白房子
在一栋设计工作室的主持建筑师张朔炯接手项目之时,静安商楼业已经历了20多年的使用,也发生了诸多变化:建筑的功能从酒店转向了办公、餐饮、网吧、按摩等不同业态混杂的商业办公;原本便显得有些零碎的立面划分在任意安装了空调外挂机和商业招牌后,显得更为杂乱。项目的业主在城市旧改方面有着多年经验,在租下这栋不甚起眼的小楼后,他们希望能够通过改造,实现其功能和空间上的新生。改造后功能起初为联合办公,后则变更为商办租赁。
对于新的使用功能来说,改造的逻辑既是直截了当的,也是富于挑战的。从满足酒店布局需求的内廊小开间到开放的商办空间,建筑师需要调整原来的内部布局和流线关系:大部分的走廊和房间隔墙需被拆除;由一部电梯和卫生间组成的服务核心被加至原转角公共空间一侧。当建筑师完成这些改造的基本动作后,更具挑战性的则是如何在诸多现实条件的制约下,以近乎“四两拨千斤”的方式,来给予这栋本身并不起眼的小楼以具有可识别性的新身份。
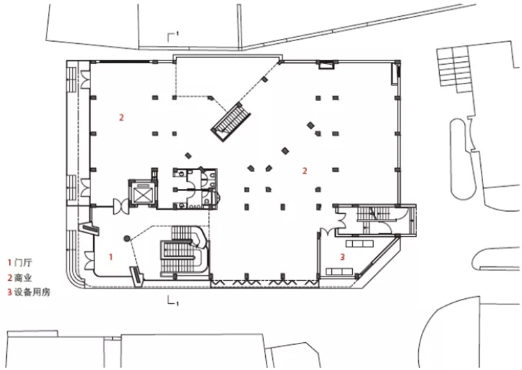
.jpg)
一层平面图
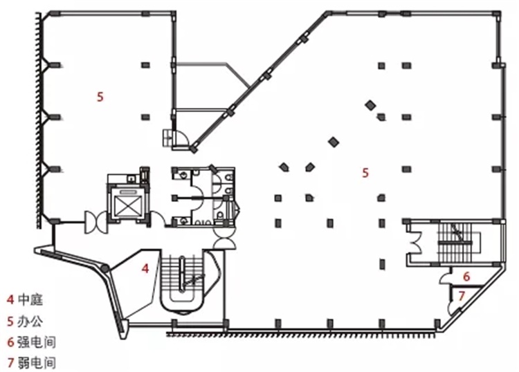
.jpg)
三层平面图
如果说改造前的静安商楼是一座“隐身”于周遭环境之中的“灰房子”,那么改造后,它则不再遮掩自身在城市中的表达,而成为了一座“白房子”。从“灰”到“白”,一种显而易见的操作方式即是改变建筑的外观色彩。无论转角的实墙,或四侧的立面,甚至是面向居住社区的东立面之上的水管和烟管,建筑外观上的所有元素均被统一刷白。在原本规律开窗的西立面与南立面上,一层半虚半实的白色竖向格栅百叶为“白”增添了更为丰富的层次。尽管大面积地使用白色涂料作为立面改造的主要手段部分源自改造条件的限制,然而,“白”一方面为四个立面上的丰富甚至混杂的元素裹上了一层具有视觉连续性的整体外衣;另一方面,纯粹、无瑕的“白”也意味着“新”。它以一种最为直观的方式宣告着旧楼的新生。对于曾在扎哈·哈迪德建筑师事务所和UN Studio等以复杂几何的形式语言为设计标识的建筑工作室有着多年工作经历的张朔炯来说,“白”也意味着对形式与空间逻辑的抽象呈现重于对材料和质感所带来的具体感知。这种态度无疑更偏向着现代主义建筑的色彩词典。在其中,白色往往被等同于纯粹、真实与理性。柯布西耶的“瑞普林法则”(Law of Ripolin)将“涂白”与干净、明亮的现代生活品质联系在一起[3]。对于20世纪70年代的白派建筑师来说,“白”则被重新拾起,作为对早期现代主义运动遗产的汲取而被用于对抗此时业已定型的现代主义风格[4]。在改造后的静安商楼,“白”则被进一步地用来凸显对新的几何形式的认知。
3 柔化的几何
改造前的静安商楼可以被形容为一种“片段式构成”[5]。或许它不如典型的后现代主义建筑一般明晰地调用各种历史语汇,但从Y字型的转角体量到两侧的正方体体块,从舷窗般的圆形窗户到梯形外凸窗台,改造前的静安商楼并非是遵循正统的现代主义建筑设计原则而产生的精确、完美的组合。各种几何元素和形式体量之间的并置透出一种因地制宜的妥协态度,也恰恰是这种与周遭的妥协使得它在城市环境中缺乏自身的可辨识度。如果说,“涂白”使其在整体外观上具有了一致性,那么又如何巧妙地通局部调整使得它的不同部分能够在几何关系上也形成一个整体呢?
如果说正交几何是现代主义建筑典型的形式语言,那么样条曲线则是20世纪90年代以来计算机辅助设计兴起后的新的几何语言。依托于新的设计工具与建造技术,它创造出了一种流动的、连续的、打破原有的正交体系的空间感知。对于静安商楼的改造来说,以曲线化的几何语言来重新整合整座建筑无疑是一种奢侈,更为务实的策略则是如何通过关键部位的改变来重构对其整体形式认知。
观察改造前的静安商楼,中部实墙、左右两翼的竖向三段式划分被一层外挑的水平向雨棚打断。在某种程度上,强调转角的中部实墙和水平延展的雨棚线条形成了一组互相冲突和竞争的关系,而重构建筑外立面的关键则在于如何通过雨棚线的调整,使得它能更为有机地勾连立面上的不同元素,并最终将视觉的焦点归结至中部实墙。这里需要引入一套柔化的几何语言。对于扎哈·哈迪德银河SOHO和广州歌剧院的室内,张朔炯指出,建筑师恰恰是通过运用玻璃纤维石膏板(GRC)和玻璃钢(FRP)的三维预制构件,使得完成后的建筑保持了几何特性的完整和连续性[6]。或许正因如此,在静安商楼中,张朔炯同样选择了使用玻璃纤维石膏板构件来对实墙与雨棚交接处的正交关系进行倒角处理。在交角外侧,倒角处理将水平向的雨棚线条柔滑地转换为竖向实墙的垂直线条,使得视线被引导至中部的白色墙面。在交角的另一侧,两个倒角共同形成了具有邀请姿态的入口,雨棚线的加厚则进一步地和大面积的墙面留白形成了平衡之势。尽管这一几何关系的操作并不复杂,然而四个交角的柔化形成了两个被中部实墙所联结的十字关系,从而构成了阅读立面的框架。它既为整座建筑提供了立面的视觉连续性,也突出了转角在其中的重要性,其余的立面元素——无论是半虚半实的白色栅格百叶,或是完全通透的入口,甚至是一层底商的店面招牌——则均安置其中。
.jpg)
入口视角
柔化的几何关系不仅被运用于改变对立面的阅读,也成为了调整建筑内部公共空间的关键策略。正如前文所述,在改造前的静安商楼的标准层平面中,实墙后的空间构成了容纳竖向交通和联结左右两翼内廊的节点。然而,一方面,空间缺乏充足的光线;另一方面,作为竖向要素的旋转楼梯被禁锢于楼板之中,而使得整个空间缺乏垂直方向的视觉流动性。在将立面局部替换为落地玻璃和去掉局部楼板形成一个贯穿四层的中庭后,更为重要的则是如何在这仅为一跨柱距的局促空间中形成一个新的视觉焦点。一部联系竖向交通的楼梯承担起了这一角色。自四层楼板边缘处出挑,它时而几乎触碰南立面墙体,时而入侵至一侧的走廊中,盘旋而下。在二层和一层之间,双跑楼梯被转换为呈三角状的三跑楼梯,突出了其盘旋舞动之势。柔化的几何语言被进一步地运用于楼梯平台的设计。圆润的倒角处理使得楼梯在平台处形成了自然而然的方向转换,避免了其在中庭中产生锋利与冲撞之感。这一几何语言甚至被延续至楼梯平台的铺地划分。铺地竖向以楼梯内侧中心点和平台外侧边缘的中点为对称轴,呈放射状。横向划分则分别与两个梯段的台阶方向平行。这一非正交的铺地划分方式无疑带有某种三维曲面模型的痕迹。或许这仅仅是一处微不足道的细节,但却折射出了另一种几何系统的存在。
.jpg)
从南侧弄堂看向中庭楼梯
.jpg)
盘旋与悬挑的中庭楼梯
.jpg)
俯视逐层盘旋的中庭楼梯
.jpg)
顶层楼梯和电梯厅
.jpg)
一层中庭与楼梯
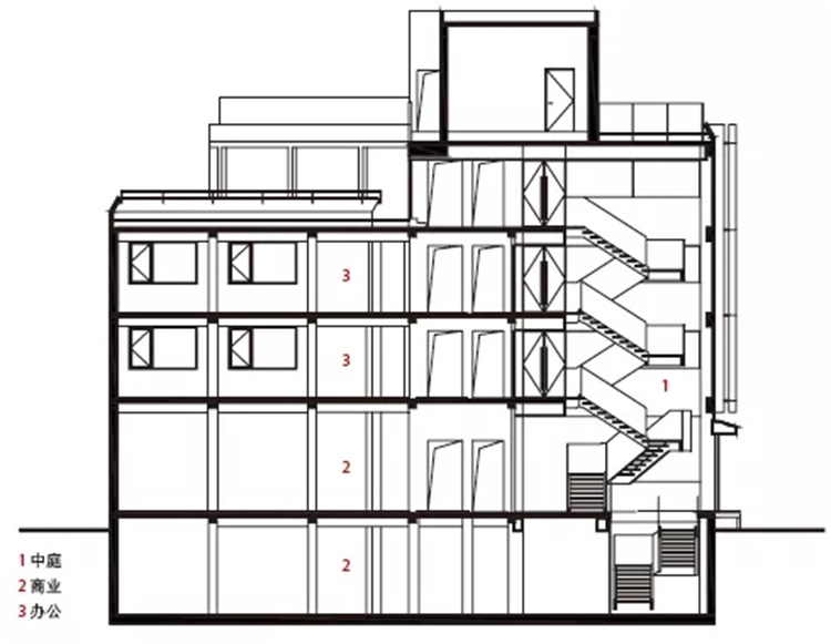
.jpg)
剖面图
从立面改造到内部楼梯,恰恰是对柔化的几何语言的巧妙运用,起到了“四两拨千斤”的作用,以较小的改造动作赋予了原建筑以极大的可识别度。在后现代主义建筑方兴未艾之时,斯特恩(Robert A.M. Stern)曾在一篇纲领性的文章中提出了后现代主义建筑的六个原则。在其中,“反乌托邦主义”(Anti-utopianism)指出建筑师需要“在是什么而非应该是什么的基础上展开工作”(Working with what "is" rather than what "should be") [6]。诚然,斯特恩对于现代主义建筑的批评建立在对彼时的反思之上,然而当“应该是什么”的态度不再存在之时,建筑也会随之变得平庸。“灰房子”固然不可少,但它仍然需要“白房子”的态度。
发表评论
最新评论
投稿