一分园,北京胡同里华严路7号 / 超城建筑
来源:匿名网友投稿 2024-04-24
本项目位于北京香厂新市区历史文化街区之中,原有建筑为两层平顶现代砖混结构建筑。原有建筑属于危房,因此将其完全拆除后进行此次更新设计。该建筑南北两侧为北京传统四合院式建筑,西侧则是刚刚经过更新的北京民国时期的里弄式建筑“华康里”,东侧是一个小胡同,而胡同的东侧是天桥集市。
由于项目地点处于古都风貌保护区之中,因此部分建筑采用传统北京民居的木结构古建方式。而连廊与可上人屋面的部分则采用现代平屋顶的形式。平屋面的现代形式主要分布在东西两侧,以连接“华康里”和天桥集市。而传统坡屋面则分布在南北两则与紧邻的传统四合院式建筑连为一体。在这里两个传统被共同呈现:香厂新市区的现代化建筑与天桥的传统建筑。
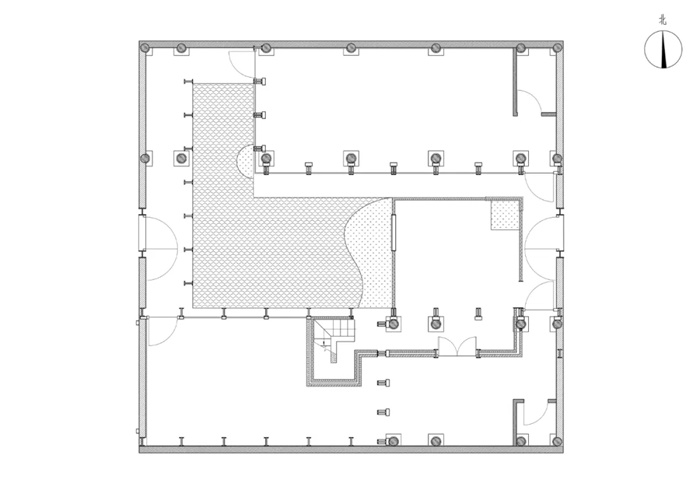
整个场地是一个接近15米乘15米的正方形地块。北京传统的四合院式建筑的出入口通常分布在南北向,而这个项目由于南北两侧都是与邻居的共用墙,因此出入口只能分布在东西向。这也刚好对应了其未来作为的胡同博物馆的使用功能。在南北向上,居主体位置的是古建做法的北房,南房则是一座尺度稍小的古建。传统的南北轴线得以体现,一个稳定而静止的空间体现了超越时间的永恒性。在东西向上,主要的出入口被设置在东侧,西侧的出入口因外部条件所限暂时未被启用。
在东西向上分布有一个由砖建成的院落和一个以水池为主体的花园。形成了前院后园的格局。在这里,南北向静止的轴线被东西向流动的时间线所代替。一组连续的钢结构与落地玻璃的透明空间随着东西向的时间线而缓缓展开。砖院与水园彼此交错,公共空间的功能在时间中呈现,时间使空间具体化,并变得生机勃勃。对于到访的观者,也许空间的质量与生命无关,但是时间的质量却与其息息相关。
.jpg)
.jpg)
.jpg)
.jpg)
.jpg)
.jpg)
.jpg)
.jpg)
.jpg)
发表评论
最新评论
投稿

